BLITZ Romania

Consultant imobiliar

Vânzare

4 camere | 118 m²

Casa individuala 120 mp utili, zona urbanizata, Chinteni

Cluj / Chinteni
250.000 €

Rată estimată

5.477 Lei/lună

Avans (15%)

186.375 lei

Perioada împrumutului

30 ani

Specificații

Număr camere 4

Suprafața utilă 118 m²

An finalizare construcție 2025

Niveluri imobil 1

Suprafață teren 472 m²

Număr Băi 2

Numărul de locuri de parcare 4

Stare proprietate Bună

Mobilat și Utilat Nemobilat

Utilități Curent, Apă, Canalizare, Gaz

Tip tranzacție Vânzare

Tip vânzător Companie

BLITZ va ofera spre vanzare o casa individiuala situata in Chinteni, intr-o zona foarte accesibila, cu acces asfaltat, amplasata pe un lot de teren de 470 mp, cu front generos la 2 strazi.

Casa este constructie noua, pe fundatii din beton si zidarie din caramida, precum si acoperis tip sarpanta din lemn cu invelitoare din tigla.

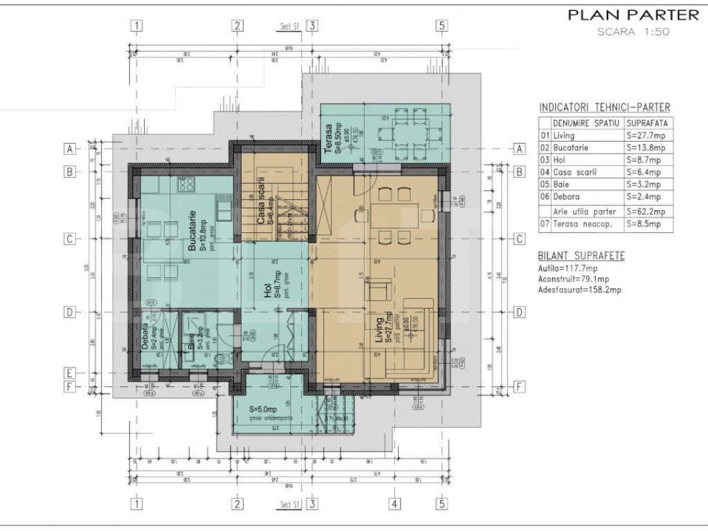
Este dispusa pe 2 niveluri, astfel:

- PARTER: camera de zi, bucatarie, baie, spatiu tehnic precum si terasa.

- ETAJ: 3 dormitoare, 1 baie, si un balcon tip terasa

Casa se vinde la stadiul de semifinisat cu sistem de incalzire prin pardoseala si centrala termica proprie, geamuri termopan, sape, pereti tencuiti si gletuiti, instalatii electrice si sanitare trase la pozitie, precum si toata partea de exterior finalizata.

Se preda cu toate utilitatile racordate, apa, gaz, curent, si canalizare.

O casa construita cu foarte multa atentie si seriozitate. Va stam cu placere la dispozitie pentru mai  multe detalii si stabilirea unei vizionari!
Cod ofertă / ID BLITZ: P151958
Id intern: P151958

Solicită vizionarea proprietății

Alege o zi disponibilă

27 Decembrie
28 Decembrie
29 Decembrie
30 Decembrie

Alege un interval orar

8:00 - 12:00
12:00 - 15:00
15:00 - 18:00
18:00 - 21:00

Următoarele date de contact oferite de tine vor fi accesibile proprietarului:

Locație

Contactează utilizatorul

ID: 4040419

Casa individuala 120 mp utili, zona urbanizata, Chinteni

4 camere | 118 m² | Cluj / Chinteni

250.000 €