Nicu Carlan

Consultant imobiliar

Vânzare

5+ camere | 323 m²

Casa individuala de vanzare cu terasa teren 320 mp zona Cent

Sibiu / Sibiu
494.900 €

Rată estimată

10.843 Lei/lună

Avans (15%)

368.948 lei

Perioada împrumutului

30 ani

Specificații

Număr camere 5+

Suprafața utilă 323 m²

Suprafață teren 320 m²

An finalizare construcție 2008

Stare proprietate Bună

Niveluri imobil 2

Număr Băi 4

Mobilat și Utilat Complet

Comision cumpărător 2%

Numărul de locuri de parcare 2

Utilități Curent, Apă, Canalizare, Gaz

Tip tranzacție Vânzare

Tip vânzător Companie

Iti doresti o casa individuala generoasa intr-o zona buna a orasului? Aceasta casa de vanzare este situata in zona centrala a orasului Sibiu, o zona linistita si cu acces facil catre toate punctele centrale si de interes public ale orasului.
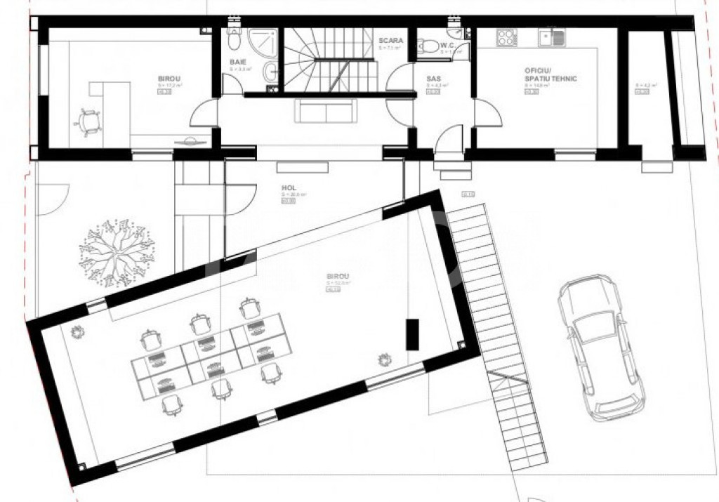
Terenul are o suprafata totala de 320 mp din care 160 mp teren liber iar casa este compartimentata astfel:
- La subsol se afla 2 camere de depozitare a cate 10 mp fiecare, si o crama de 17 mp;
- Parterul este compus dintr-o camera spatioasa cu suprafata de 53 mp, fiind pretabila pentru spatiu de birou, camera de zi sau living, o camera de birou de 17 mp, o baie, un hol mare de 20 mp, debara, toaleta de serviciu si terasa;
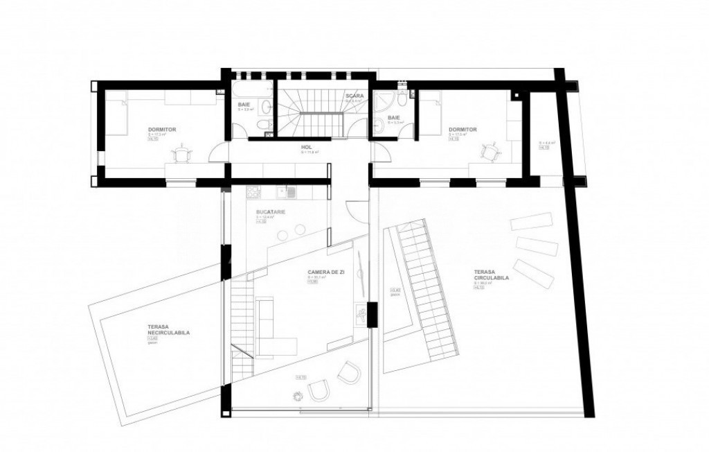
- Etajul 1 va ofera accesul catre cele 2 dormitoare decomandate in suprafata de 17 mp fiecare, un living generos de 33 mp, bucatarie, 2 bai, si o terasa spatioasa in suprafata de 58 mp;
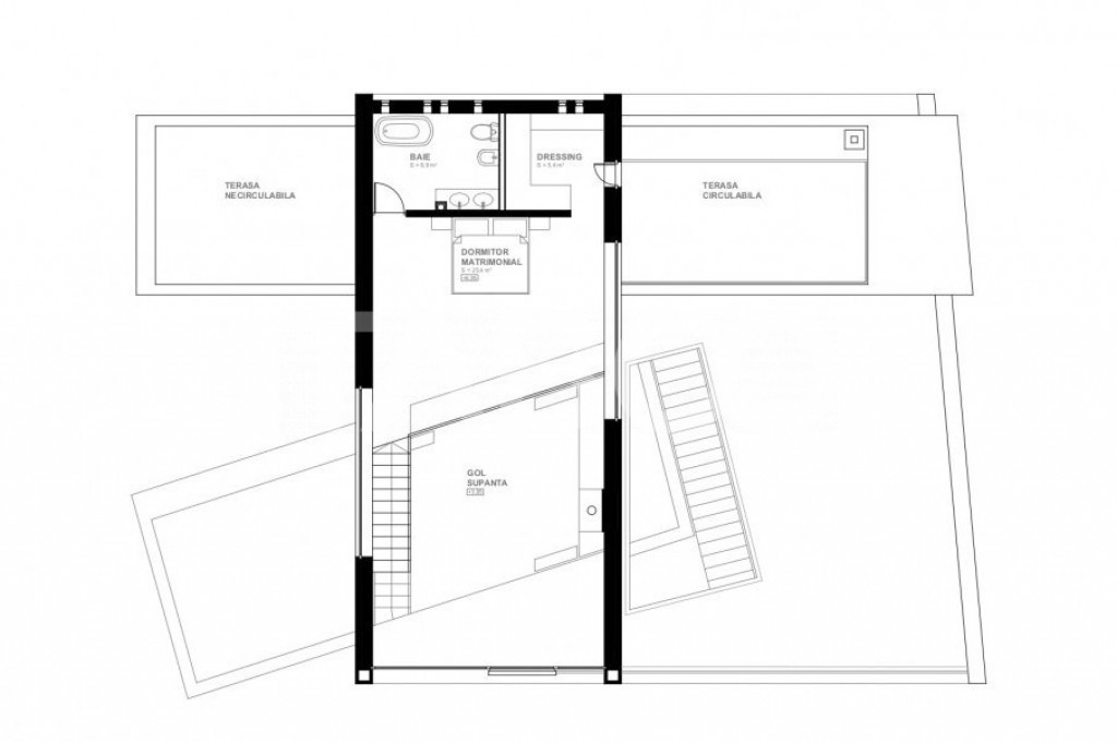
- Etajul al 2-lea confera accesul catre dormitorul matrimonial in suprafata de 26 mp, dressing, baie de 7 mp, terasa.
Predarea se va face la stadiul de semifinisat in exterior, cu parterul finalizat, la etajul 1 partea de dormitoare si bai sunt functionale, iar la etajul 2 finisajele interioare nu au fost finalizate lasand la alegerea viitorului beneficiar modul in care se va amenaja.

Casa dispune de urmatoarele imbunatatiri precum parchet, gresie, faianta, ferestre din PVC-termopan, usi celulare, centrala termica proprie si calorifere. Casa mai dispunde si de o curte privata cu acces auto, carport unde se poate parca masina, iar curtea dispune de o suprafata libera de 160 mp. Casa poate fi recompartimentata in functie de gusturile fiecaruia, in functie de necesitati. Imobilul este situat pe o strada iluminata, avand 2 fronturi la strazi diferite, iar in apropiere se afla mijloace de transport in comun, parcuri, restaurante, scoli, spatii verzi, spatii comerciale.
 
Pret: 494.900€
Cod ofertă / ID: P15105
Sună-ne acum la 0740.760.240 și află detalii despre această proprietate de vanzare din Sibiu, dar și despre alte proprietăți potrivite pentru tine.


Informatii speciale:
1. Descarcă aplicația pe mobilul tau "TABOO Imobiliare" din Apple Store, Google Play sau Huawei AppGallery pentru a afla instantaneu noile proprietăți care intră pe piață.
2. Dacă ai o proprietate pe care vrei să o vinzi sau să o închiriezi, suntem aici pentru tine!
Contactează-ne pentru o evaluare gratuită fără obligații și vei descoperi avantajele de a lucra cu o echipă dedicată și experimentată.
3. Dacă vrei sa incepi o cariera de agent imobiliar, suna la 0740.760.240 si programeaza o intalnire pentru a afla toate beneficiile si avantajele.

Intră pe TABOO.ro și descoperă cele mai recente oferte, actualizate zilnic.
Anunt actualizat in 19 decembrie 2025.
Id intern: P15105

Solicită vizionarea proprietății

Alege o zi disponibilă

28 Decembrie
29 Decembrie
30 Decembrie
31 Decembrie

Alege un interval orar

8:00 - 12:00
12:00 - 15:00
15:00 - 18:00
18:00 - 21:00

Următoarele date de contact oferite de tine vor fi accesibile proprietarului:

Locație

Contactează utilizatorul

ID: 3304260

Casa individuala de vanzare cu terasa teren 320 mp zona Cent

5+ camere | 323 m² | Sibiu / Sibiu

494.900 €


Vezi și alte anunțuri imobiliare
Apartamente vânzare Sibiu-sb - Aeroport Case-vile vânzare Sibiu-sb - Aeroport Garsoniere vânzare Sibiu-sb - Aeroport Terenuri vânzare Sibiu-sb - Aeroport Apartamente vânzare Sibiu-sb - Broscarie Case-vile vânzare Sibiu-sb - Broscarie Garsoniere vânzare Sibiu-sb - Broscarie Terenuri vânzare Sibiu-sb - Broscarie Apartamente vânzare Sibiu-sb - Calea Cisnadiei Case-vile vânzare Sibiu-sb - Calea Cisnadiei Garsoniere vânzare Sibiu-sb - Calea Cisnadiei Terenuri vânzare Sibiu-sb - Calea Cisnadiei