Secretariat Edil Floresti

Consultant imobiliar

Vânzare

4 camere | 146 m²

Casa Individuala in Chinteni

Cluj / Chinteni
210.000 €

Rată estimată

4.601 Lei/lună

Avans (15%)

156.555 lei

Perioada împrumutului

30 ani

Specificații

Număr camere 4

Suprafața utilă 146 m²

Suprafață teren 425 m²

An finalizare construcție 2025

Stare proprietate Nouă

Număr Băi 3

Tip tranzacție Vânzare

Tip vânzător Companie

Această proprietate reprezintă o ofertă deosebită, cu numeroase avantaje care o transformă într-o oportunitate ideală pentru cei care își doresc confort și liniște într-un cadru modern.
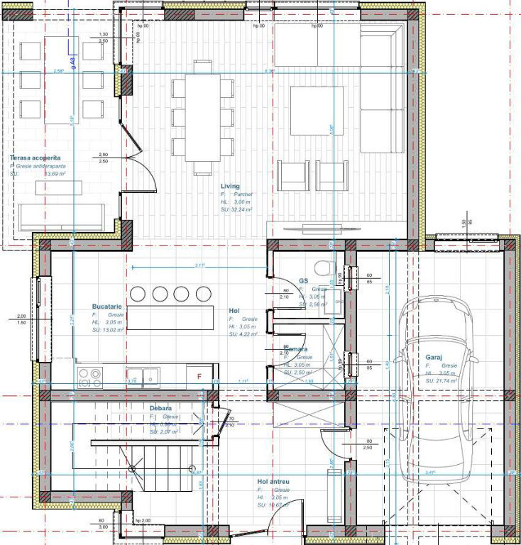
Casa individuală face parte dintr-o construcție nouă și impresionează atât prin compartimentarea sa funcțională, cât și prin calitatea finisajelor. 
Suprafața utilă este de 146 mp, iar terenul aferent are 425 mp, oferind suficient spațiu pentru relaxare și activități în aer liber.Locuința este dispusă pe două niveluri. 
Parterul cuprinde un garaj, antreu, debara, hol, baie, cămară, bucătărie, living spațios și o terasă generoasă, perfectă pentru momente de relaxare. 
Etajul întâi este compartimentat în mod eficient, oferind un hol, trei dormitoare, dintre care dormitorul matrimonial beneficiază de baie proprie și dressing, încă o baie, un balcon și o terasă de 18 mp.
Casa este construită din cărămidă, cu fundație solidă din ciment, acoperiș din tablă și izolație exterioară, asigurând un grad ridicat de confort termic și fonic. Printre dotările suplimentare se numără centrala proprie, ferestre termopan cu trei straturi de sticlă, ușă din PVC, grădină amenajată, terasă, precum și acces auto în curte. 
Situată într-o zonă liniștită, cu mult spațiu verde, această proprietate este ideală pentru o familie care își dorește un stil de viață modern, într-un cadru natural și relaxant.
ID- 246318

Solicită vizionarea proprietății

Alege o zi disponibilă

27 Decembrie
28 Decembrie
29 Decembrie
30 Decembrie

Alege un interval orar

8:00 - 12:00
12:00 - 15:00
15:00 - 18:00
18:00 - 21:00

Următoarele date de contact oferite de tine vor fi accesibile proprietarului:

Locație

Contactează utilizatorul

ID: 3947519

Casa Individuala in Chinteni

4 camere | 146 m² | Cluj / Chinteni

210.000 €