Janina Peste

Consultant imobiliar

Vânzare

5 camere | 122 m²

Casa individuala-Prelungirea Ghencea-Margelelor - dormitor p

Bucuresti-Ilfov / Bragadiru
230.000 €

Rată estimată

4.952 Lei/lună

Avans (15%)

171.465 lei

Perioada împrumutului

30 ani

Specificații

Consum total de energie primară 0

Indicele de emisii echivalent CO2 0

Consum total din surse regenerabile 0

Număr camere 5

Număr Băi 4

Suprafața utilă 122 m²

Suprafață teren 316 m²

An finalizare construcție 2026

Nu include TVA Nu

Stare proprietate Bună

Tip tranzacție Vânzare

Tip vânzător Companie

       Case individuale intr-un cartier modern in plina dezvoltare ndash; Bragadiru Nou ndash; zona Margelelor - 
                      COMISION 0 pentru cumparator!

      Va prezentam un proiect rezidential deosebit, format din 42 de case individuale, situat intr-o zona linistita si in plina dezvoltare din Bragadiru Nou, in apropierea zonei Margelelor.
Proiectul se remarca printr-o compartimentare rar intalnita in zona, gandita special pentru confortul familiilor moderne:
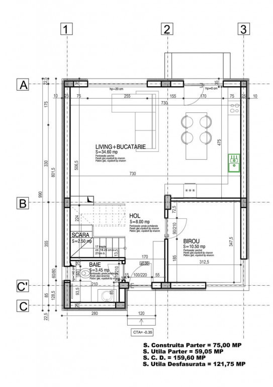
- Dormitor / birou pe parter
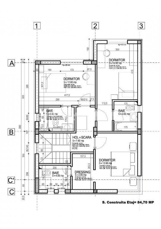
- La etaj  - 3 dormitoare matrimoniale, fiecare cu baie proprie si dressing
Acest concept ofera intimitate pentru fiecare membru al familiei si un nivel ridicat de confort.
Preturi de la 
 - 230.000 euro; TVA inclus ndash; vila cu teren de 243 mp

- 268.000 euro; TVA inclus ndash; vila cu teren de 433 mp
 - Pretul fiecare case( din cele 42 de case) difera in functie de suprafata terenului.
Curtile libere variaza intre 170 mp si peste 350 mp, ideale pentru relaxare, gradinarit sau spatiu de joaca pentru copii.
Despre proiect
Ansamblul rezidential va include atat case situate intr-un complex rezidential, cat si case individuale imprejmuite cu gard propriu.
Icirc;n acest moment proiectul se afla in faza de proiectare, iar mai multe unitati sunt deja rezervate.
Constructia va incepe in curand, iar primele 12 case vor fi finalizate in perioada septembrie ndash; octombrie 2026.

Caracteristici constructie:
- Structura solida: fundatie continua, zidarie din caramida Porotherm de calitate superioara si doua placi de beton
- Compartimentare inteligenta cu spatii generoase
- Design modern

- Curti individuale cu teren intre 240 mp si 433 mp
Amprenta la sol: aproximativ 75 mp
Compartimentare:
Parter

Solicită vizionarea proprietății

Alege o zi disponibilă

12 Aprilie
13 Aprilie
14 Aprilie
15 Aprilie

Alege un interval orar

8:00 - 12:00
12:00 - 15:00
15:00 - 18:00
18:00 - 21:00

Următoarele date de contact oferite de tine vor fi accesibile proprietarului:

Locație

Contactează utilizatorul

ID: 4145551

Casa individuala-Prelungirea Ghencea-Margelelor - dormitor p

5 camere | 122 m² | Bucuresti-Ilfov / Bragadiru

230.000 €