Vladimir somkereki

Consultant imobiliar

Vânzare

5 camere | 242 m²

Casa la roșu 242 Mp Utili / Sat Săsar

Maramures / Recea
165.000 €

Rată estimată

3.569 Lei/lună

Avans (15%)

123.008 lei

Perioada împrumutului

30 ani

Specificații

Preț negociabil Da

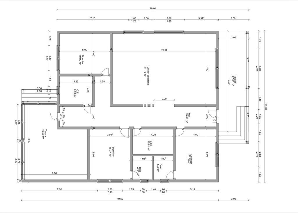
Suprafața utilă 242 m²

Suprafață teren 1300 m²

Număr camere 5

Niveluri imobil 1

An finalizare construcție 2024

Număr Băi 3

Ansamblu Rezidențial Nu

Posibilitate parcare Nu

Stare proprietate Nouă

Utilități Curent, Apă, Canalizare, Gaz

Tip tranzacție Vânzare

Tip vânzător Companie

În reprezentare exclusivă – Comision 0% pentru cumpărător! 

Îți prezentăm două proprietăți premium în sat Săsar – oportunități rare pentru cei care caută spațiu, calitate și liniște!

Prima casă este deja ridicată la roșu, cu acoperiș din tablă, structură integrală de cărămidă și un proiect foarte bine gândit. O locuință extrem de spațioasă, cu 242 mp utili pe un singur nivel – perfectă pentru familii cu pretenții sau pentru cei care doresc să își amenajeze casa visurilor exact așa cum își doresc.
Se vinde în stadiul actual și include tot polistirenul necesar pentru izolare, deja achiziționat si cimentul pentru tencuiala interioară.
Avantaj major: există poze din întreaga perioadă a construcției, plus toate actele doveditoare de achiziție a materialelor, ceea ce oferă transparență totală asupra calității lucrărilor.
Preț: 165.000 €

A doua casă are aproape același proiect și aceleași suprafețe, fiind amplasată chiar lângă prima. Dispune de fundația complet turnată, iar toate materialele sunt deja cumpărate , cărămidă , fier beton, acoperiș ,izolație – noul proprietar trebuie doar să continue construcția conform planului.
Preț: 135.000 € în stadiul actual.

Se poate vinde și complet ridicată, cu preț recalculat în funcție de stadiul dorit.

Ambele proprietăți sunt amplasate pe un teren generos de 13 ari, au drum privat și dispun de toate utilitățile: gaz, curent, apă, canalizare, internet.

Fundațiile sunt solide, materialele folosite sunt de top, iar zona este liniștită, ideală pentru o casă de familie sau o investiție sigură.

Pentru mai multe detalii, va rog sa ma contactați! 
Iar pentru video de prezentare TikTok : VladimirSKK

Solicită vizionarea proprietății

Alege o zi disponibilă

06 Februarie
07 Februarie
08 Februarie
09 Februarie

Alege un interval orar

8:00 - 12:00
12:00 - 15:00
15:00 - 18:00
18:00 - 21:00

Următoarele date de contact oferite de tine vor fi accesibile proprietarului:

Locație

Contactează utilizatorul

ID: 4094640

Casa la roșu 242 Mp Utili / Sat Săsar

5 camere | 242 m² | Maramures / Recea

165.000 €