BLITZ Romania

Consultant imobiliar

Vânzare

5 camere | 134 m²

Casă modernă P+1, cu finisaje premium, 440 mp teren, zona

Dolj / Craiova
275.000 €

Rată estimată

5.921 Lei/lună

Avans (15%)

205.013 lei

Perioada împrumutului

30 ani

Specificații

Număr camere 5

Suprafața utilă 134 m²

An finalizare construcție 2026

Niveluri imobil 1

Suprafață teren 440 m²

Număr Băi 3

Stare proprietate Nouă

Mobilat și Utilat Nemobilat

Utilități Curent, Apă, Canalizare

Tip tranzacție Vânzare

Tip vânzător Companie

Blitz vă propune spre vânzare o casă modernă P+1, amplasată pe un teren generos de 440 mp, situată în zona Damila, o locație apreciată pentru liniște și acces facil către oraș. 

Proprietatea beneficiază de alei amenajate și parcare betonată, oferind confort și funcționalitate încă de la intrare.
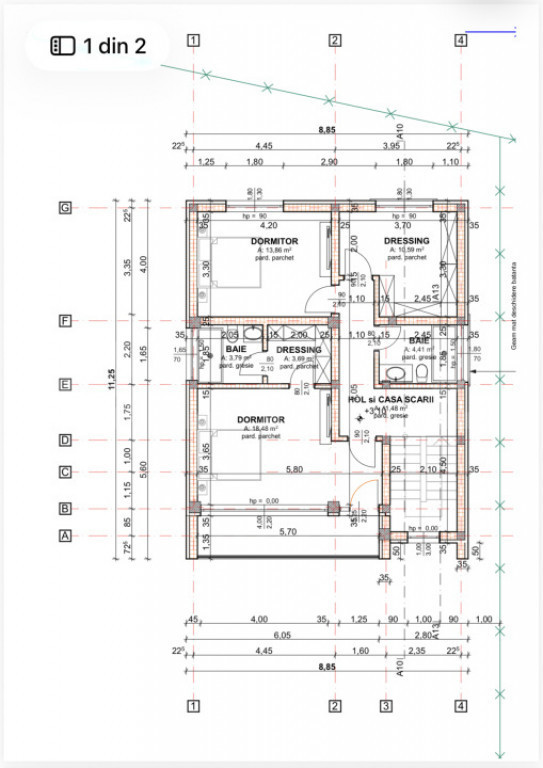
Compartimentarea este gândită eficient, astfel:
Parterul dispune de un living spațios și luminos, un dormitor, o bucătărie și o baie.
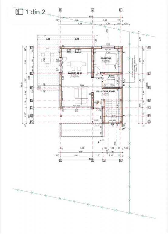
Etajul este compus din două dormitoare, fiecare având acces propriu către dressing și baie, oferind intimitate și confort. De asemenea, proprietatea beneficiază de balcon și o terasă generoasă, ideală pentru relaxare.
Casa este construită cu materiale de calitate superioară: pereți din BCA, tâmplărie Salamander, termosistem EPS 100 de 10 cm, termoizolație a tavanelor cu spumă poliuretanică de 15 cm, uși Porta Doors și finisaje premium, atent alese pentru un design modern și elegant.
Imobilul dispune de toate utilitățile necesare: apă, curent și canalizare, iar rețeaua de gaze este în curs de extindere în zonă. Casa se află în proces de finisare.

Pentru mai multe detalii și programarea unei vizionări, vă stăm cu drag la dispoziție!
Cod ofertă / ID BLITZ: P169534
Id intern: P169534

Solicită vizionarea proprietății

Alege o zi disponibilă

20 Aprilie
21 Aprilie
22 Aprilie
23 Aprilie

Alege un interval orar

8:00 - 12:00
12:00 - 15:00
15:00 - 18:00
18:00 - 21:00

Următoarele date de contact oferite de tine vor fi accesibile proprietarului:

Locație

Contactează utilizatorul

ID: 4161329

Casă modernă P+1, cu finisaje premium, 440 mp teren, zona

5 camere | 134 m² | Dolj / Craiova

275.000 €


Vezi și alte anunțuri imobiliare
Apartamente vânzare Craiova-dj - 1 Mai Case-vile vânzare Craiova-dj - 1 Mai Garsoniere vânzare Craiova-dj - 1 Mai Terenuri vânzare Craiova-dj - 1 Mai Apartamente vânzare Craiova-dj - 2Cornitoiu Case-vile vânzare Craiova-dj - 2Cornitoiu Garsoniere vânzare Craiova-dj - 2Cornitoiu Terenuri vânzare Craiova-dj - 2Cornitoiu Apartamente vânzare Craiova-dj - Aeroport Case-vile vânzare Craiova-dj - Aeroport Garsoniere vânzare Craiova-dj - Aeroport Terenuri vânzare Craiova-dj - Aeroport