BLITZ Romania

Consultant imobiliar

Vânzare

4 camere | 110 m²

Casa Modernă și Luminoasă – Livada de Bihor | Eficienț

Bihor / Nojorid
125.000 €

Rată estimată

2.704 Lei/lună

Avans (15%)

93.188 lei

Perioada împrumutului

30 ani

Specificații

Număr camere 4

Suprafața utilă 110 m²

An finalizare construcție 2026

Suprafață teren 468 m²

Număr Băi 2

Stare proprietate Nouă

Mobilat și Utilat Nemobilat

Utilități Curent

Tip tranzacție Vânzare

Tip vânzător Companie

Vă oferim spre vânzare o locuință unifamilială situată într-o zonă liniștită din Livada de Bihor, concepută pentru cei care își doresc un cămin durabil, construit cu materiale de calitate și o compartimentare optimă.
Proprietatea se bucură de o locație excelentă, oferind echilibrul perfect între liniștea și accesibilitatea urbană: la 15 minute de centrul orașului Oradea
Acces: Drum asfaltat și conexiune rapidă către centura Oradea, facilitând naveta zilnică.
✨ Detalii Tehnice și Compartimentare
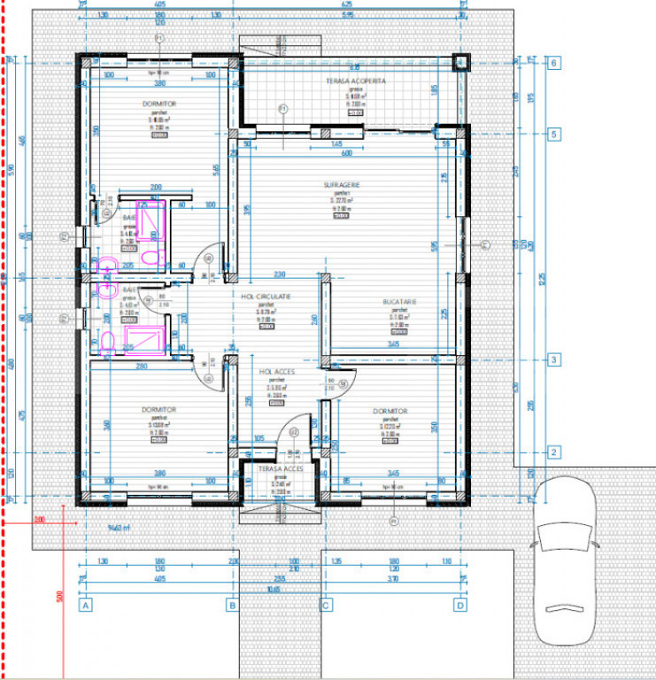
Casa are o suprafață construită de 133 mp (110 mp utili) pe un teren de 468 mp cu front de 18 metri.
Compartimentare: 3 dormitoare, living cu bucătărie open-space (foarte luminos), 2 băi.

???? Calitatea Construcției (Standarde Superioare)
Structură: Cărămida,  planșeu de beton și acoperiș cu țiglă de beton .
Izolație: Polistiren de 15 cm (performanță energetică ridicată).
Tâmplărie: Ferestre Madrugada tripan, profil 7 camere (izolație fonică și termică de top).
Confort: Încălzire în pardoseală pe toată suprafața, pompă de caldură
???? Independență și Facilități
Orientare Sud-Est: Expunere solară optimă, ideală pentru panouri fotovoltaice.
Apă și Canalizare: Puț forat la 50m (independență hidrică) și fosă septică ecologică.
Mediu: Zonă de case noi, foarte liniștită
???? Preț: 125.000 €
Prețul include finisarea "la cheie" și gardul perimetral.

Această proprietate reprezintă o investiție sigură într-o zonă în plină dezvoltare, fiind pregătită pentru noile standarde de eficiență energetică.
Te aștept la vizionare!

Cod ofertă / ID BLITZ: P162875
Id intern: P162875

Solicită vizionarea proprietății

Alege o zi disponibilă

04 Februarie
05 Februarie
06 Februarie
07 Februarie

Alege un interval orar

8:00 - 12:00
12:00 - 15:00
15:00 - 18:00
18:00 - 21:00

Următoarele date de contact oferite de tine vor fi accesibile proprietarului:

Locație

Contactează utilizatorul

ID: 4122603

Casa Modernă și Luminoasă – Livada de Bihor | Eficienț

4 camere | 110 m² | Bihor / Nojorid

125.000 €