Ravirom Imobiliare

Consultant imobiliar

Vânzare

5 camere | 150 m²

Casa P+E, 150mp, 5 camere teren 400mp, terasa, Lilieci, strada Rozleor

Bacau / Lilieci
144.900 €

Rată estimată

3.175 Lei/lună

Avans (15%)

108.023 lei

Perioada împrumutului

30 ani

Specificații

Număr camere 5

Suprafața utilă 150 m²

Suprafață teren 400 m²

An finalizare construcție 2024

Stare proprietate Nouă

Tip tranzacție Vânzare

Tip vânzător Companie

RAVIROM Imobiliare vinde cu comision zero la cumpãrãtor, o casã bine executatã, situatã in sat Lilieci, comuna Hemeius, pe strada Rozelor, la doi kilometri de bariera de la Gherãiesti.

Construitã in 2.024, de cãtre proprietar, cu simt de rãspundere. Casa este din cãrãmidã, acoperitã cu tablã Bilka, izolatã exterior cu termosistem de 10, cu plasã peste acesta.

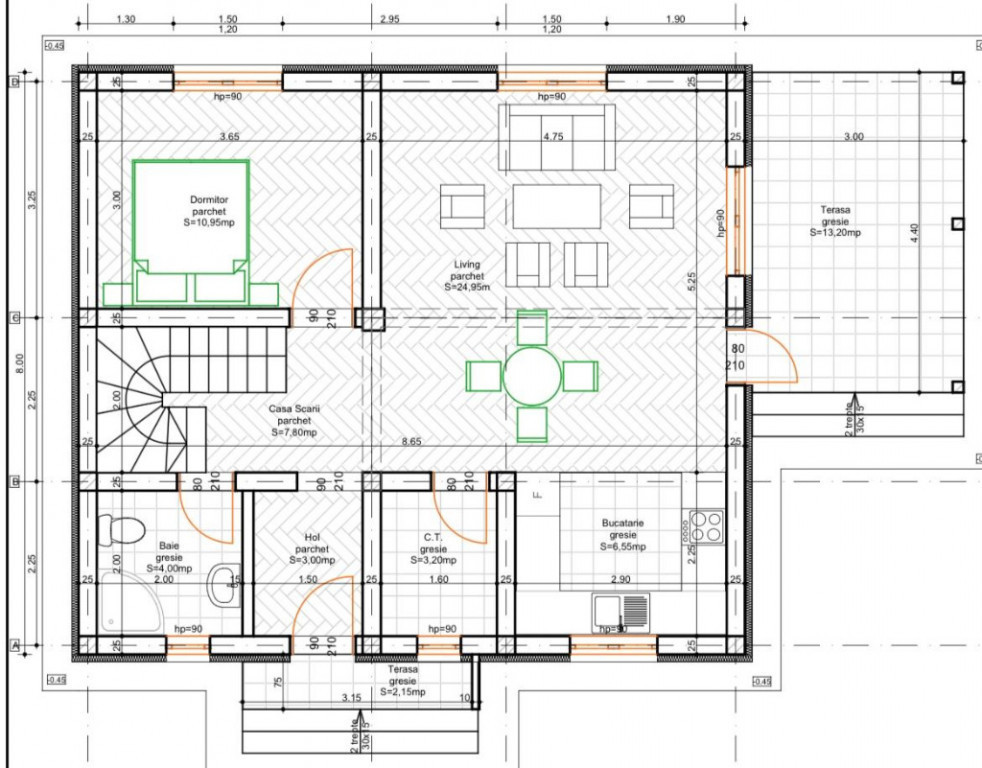
Compartimentare:

Parter:

- hol, living, bucãtãrie open - space, camerã, baie, camerã tehnicã, casa scãrii;

Etaj:

- trei dormitoare, baie, hol;

Amprenta casei este de 90 mp, suprafata utila este de 150 mp, fiind amplasata pe un teren in suprafata de 400 mp.

Peretii interiori sunt din cãrãmidã. Are placã din beton, decorativã siliconatã.

Tamplaria este din termopan. Podul este izolat cu vatã de 20.

Deschiderea terenului este de 20 ml, cu drum privat de acces.

Casa se va vinde la cheie, viitorul proprietar având posibilitatea sã isi aleagã un buget pentru parchet, gresie, faiantã, instalatii sanitare, electrice, etc.

Din bucãtãrie si living, avem a doua iesire a casei, foarte practicã, intrucât dã in lateralul casei, pe terasã.

Fosã septicã ecologicã.

Pentru vizionarea acestei proprietati agentii nostri va stau la dispozitie, de luni pana vineri, intre 9 - 12,30 si 13,30 - 18,30, sambata intre 9,30 - 14,30.

COMISION 0 (ZERO) LA CUMPARATOR !

Aceasta oferta apartine RAVIROM Imobilare, cu sediul pe strada Erou Gheorghe Rusu 4, in spatele BRD central (pozitionat intre Alice Tour si Farmacia Naturii).

Consultant dedicat: Acilian Vitencu.

ID RAVI: 050032.

Ravirom - experti in imobiliare !

Solicită vizionarea proprietății

Alege o zi disponibilă

27 Decembrie
28 Decembrie
29 Decembrie
30 Decembrie

Alege un interval orar

8:00 - 12:00
12:00 - 15:00
15:00 - 18:00
18:00 - 21:00

Următoarele date de contact oferite de tine vor fi accesibile proprietarului:

Locație

Contactează utilizatorul

ID: 4064058

Casa P+E, 150mp, 5 camere teren 400mp, terasa, Lilieci, strada Rozleor

5 camere | 150 m² | Bacau / Lilieci

144.900 €