BLITZ Romania

Consultant imobiliar

Vânzare

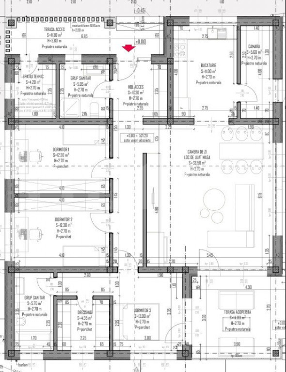
4 camere | 120 m²

Casa semifinisata pe un nivel, 600mp teren

Cluj / Popesti
219.000 €

Rată estimată

4.798 Lei/lună

Avans (15%)

163.265 lei

Perioada împrumutului

30 ani

Specificații

Număr camere 4

Suprafața utilă 120 m²

An finalizare construcție 2024

Niveluri imobil 1

Suprafață teren 600 m²

Număr Băi 2

Numărul de locuri de parcare 2

Stare proprietate În construcție

Mobilat și Utilat Nemobilat

Utilități Curent, Apă, Canalizare, Gaz

Tip tranzacție Vânzare

Tip vânzător Companie

Blitz îți propune spre vânzare o casă individuală modernă, situată într-o zonă liniștită din Popești, cu acces rapid și facil către oraș, la o distanță de 9 km fată de centrul orașului Cluj-Napoca – locul ideal pentru cei care caută echilibrul perfect între liniștea unei comunități retrase și dinamismul urban.

Locuința are o suprafață de 120 mp și este compartimentată inteligent pentru a oferi confort maxim:

✔️ 3 dormitoare de câte 12 mp, ideale pentru odihnă și relaxare
✔️ Dormitorul matrimonial beneficiază de baie proprie, dressing și acces direct pe terasă
✔️ Living spațios de 34 mp, perfect pentru momentele petrecute în familie, cu ieșire pe terasă
✔️ Bucătărie practică, completată de o cămară foarte generoasă
✔️ 2 băi
✔️ Terasă
✔️ Spațiu tehnic cu acces din exterior – ideal pentru depozitare sau atelier
✔️ Spațiu de depozitare în pod, perfect pentru lucruri sezoniere sau suplimentare
✔️ Curte liberă de 450 mp, situată în fața casei – spațiu ideal pentru grădină, foișor, loc de joacă sau pur și simplu relaxare în aer liber

Se vinde semifinisată, astfel încât să o poți amenaja exact pe gustul tău – tu alegi finisajele, noi îți oferim baza solidă!

✅ Construită cu materiale premium:

Ferestre termoizolante cu tâmplărie PVC

Încălzire în pardoseală cu centrală termică

Toate utilitățile sunt racordate: gaz, apă, curent, canalizare

Acces direct din drumul principal

Dacă îți dorești o locuință care oferă intimitate, confort și liniște, dar care rămâne aproape de oraș, aceasta este alegerea ideală.

???? Contactează-ne cu încredere pentru mai multe detalii sau pentru o vizionare!
Cod ofertă / ID BLITZ: P136543
Id intern: P136543

Solicită vizionarea proprietății

Alege o zi disponibilă

28 Decembrie
29 Decembrie
30 Decembrie
31 Decembrie

Alege un interval orar

8:00 - 12:00
12:00 - 15:00
15:00 - 18:00
18:00 - 21:00

Următoarele date de contact oferite de tine vor fi accesibile proprietarului:

Locație

Contactează utilizatorul

ID: 3845561

Casa semifinisata pe un nivel, 600mp teren

4 camere | 120 m² | Cluj / Popesti

219.000 €