Vânzări
Închirieri
Vânzare Casă - Vilă 4 camere, Central

Casa si teren cota parte 1/4, Schela, ID: R2749475

67.183 lei
ID 4058569
Case - Vile | 140 m² | 4 camere
Schela, Galati / Central
Zona Central
Număr camere 4
Suprafața utilă 140 m²
Suprafață teren 908 m²
An finalizare construcție 1980
Stare proprietate Bună
Număr niveluri imobil 2
Număr Băi mai mult de 3
Posibilitate parcare Nu
Utilități Curent,    Apă,    Canalizare,    Gaz
 Preț negociabil

Se vinde prin licitatie publica cota parte de 1/4 din dreptul de proprietate
Strada Lascar Catargiu, loc. Schela, jud. Galati
Proprietatea este situata pe strada Lascar Catargiu, in arealul format din strada Orhideei, strada Panselutei si strada Lozovei
Proprietatea beneficiaza de un teren in suprafata de 908 mp. Conform documentatiei cadastrale suprafata de 295 mp este incadrata in teren arabil si suprafata de 613 mp este incadrata in curti constructii.
Proprietatea are un front public de cca. 25 metri patrati la strada Lascar Catargiu.
Relieful proprietatii este plat, iar forma este relativ dreptunghiulara.
Proprietatea este imprejmuita de locuinte tip case si terenuri libere.
Proprietatea este imprejmuita partial cu gard din fier pe soclu din beton.
Consideram ca proprietatea a fost edificat in jurul anilor 80. Constructia este locuinta, cu regim de inaltime parter si pod. Aspectul imobilului, cel exterior se prezinta intr-o stare medie.
Solutia constructiva aferenta consideram ca este din caramida.
Acoperisul este sarpanta din lemn invelit cu tabla.
Tamplaria exterioara este realizata din profile PVC si geamuri termoizolante. Usa de acces este din metal.
Imobilul beneficiaza de utilitatile prezente in zona.
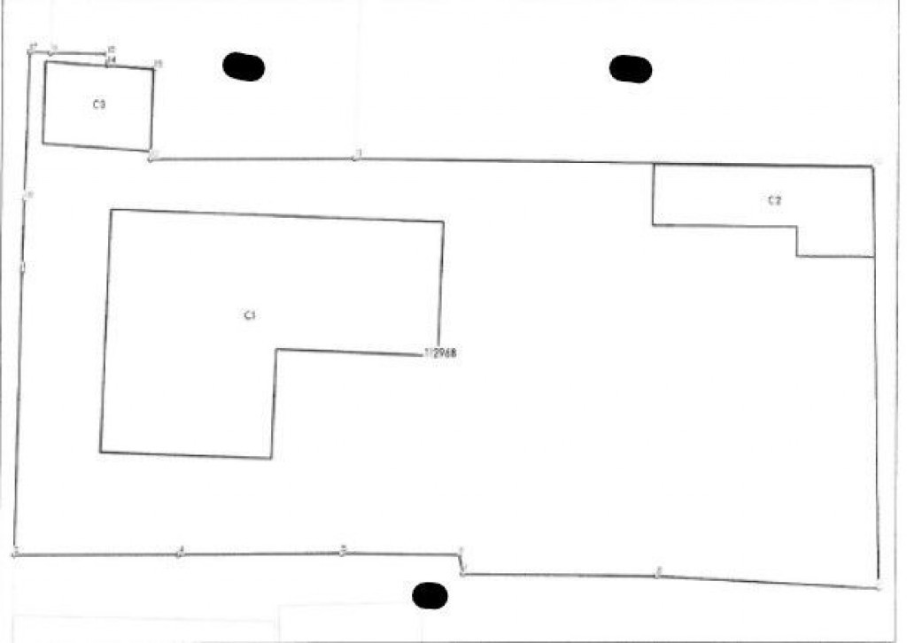
Suprafata construita desfasurat locuinta: 159 metri patrati
Suprafata construita desfasurat anexa C2: 40 metri patrati
Suprafata construita desfasurat anexa C3: 23 metri patrati

Solicită vizionarea proprietății

Casa si teren cota parte 1/4, Schela, ID: R2749475

Vizionare
Alege o dată disponibilă:
Marți
24 Martie
Miercuri
25 Martie
Joi
26 Martie
Vineri
27 Martie
Anulează
success
Solicitarea ta a fost trimisă cu succes!
Vei fi contactat de către proprietar în cel mai scurt timp posibil.
Contactează utilizatorul
Casa si teren cota parte 1/4, Schela, ID: R2749475
Ionut Paraschiv Consultant imobiliar Imopont.ro
07xx - AFIŞEAZĂ
ID 4058569
Anunțuri similare
Număr de telefon verificat
265.000 eur Casă / Vilă parter de vanzare in Balotesti, toate utili...
4 camere  •  135 m²  •  2022  •  mobilat complet
Construcţie nouă
Balotesti, IF, Central
azi, 06:27
Distribuie anunțul Adaugă la favorite
Număr de telefon verificat
212.500 eur Confort modern pe un singur nivel. Casă nouă în Oșorh...
4 camere  •  147 m²  •  2022  •  mobilat parțial
Construcţie nouă
Osorhei, BH, Central
azi, 06:21
Distribuie anunțul Adaugă la favorite
Număr de telefon verificat
210.000 eur Casă modernă în stil mediteranean, cu terase și veder...
4 camere  •  120 m²  •  2021  •  mobilat complet
Construcţie nouă
Paleu, BH, Central
azi, 06:20
Distribuie anunțul Adaugă la favorite
Număr de telefon verificat
79.000 eur Casă cu 4 camere din cărămidă, de vânzare în zona B...
4 camere  •  120 m²  •  1961  •  mobilat complet
Damis, BH, Central
azi, 06:19
Distribuie anunțul Adaugă la favorite
Vrei sa vinzi simplu si rapid?
Termenii și condițiile de pe site au fost actualizate. Detaliile complete sunt disponibile aici