Ionut Costin Stefan

Consultant imobiliar

Vânzare

4 camere | 132 m²

Casa single Otopeni Odaile 174mp, lot 272mp, gated community

Bucuresti-Ilfov / Otopeni
209.000 €

Rată estimată

4.521 Lei/lună

Avans (15%)

155.810 lei

Perioada împrumutului

30 ani

Specificații

Număr camere 4

Suprafața utilă 132 m²

An finalizare construcție 2024

Niveluri imobil 1

Suprafață teren 272 m²

Număr Băi 3

Numărul de locuri de parcare 3

Comision cumpărător 0%

Nu include TVA Da

Stare proprietate În construcție

Utilități Curent, Apă, Canalizare, Gaz

Tip tranzacție Vânzare

Tip vânzător Companie

ILFOV IMOBILIAR – „O mutare isteață!”

CRĂIȚELOR BOUTIQUE OTOPENI – Ultimele 2 case disponibile din cele 5 | Gated community | Construcții finalizate | Buget pentru finisare

Preț de la: 209.000 EUR + TVA (la alb)
Asa cum v-am obisnuit, COMISION 0.

Un ansamblu intim, format din 5 case single, construite cu responsabilitate și atenție la detalii.
Casele sunt amplasate în faza a doua a proiectului, cu acces separat pe un drum amenajat, într-o zonă liniștită, cu trafic redus. Prin drumul de servitute se ajunge rapid (pe jos) în zona centrală a Otopeniului, chiar sub pasarela pietonală, lângă stațiile de autobuz și viitoarea stație de metrou.

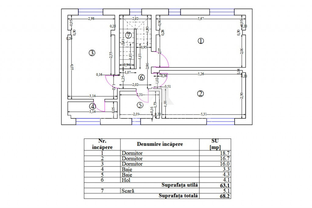
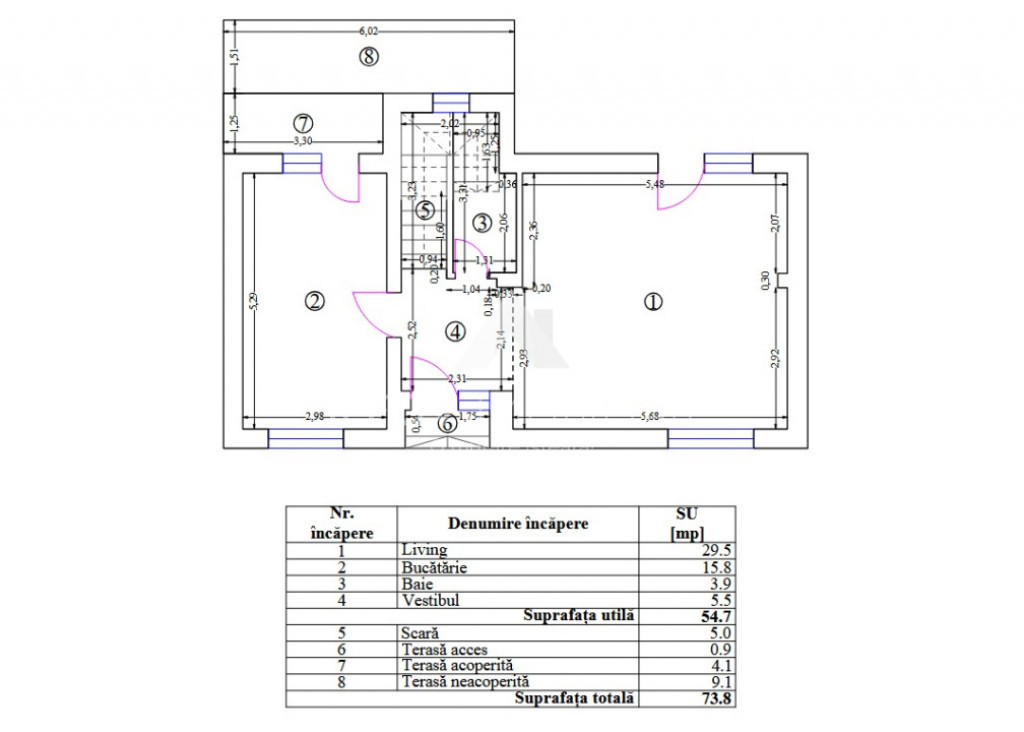
CASA SINGLE TIP 1 – P+1+M

Suprafață construită: 219 mp
Suprafață utilă (cu terasă): 163 mp
Teren: 245 mp
Disponibilitate: 1/2 unități
Preț: 243.000 EUR + TVA

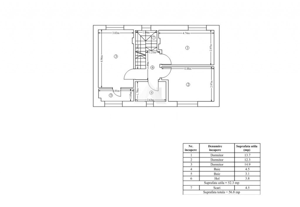
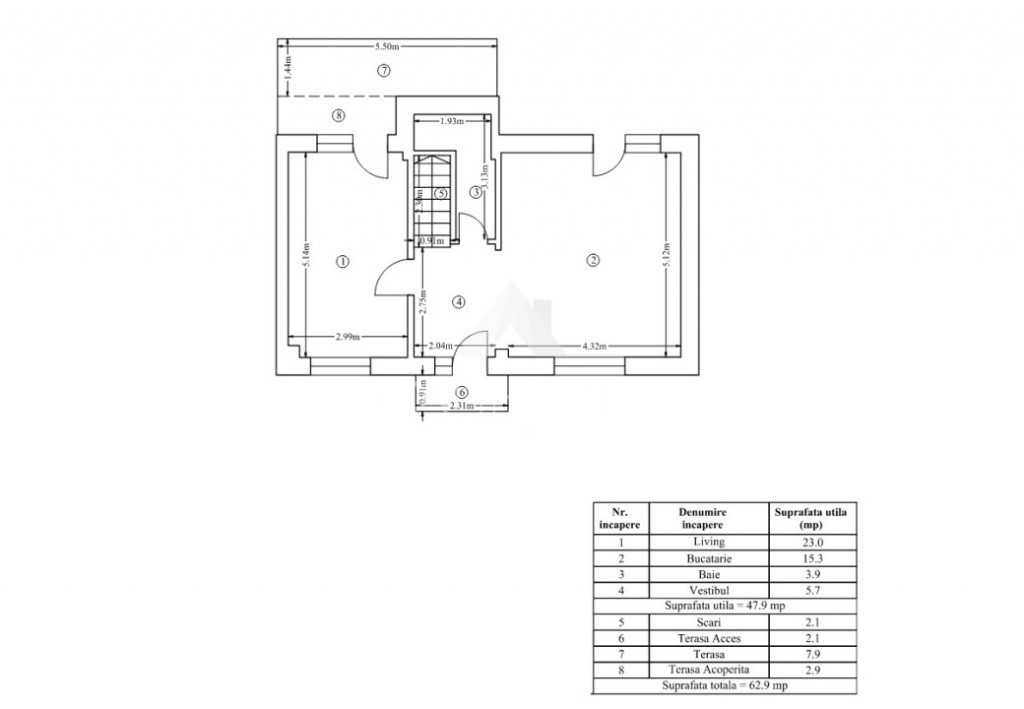
CASA SINGLE TIP 2 – P+1

Suprafață construită: 174,26 mp
Suprafață utilă (cu terasă): 132,29 mp
Teren: 272 mp
Disponibilitate: 1/3 unități
Preț: 229.000 EUR + TVA
Preț special: 209.000 EUR + TVA (la alb)

CONSTRUCȚII DE CALITATE
Structură pe cadre de beton armat
Pereți din cărămidă (exterior + interior)
Tâmplărie tripan
Încălzire în pardoseală
Centrală proprie
Branșamente individuale
2 locuri de parcare amenajate în fața fiecărei case
Buget inclus pentru personalizarea finisajelor

Un proiect boutique pentru cei care caută liniște, confort și intimitate în Otopeni.

Oferim consultanță prin broker pentru obținerea unui eventual credit imobiliar.
Dacă doriți o colaborare cu agenția noastră, ne puteți scrie pe adresa de e-mail sau ne puteți vizita la sediul din Otopeni, Str. 23 August nr. 152A, Ilfov.

Contact:
[email protected]
0733 041 859 – Costin Ștefan, Broker/Owner
Id intern: P324

Solicită vizionarea proprietății

Alege o zi disponibilă

28 Martie
29 Martie
30 Martie
31 Martie

Alege un interval orar

8:00 - 12:00
12:00 - 15:00
15:00 - 18:00
18:00 - 21:00

Următoarele date de contact oferite de tine vor fi accesibile proprietarului:

Locație

Contactează utilizatorul

ID: 4138882

Casa single Otopeni Odaile 174mp, lot 272mp, gated community

4 camere | 132 m² | Bucuresti-Ilfov / Otopeni

209.000 €