BLITZ Romania

Consultant imobiliar

Vânzare

4 camere | 145 m²

CASA STIL MEDITERANEEAN , Bariera Valcii , teren 500 mp

Dolj / Simnicu De Jos
185.000 €

Rată estimată

4.002 Lei/lună

Avans (15%)

137.918 lei

Perioada împrumutului

30 ani

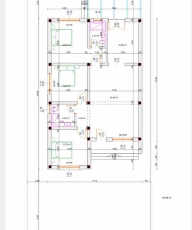
Specificații

Număr camere 4

Suprafața utilă 145 m²

An finalizare construcție 2026

Niveluri imobil 2

Suprafață teren 355000 m²

Număr Băi 2

Stare proprietate Nouă

Mobilat și Utilat Nemobilat

Utilități Curent, Apă, Canalizare, Gaz

Tip tranzacție Vânzare

Tip vânzător Companie

Blitz va propune o casa la gri ,in Bariera Valcii, pe parter in stil mediteraneean. un proiect super dragut cu materiale premium , beneficiind de toate utilitatile , apa, gaze, curent , fosa septica, De asemenea casa se preda cu partida de apa , partida de curent , Teren 355 mp, o curte generoasa, consructie din caramida  , termopane tripan singlafuri . Suprafata utila este de 145 mp , 3 camere , un living mare , bucatarie , incalzirea in pardoseala , sapa autonivelanta , instalatie electrica si sanitara .Terasa din spate are o suprafata de 15 mp si cea din fata 8mp.Un lucru foarte important este faptul ca aceasta constructie are placa la acoperis, inaltimea camerelor este de 3 metri. Pentru mai multe detalii va asteptam cu drag la vizionare !
Cod ofertă / ID BLITZ: P164157
Id intern: P164157

Solicită vizionarea proprietății

Alege o zi disponibilă

14 Februarie
15 Februarie
16 Februarie
17 Februarie

Alege un interval orar

8:00 - 12:00
12:00 - 15:00
15:00 - 18:00
18:00 - 21:00

Următoarele date de contact oferite de tine vor fi accesibile proprietarului:

Locație

Contactează utilizatorul

ID: 4128832

CASA STIL MEDITERANEEAN , Bariera Valcii , teren 500 mp

4 camere | 145 m² | Dolj / Simnicu De Jos

185.000 €