Marina Gavrilă

Consultant imobiliar

Vânzare

5+ camere | 280 m²

Casa tip duplex cu acces separat

Brasov / Brasov
550.000 €

Rată estimată

12.050 Lei/lună

Avans (15%)

410.025 lei

Perioada împrumutului

30 ani

Specificații

Preț negociabil Da

Suprafața utilă 280 m²

Suprafață teren 510 m²

Număr camere 5+

Niveluri imobil 3

An finalizare construcție 1988

Număr Băi 2

Ansamblu Rezidențial Nu

Posibilitate parcare Nu

Stare proprietate De renovat

Utilități Curent, Apă, Canalizare, Gaz, Încălzire

Tip tranzacție Vânzare

Tip vânzător Companie

Ati accesat un imobil situat in cartierul Blumana - zona Centru.

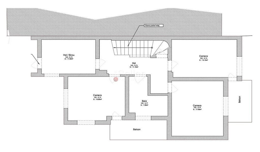
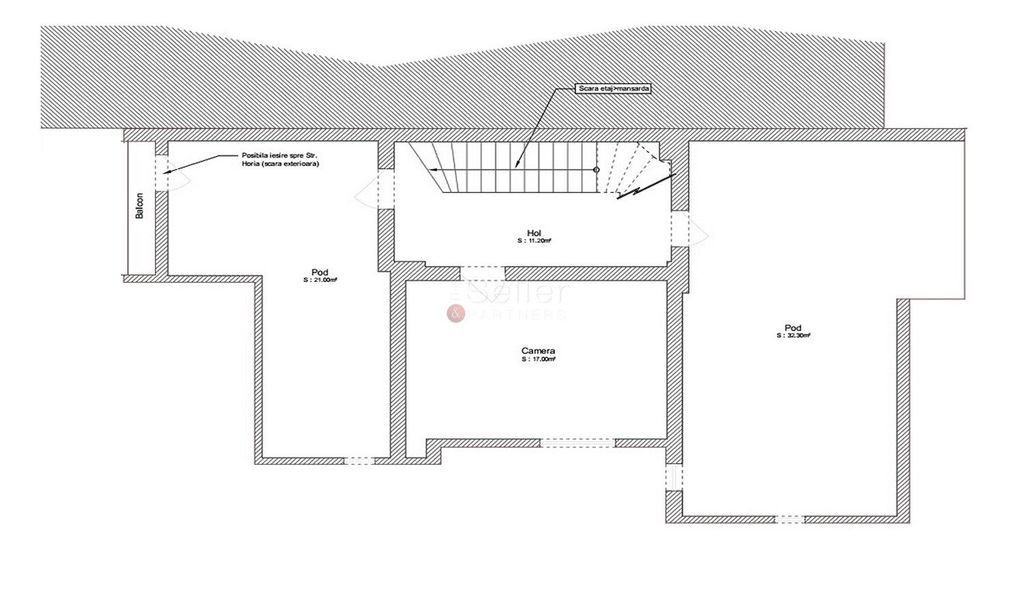
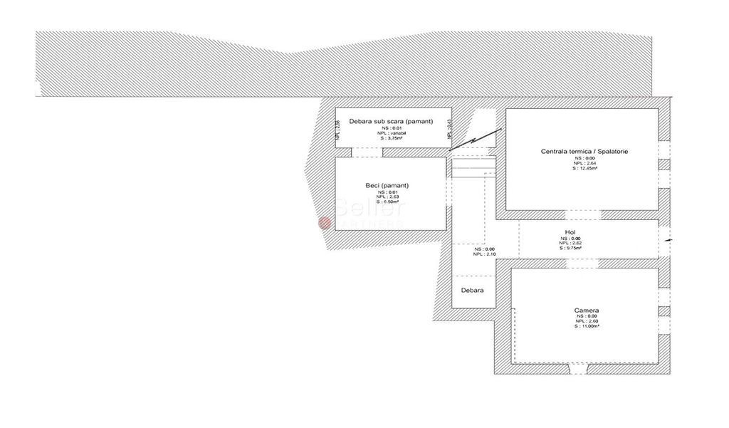
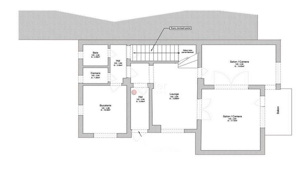
Construita in 1988 cladire tip duplex, casa este dispusa pe Demisol+ Parter + Etaj + Mansarda. Datorita pantei terenului accesul de la nivelul strazii se face direct catre etaj, iar parterul cat si demisolul au dublu acces, atat din casa cat si din curtea interioara. Compartimentarea casei este urmatoarea:

- Demisolul - cu o suprafata utila de 45 mp, detine acces atat din interior, prin scara de beton, direct de la parter, cat si din exterior, cu acces din curtea interioara, a fost configurat si utilizat ca si beci, debara, centrala termica si spalatorie, hol acces si camera depozitare.
- Parterul, cu o suprafata utila de 75 mp, detine acces atat din interior, prin scara de beton, direct de la etaj, cat si din exterior, cu acces din curtea interioara. Acesta a fost alocat zonei de zi si este compartimentat in living cu acces direct catre balcon, birou, lounge si hol de acces, bucatarie tip inchis, camara si baie;
- Etajul are o suprafata utila de 80 mp si este alocat zonei de noapte. Acesta a fost compartimentat in 3 dormitoare,  fiecare avand acces direct catre un balcon,  baie,  vestibul si hol de acces;
- Mansarda are o suprafata de 80 mp si este dispusa pe camera depozitare si 2 incaperi tip pod.  Beneficiind de acces pe scara betonata direct de la etaj si planseu de beton,  aceasta poate fi transformata intergral in zona de locuit.

Aceasta cladire a fost contruita pe fundatie de beton armat, cu plansee din beton armat, pe fiecare nivel. Peretii exteriori sunt realizati din caramida iar invelitoarea casei este tigla.
Imobilul este dotat cu centrala termica proprie pe gaz, tamplarie cu geam termopan, usile de acces in camere si la bai fiind realizate din lemn, iar ca si sursa suplimentara de incalzire, casa dispune de sobe cu incalzire pe lemne.

DOTARI:
- centrala termica;
- tamplarie PVC, cu geam termopan;
- parchet din lemn
- scari interioare placate cu lemn;
- curte libera 414 mp de teren.
- sobe pe lemn;
- beci;

IMPREJURIMI:
Accesul auto, pana in Pta Sfatului, se poate face in cca. 4-5 minute.

Se accepta achizitionarea prin accesarea unui credit bancar.

Solicită vizionarea proprietății

Alege o zi disponibilă

07 Decembrie
08 Decembrie
09 Decembrie
10 Decembrie

Alege un interval orar

8:00 - 12:00
12:00 - 15:00
15:00 - 18:00
18:00 - 21:00

Următoarele date de contact oferite de tine vor fi accesibile proprietarului:

Locație

Despre zona "Blumana"

păreri exprimate de 9 de utilizatori, pe o scară de la 1 la 10

Află clasamentul acestui cartier
Sănătate și Siguranță

Sănătate și Siguranță

8.4

Sănătate 8.3

Siguranță 8.5

Calitate aer 8.5

Curățenie 9.0

Zone verzi 7.7

Cultură și Educație

Cultură și Educație

7.3

Cultură 7.7

Educație 8.3

Sport 6.0

Ambianță și Lifestyle

Ambianță și Lifestyle

7.8

Nivel de trai 7.4

Magazine 8.3

Localuri 7.7

Parcări 7.7

Zgomot 8.0

Transport în comun

Transport în comun

7.7

Autobuz 7.7

Tramvai 0.0

Metrou 0.0

Contactează utilizatorul

ID: 3892428

Casa tip duplex cu acces separat

5+ camere | 280 m² | Brasov / Brasov

550.000 €


Vezi și alte anunțuri imobiliare
Apartamente vânzare Brasov-bv - 13 Decembrie Case-vile vânzare Brasov-bv - 13 Decembrie Garsoniere vânzare Brasov-bv - 13 Decembrie Terenuri vânzare Brasov-bv - 13 Decembrie Apartamente vânzare Brasov-bv - 15 Noiembrie Case-vile vânzare Brasov-bv - 15 Noiembrie Garsoniere vânzare Brasov-bv - 15 Noiembrie Terenuri vânzare Brasov-bv - 15 Noiembrie Apartamente vânzare Brasov-bv - Astra Case-vile vânzare Brasov-bv - Astra Garsoniere vânzare Brasov-bv - Astra Terenuri vânzare Brasov-bv - Astra