BLITZ Romania

Consultant imobiliar

Vânzare

4 camere | 120 m²

Casa tip duplex, la cheie, ultrafinisata, ansamblu privat in

Cluj / Chinteni
241.000 €

Rată estimată

5.280 Lei/lună

Avans (15%)

179.666 lei

Perioada împrumutului

30 ani

Specificații

Număr camere 4

Suprafața utilă 120 m²

An finalizare construcție 2025

Niveluri imobil 1

Suprafață teren 250 m²

Număr Băi 3

Numărul de locuri de parcare 1

Nu include TVA Da

Stare proprietate Bună

Mobilat și Utilat Complet

Utilități Curent, Apă, Canalizare, Gaz

Tip tranzacție Vânzare

Tip vânzător Companie

Descoperă confortul și liniștea unei locuințe moderne, amplasată într-un ansamblu privat de duplexuri, cu acces rapid către Cluj-Napoca. O alegere ideală pentru cei care își doresc să fie aproape de oraș, dar departe de agitația lui.

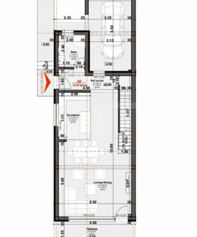
Suprafață utilă: 120 mp
Compartimentare inteligentă:

Parter: living spațios cu bucătărie tip open space, baie

Etaj: 3 dormitoare, 2 băi – dintre care un dormitor matrimonial cu baie proprie și balcon privat

Beneficii cheie:

- Finisaje de calitate superioară, mobilier si electrocasnice INCLUSE
- Garaj 
- Parte dintr-un ansamblu privat, liniștit și sigur
- Construcție durabilă, eficiență energetică crescută
- Încălzire în pardoseală pentru un confort termic uniform
- Luminozitate naturală excelentă și spații generoase
- Acces facil către Cluj, în doar 10 minute

Daca esti in cautarea unei locuite la cheie, unde sa te poti muta fara batai de cap, această proprietate oferă echilibrul ideal între intimitate, funcționalitate și estetică. 

La prețul afișat se adaugă TVA de 21% si este valabil DOAR pentru un avans consistent din resurse proprii! La achiziția pe persoana juridică, se aplică taxare inversă de TVA.

Contactează-ne pentru mai multe detalii sau pentru a programa o vizionare!

Cod ofertă / ID BLITZ: P150516
Id intern: P150516

Solicită vizionarea proprietății

Alege o zi disponibilă

28 Decembrie
29 Decembrie
30 Decembrie
31 Decembrie

Alege un interval orar

8:00 - 12:00
12:00 - 15:00
15:00 - 18:00
18:00 - 21:00

Următoarele date de contact oferite de tine vor fi accesibile proprietarului:

Locație

Contactează utilizatorul

ID: 4028870

Casa tip duplex, la cheie, ultrafinisata, ansamblu privat in

4 camere | 120 m² | Cluj / Chinteni

241.000 €