Alexandru Nita

Proprietar

Vânzare

3 camere | 64 m²

Cauți mai mult decât un simplu apartament 3 camere Pantelimon

Bucuresti-Ilfov / Bucuresti
126.000 €

Rată estimată

2.726 Lei/lună

Avans (15%)

93.933 lei

Perioada împrumutului

30 ani

Specificații

Număr camere 3

Suprafața utilă 64 m²

Compartimentare Decomandat

Confort 1

Etaj 9

An finalizare construcție 1974

Tip imobil Bloc apartamente

Stare proprietate Renovată

Tip tranzacție Vânzare

Tip vânzător Persoană fizică

Acest apartament de 3 camere este refugiul urban perfect, situat strategic pentru a îmbina liniștea cu dinamismul orașului.

  Detalii care fac diferența:.
Apartament decomandat cu 3 camere.
Orientarea nu este catre strada principala ceea ce vă oferă un plus de liniște)
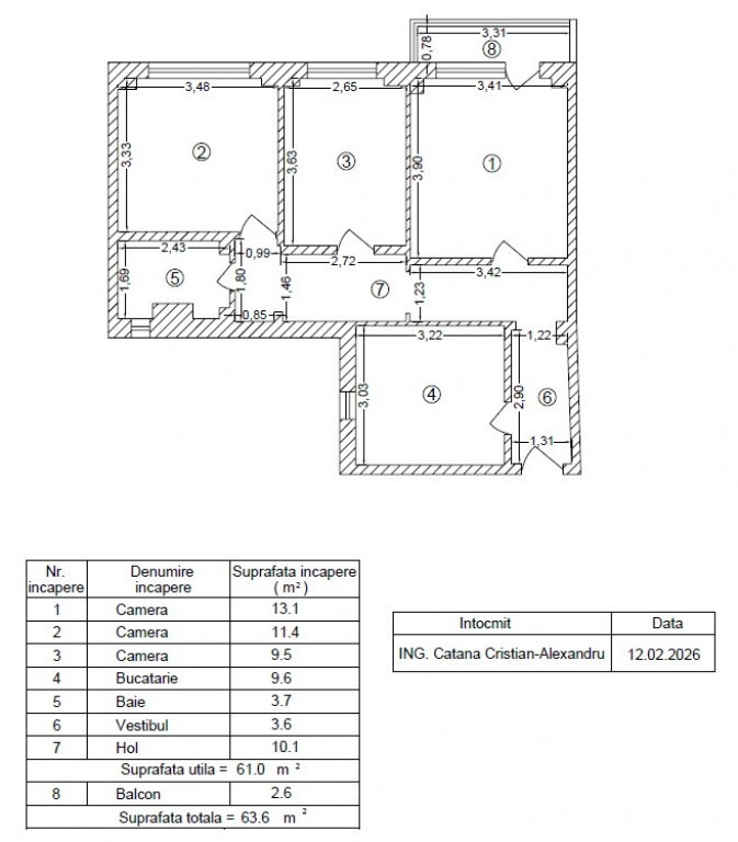
Suprafață utila: 61 m2 
Balcon: 2.6 m2
Suprafață utilă totală: 63.6 m2
Gata de mutat: Mobilat și utilat complet, cu un design interior gândit pentru confort absolut
Facilități: Loc de parcare inclus în preț. (achitat integral la ADP pe anul in curs), poziționare in fața scării.
Localizare strategică (Ești aproape de tot ce contează):
15 minute de Metrou Costin Georgian, stație STB in fata blocului, stație nod de legătura tramvai/STB la 5 min (stația Pantelimon)
5 minute de Parcul Sticlăriei; 10 minute de Parcul Cosmos; 15 minute de Parcul Morarilor & Parcul Florilor; 20 min de Parcul Pantelimon si multe alte parcuri mici "intre blocuri"
Finisaje moderne: parchet laminat, gresie, faianță, geamuri tripan, ușă metalică

Orientare: NW
Bloc cu lift, supraveghere video și interfon pentru acces controlat.
Bloc reabilitat termic (anvelopat cu polistiren de 10 cm pe exterior) și consolidat 
Imobil finalizat în 1974, structură solidă pe cadre din beton armat turnat monolit, rezemați pe o fundatie de tip radier general.
Bloc expertizat fără risc seismic (expertiză tehnică făcută în Februarie 2026)
Etaj 9 / 10 (locuit)
Izolație interioara ai pereților exterior cu vata minerală cu inserție de aluminiu și rigips;
Parchet 14 mm izolat cu polistiren extrudat de 5 mm + folie PPE 5 mm.

Ușă metalică cu Vizor/sonerie video smart, de identificare si supraveghere, wireless (senzori de mișcare, posibilitatea de video interfon direct de pe telefonul tău).
Centrala termica proprie Ariston Alteas One WiFi (Control remote - Posibilitatea de a crea 2 intervale de timp cu temp. diferite
2 x Aer condiționat Gree WiFi – Control remote (1 pe hol ce ”bate” in cele 2 dormitoare si unul in sufragerie) 
Hotă Telescopica Samus cu 2 trepte și gaură de evacuare de Φ 150 cm
Chiuveta multifuncțională cu filtru de apa 3M (instalație apa potabila separat)
Plită de sticlă neagră pe gaz marca Beko
Cuptor electric cu 13 funcții (Air Fry, Steam Cooking, Aqua Clean, curățare pirolitica, etc.)
Frigider Side-by-Side Sharp cu dozator de apa si gheață.
Cuptor cu microunde CookIt
Smart-TV Samsung LED 80 cm (în Bucatărie)
Cofetieră Krups cu ecran tactil (11 băuturi)
Smart-TV Samsung 4K LED 125 cm (în sufragerie)
Smart-TV Sony Bravia 4K LED 123 cm (în dormitor matrimonial)
Smart-TV Sony Bravia 4K LED 108 cm (în dormitor)
Mașină de Spălat Samsung 8 Kg cu tehnologie Ai si AddWash (posibilitatea de a adăuga haine ulterior)
Uscător de rufe Samsung 9 Kg cu pompă de căldură și tehnologie Ai

Beneficii zonă:
Creșă & Școală gimnazială cu program prelungit; Liceu (toate in raza de 10 min)
Spital Malaxa (in fața blocului); Spital Pantelimon (10 min)
Kaufland + Mega Image + La Doi Pași in fața bloclui; Carrefour la 10 min. și Lidl la 15 min.

Apartamentul este pretabil pentru locuinta proprie sau investitie (chirie avantajoasa). 
0757025052
Preț: 126.000 Euro (nu se percepe TVA; Comision 0%; Proprietar).

Solicită vizionarea proprietății

Alege o zi disponibilă

28 Martie
29 Martie
30 Martie
31 Martie

Alege un interval orar

8:00 - 12:00
12:00 - 15:00
15:00 - 18:00
18:00 - 21:00

Următoarele date de contact oferite de tine vor fi accesibile proprietarului:

Locație

Staţii de tramvai

Granitul 267 metri

Grup Industrial Titan 476 metri

Staţii de autobuz

RATB Spitalul Nicolae Malaxa 76 metri

RATB Granitul 180 metri

Staţii de tren

Titan Sud 664 metri

Gara Obor 3.3 kilometri

Staţii de metrou

Metrorex Metrou Republica 720 metri

Metrorex Metrou Costin Georgian 928 metri

Despre zona "Pantelimon"

păreri exprimate de 559 de utilizatori, pe o scară de la 1 la 10

Află clasamentul acestui cartier
Sănătate și Siguranță

Sănătate și Siguranță

6.9

Sănătate 7.2

Siguranță 7.2

Calitate aer 6.0

Curățenie 6.3

Zone verzi 7.6

Cultură și Educație

Cultură și Educație

7.0

Cultură 6.1

Educație 7.7

Sport 7.2

Ambianță și Lifestyle

Ambianță și Lifestyle

6.5

Nivel de trai 6.7

Magazine 7.9

Localuri 6.7

Parcări 4.9

Zgomot 6.4

Transport în comun

Transport în comun

6.9

Autobuz 7.5

Tramvai 6.8

Metrou 6.4

Contactează utilizatorul

ID: 4136772

Cauți mai mult decât un simplu apartament 3 camere Pantelimon

3 camere | 64 m² | Bucuresti-Ilfov / Bucuresti

126.000 €