Ilie Loghin

Consultant imobiliar

Vânzare

4 camere | 76 m²

Ciurbesti - Miroslava, Cabana de lemn 117mp, 69.900 euro

Iasi / Ciurbesti
70.000 €

Rată estimată

1.534 Lei/lună

Avans (15%)

52.185 lei

Perioada împrumutului

30 ani

Specificații

Număr camere 4

Suprafața utilă 76 m²

An finalizare construcție 2023

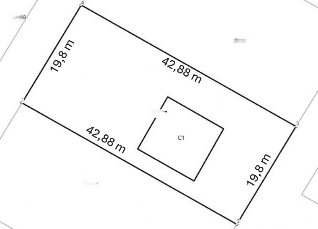
Suprafață teren 850 m²

Număr Băi 2

Numărul de locuri de parcare 2

Stare proprietate Nouă

Tip tranzacție Vânzare

Tip vânzător Companie

DESTINE IMOBILIARE vă prezintă spre vânzare o casă construită integral din lemn, finalizată în 2023, la gri,  situată în Ciurbești, la drum pietruit, într-o zonă liniștită, cu pădure, pe un teren generos de 850 m².

Imobilul este conceput pentru închiriere sau locuire multifamilială, având două intrări independente.

Caracteristici:
- Suprafață utilă: 76,80 m²
- Teren aferent: 850 m²+ 150m² cota de drum 
- Front stradal: 19,83 m liniari
- deschidere la 2 drumuri
- Terasă: 24 m²
- Pod: da

Compartimentare:
- 4 camere
- 2 bucătării
- 2 băi (ambele cu geam)
- 2 intrări separate

Dotări:
- fântână proprie
- fosă ecologică
Pret: 69.900 €

Proprietatea oferă intimitate, liniște și aer curat, fiind ideală pentru locuință permanentă, casă de vacanță sau investiție imobiliară.

 Pentru detalii suplimentare și programarea unei vizionări, vă rugăm să ne contactați: 0757.910.832 Ilie Loghin 
Cod oferta: P- 4468
Id intern: P4468

Solicită vizionarea proprietății

Alege o zi disponibilă

21 Decembrie
22 Decembrie
23 Decembrie
24 Decembrie

Alege un interval orar

8:00 - 12:00
12:00 - 15:00
15:00 - 18:00
18:00 - 21:00

Următoarele date de contact oferite de tine vor fi accesibile proprietarului:

Locație

Contactează utilizatorul

ID: 4102644

Ciurbesti - Miroslava, Cabana de lemn 117mp, 69.900 euro

4 camere | 76 m² | Iasi / Ciurbesti

70.000 €