REVOLUTION RESIDENCE

Consultant imobiliar

Vânzare

2 camere | 66 m²

COMISION 0% - Apartamente cu 2 si 3 camere - Bdul Republicii 44

Maramures / Baia Mare
97.200 €

Rată estimată

2.103 Lei/lună

Avans (15%)

72.463 lei

Perioada împrumutului

30 ani

Specificații

Număr camere 2

Suprafața utilă 66 m²

Compartimentare Decomandat

Confort 1

Etaj 2

An finalizare construcție 2026

Tip imobil Bloc apartamente

Stare proprietate În construcție

Tip tranzacție Vânzare

Tip vânzător Companie

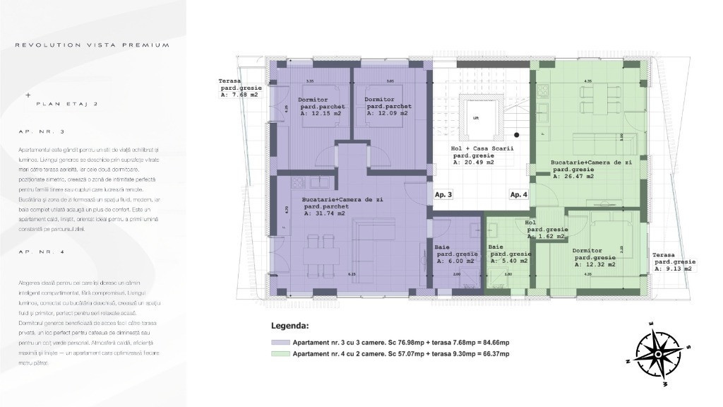
NEW! Descopera cel mai nou si modern complex rezidential REVOLUTION VISTA PREMIUM, situat in zona Catedralei Sfanta Treime, pe Bdul Republicii 44 din Baia Mare, un proiect marca Revolution Residence.

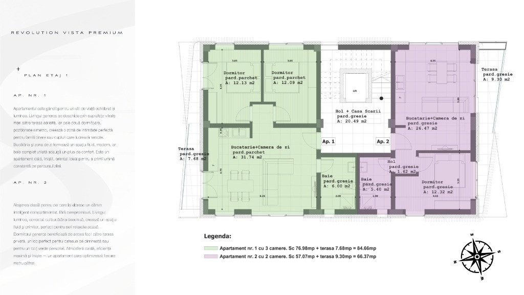
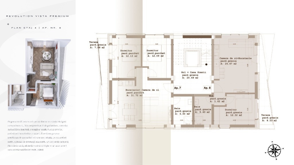
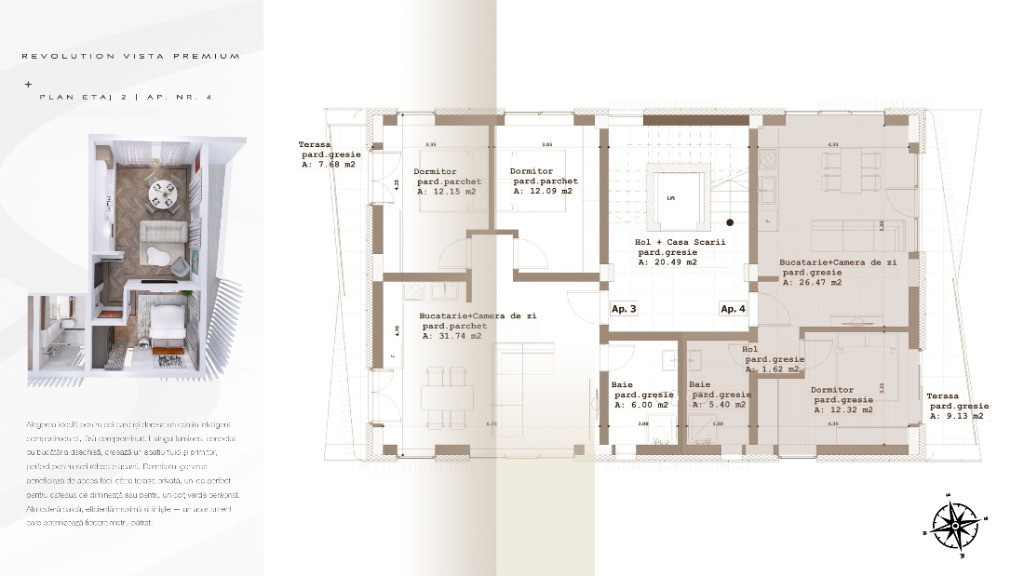
Va propunem spre vanzare apartamente cu 2 si 3 camere ce au o suprafata cuprinsa intre 57.07 mpc si 76.98 mpc plus terasa cu suprafete cuprinse intre 7.68mpc si 9.3mpc.
Achizitioneaza unul din apartamentele cu 2 sau 3 camere si beneficiezi de design gratuit pentru amenajarea camerei de baie.

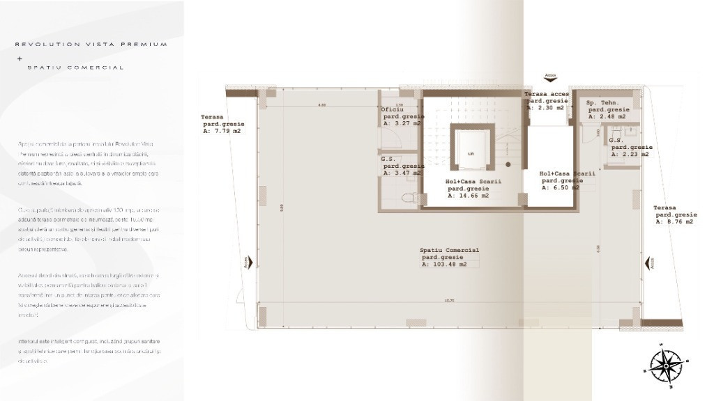
Detalii proiect:
- imobil locuinte P+4Etaje si cuprinde un total de 8 unitati de apartamente
- locatie: Bdul Republicii 44, Baia Mare
- fatada ventilata, costuri reduse in viitor legate de intretinerea exterioara
- termoizolatie exterioara realizata cu vata bazaltica de 15 cm
- peretii interiori dintre apartamente si cei comuni cu, casa scarii sunt formati din doua randuri de caramida plus vata bazaltica, pentru un confort termic si fonic sporit
- design ultra modern
- finisaje moderne
- parcare exterioara
- supraveghere video
- acces privat
- lift
- spatii comerciale la parterul blocului
- design interior personalizat pentru spatiile comune
- pozitionare excelenta, blocul fiind retras, ferit de agitatia orasului, pozitionarea fiind intr-o zona linistita
- standarde ridicate de siguranta si calitate
- imobilul se vinde locuibil, cu instalatie de incalzire prin pardoseala si centrala termica in condensare

Facilitati zona:
- culte religioase, Catedrala Sfanta Treime, la cca 200m distanta
- mall Shopping Park Baia Mare, la cca 250m distanta
- supermarket Lidl, Kaufland, la cca 250m distanta
- zona relaxare, parcul central, cca 500m distanta
- unitati de invatamant, cca 250m distanta
- zona cazare, hotel Europa, la cca 800m distanta
- statii alimentare Petrom, la cca 50m distanta

Preturi incepand de la 1450Euro mpc + TVA, care se va aplica conform normelor in vigoare.
Pentru mai multe detalii, ne puteti contacta la numarul de telefon 0372.477.477 0774.049.796

Solicită vizionarea proprietății

Alege o zi disponibilă

14 Februarie
15 Februarie
16 Februarie
17 Februarie

Alege un interval orar

8:00 - 12:00
12:00 - 15:00
15:00 - 18:00
18:00 - 21:00

Următoarele date de contact oferite de tine vor fi accesibile proprietarului:

Locație

Despre zona "Republicii"

păreri exprimate de 142 de utilizatori, pe o scară de la 1 la 10

Află clasamentul acestui cartier
Sănătate și Siguranță

Sănătate și Siguranță

7.4

Sănătate 7.5

Siguranță 7.5

Calitate aer 6.9

Curățenie 7.4

Zone verzi 7.5

Cultură și Educație

Cultură și Educație

7.5

Cultură 6.9

Educație 8.0

Sport 7.6

Ambianță și Lifestyle

Ambianță și Lifestyle

7.0

Nivel de trai 6.9

Magazine 7.5

Localuri 7.4

Parcări 6.5

Zgomot 6.6

Transport în comun

Transport în comun

8.3

Autobuz 8.3

Tramvai 0.0

Metrou 0.0

Contactează utilizatorul

ID: 4105051

COMISION 0% - Apartamente cu 2 si 3 camere - Bdul Republicii 44

2 camere | 66 m² | Maramures / Baia Mare

97.200 €


Vezi și alte anunțuri imobiliare
Apartamente vânzare Baia-mare-mm - Bogdan Voda Case-vile vânzare Baia-mare-mm - Bogdan Voda Garsoniere vânzare Baia-mare-mm - Bogdan Voda Terenuri vânzare Baia-mare-mm - Bogdan Voda Apartamente vânzare Baia-mare-mm - Decebal Case-vile vânzare Baia-mare-mm - Decebal Garsoniere vânzare Baia-mare-mm - Decebal Terenuri vânzare Baia-mare-mm - Decebal Apartamente vânzare Baia-mare-mm - Depozitelor Case-vile vânzare Baia-mare-mm - Depozitelor Garsoniere vânzare Baia-mare-mm - Depozitelor Terenuri vânzare Baia-mare-mm - Depozitelor