Elena Truta

Consultant imobiliar

Vânzare

4 camere | 120 m²

COMISION 0 Casă individuală pe parter, Cartier Izvor

Brasov / Tarlungeni
184.900 €

Rată estimată

4.051 Lei/lună

Avans (15%)

137.843 lei

Perioada împrumutului

30 ani

Specificații

Preț negociabil Da

Nu include TVA Nu

Suprafața utilă 120 m²

Suprafață teren 400 m²

Număr camere 4

Niveluri imobil 12+

An finalizare construcție 2025

Număr Băi 2

Numărul de locuri de parcare 2

Ansamblu Rezidențial Nu

Posibilitate parcare Da

Mobilat și Utilat Nemobilat

Stare proprietate Nouă

Utilități Curent, Apă, Gaz, Încălzire

Tip tranzacție Vânzare

Tip vânzător Companie

Dacă îți dorești o locuință modernă, spațioasă și luminoasă, amplasată într-o zonă liniștită, dar totuși aproape de oraș, această casă din cartierul Izvor este alegerea ideală pentru tine și familia ta. Proprietatea îmbină confortul urban cu liniștea și aerul curat oferit de natură, oferind totodată o priveliște superbă către munți.

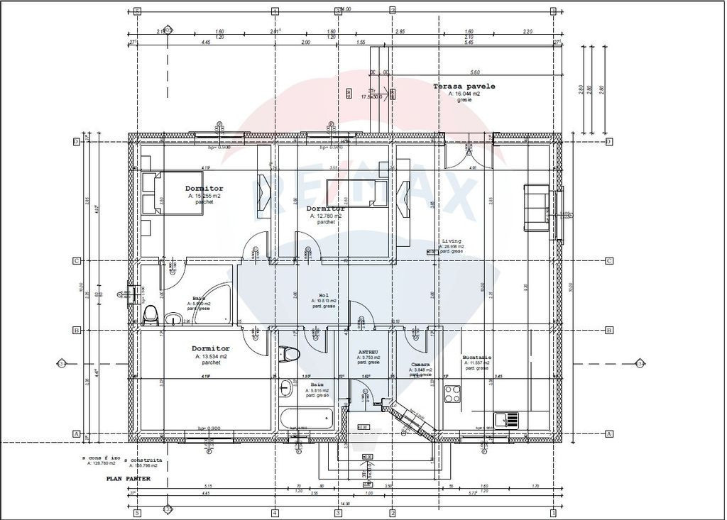
Casa este construită pe un teren de 400 mp, are o suprafață utilă de 117 mp și este dispusă pe un singur nivel (parter). Spațiul este eficient compartimentat pentru a asigura confort, intimitate și funcționalitate.

Locuința oferă o zonă de zi generoasă și luminoasă, formată dintr-un living spațios cu bucătărie open-space cu posibilitatea de separare a acesteia, dacă se dorește.
Sunt disponibile trei dormitoare, dintre care unul matrimonial cu baie proprie, două băi moderne, un spațiu de depozitare bine amplasat și o terasă exterioară de 16 mp, cu acces direct din living – perfectă pentru relaxare sau pentru momente petrecute în familie.

Construcția este nouă, realizată la standarde moderne, cu structură din cărămidă și izolație exterioară de 10 cm, acoperiș din țiglă ceramică și tâmplărie PVC cu geamuri tripan Salamander.
Casa beneficiază de încălzire în pardoseală, oferind un confort termic sporit pe tot parcursul anului.
Utilitati: apă, gaz, electricitate și fosă septică.

Imobilul va fi predat "la cheie", în funcție de preferințele cumpărătorului. Finisajele pot fi personalizate (gresie, faianță, parchet, centrală termică, obiecte sanitare, uși), în limita bugetului alocat de dezvoltator, de 4.000 euro.
Predarea finală este estimată la 3 luni, oferind timp suficient pentru personalizarea interiorului după propriul stil.

Metode de plată:
- plată integrală
- plată în tranșe, conform unui grafic stabilit cu dezvoltatorul
- finanțare prin credit ipotecar

Casa este situată într-un cartier în plină dezvoltare din zona Izvor, una dintre cele mai căutate zone pentru cei care doresc să trăiască într-un mediu curat, liniștit și sigur. Accesul către oraș este rapid și facil, iar în apropiere se regăsesc școli, grădinițe, magazine și mijloace de transport.
Drumul de acces este bine întreținut, iar zona se dezvoltă constant, devenind o comunitate tot mai atractivă pentru familii tinere.

Pentru mai multe informații sau pentru a programa o vizionare, vă stau cu drag la dispoziție!

Solicită vizionarea proprietății

Alege o zi disponibilă

28 Decembrie
29 Decembrie
30 Decembrie
31 Decembrie

Alege un interval orar

8:00 - 12:00
12:00 - 15:00
15:00 - 18:00
18:00 - 21:00

Următoarele date de contact oferite de tine vor fi accesibile proprietarului:

Locație

Contactează utilizatorul

ID: 4069272

COMISION 0 Casă individuală pe parter, Cartier Izvor

4 camere | 120 m² | Brasov / Tarlungeni

184.900 €