BLITZ Romania

Consultant imobiliar

Vânzare

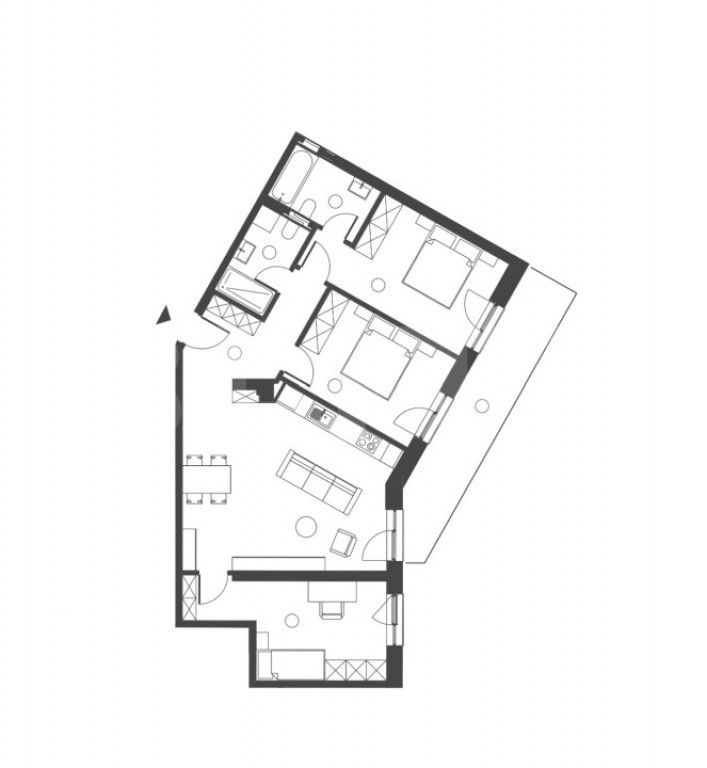
4 camere | 87 m²

Comision 0 ! Somesului 15, Apartament 4 camere, Semicentral,

Cluj / Cluj-Napoca
328.000 €

Rată estimată

7.186 Lei/lună

Avans (15%)

244.524 lei

Perioada împrumutului

30 ani

Specificații

Număr camere 4

Suprafața utilă 87 m²

Compartimentare Semidecomandat

An finalizare construcție 2025

Tip imobil Bloc apartamente

Niveluri imobil 6

Număr Băi 2

Etaj 2

Stare proprietate În construcție

Mobilat și Utilat Nemobilat

Confort 1

Tip tranzacție Vânzare

Tip vânzător Companie

Nu include TVA Da

Ansamblul Somesului 15 by Hexagon combină locuințe de 2, 3, 4 camere. Materialele și dotările sunt de cel mai înalt nivel, iar ansamblul respectă standardele nZEB prin soluții sustenabile (energie geotermală, pompe de căldură, panouri solare). În plus, Hexagon are o reputație solidă în piață—acest proiect este ideal pentru clienții care caută confort, calitate și un stil de viață urban responsiv. Apartamentele se predau Finisate. Clădirea îmbină un design rafinat cu eficiența energetică, prin fațadă ventilată cu tehnologie Hytect ce purifică aerul, termoizolație sănătoasă din vată bazaltică de 200 mm și tâmplării placate cu aluminiu, dotate cu sticlă tripan și jaluzele automate pentru protecție solară. Echipamentele high-tech includ un sistem bivalent de încălzire și răcire prin tavane, pompe de căldură geotermale și solare, panouri fotovoltaice pe acoperiș și ventilare cu recuperare de căldură integrată în fațade. Confortul și eficiența sunt amplificate de un sistem smart home pentru controlul încălzirii, răcirii, iluminatului și jaluzelelor, precum și de stațiile de încărcare electrică inteligente din parcarea subterană. Toate acestea sunt completate de o curte interioară amenajată peisagistic ca o oază de liniște și un spațiu de joacă ce continuă firesc peisajul malului Someșului.
Apartamentul prezentat are o suprafata utila de 88 mp plus o terasa de 14.6 mp. Pretul parcarilor subterane incep de la 18.000 plus TVA.

Cod ofertă / ID BLITZ: P150508
Id intern: P150508

Solicită vizionarea proprietății

Alege o zi disponibilă

28 Decembrie
29 Decembrie
30 Decembrie
31 Decembrie

Alege un interval orar

8:00 - 12:00
12:00 - 15:00
15:00 - 18:00
18:00 - 21:00

Următoarele date de contact oferite de tine vor fi accesibile proprietarului:

Locație

Despre zona "Semicentral"

păreri exprimate de 51 de utilizatori, pe o scară de la 1 la 10

Află clasamentul acestui cartier
Sănătate și Siguranță

Sănătate și Siguranță

7.3

Sănătate 7.6

Siguranță 8.0

Calitate aer 6.0

Curățenie 7.3

Zone verzi 7.4

Cultură și Educație

Cultură și Educație

7.7

Cultură 7.9

Educație 7.9

Sport 7.4

Ambianță și Lifestyle

Ambianță și Lifestyle

7.1

Nivel de trai 7.4

Magazine 7.6

Localuri 8.3

Parcări 5.8

Zgomot 6.3

Transport în comun

Transport în comun

8.0

Autobuz 8.4

Tramvai 7.5

Metrou 0.0

Contactează utilizatorul

ID: 4028621

Comision 0 ! Somesului 15, Apartament 4 camere, Semicentral,

4 camere | 87 m² | Cluj / Cluj-Napoca

328.000 €


Vezi și alte anunțuri imobiliare
Apartamente vânzare Cluj-napoca-cj - Aeroport Case-vile vânzare Cluj-napoca-cj - Aeroport Garsoniere vânzare Cluj-napoca-cj - Aeroport Terenuri vânzare Cluj-napoca-cj - Aeroport Apartamente vânzare Cluj-napoca-cj - Andrei Muresanu Case-vile vânzare Cluj-napoca-cj - Andrei Muresanu Garsoniere vânzare Cluj-napoca-cj - Andrei Muresanu Terenuri vânzare Cluj-napoca-cj - Andrei Muresanu Apartamente vânzare Cluj-napoca-cj - Apahida Case-vile vânzare Cluj-napoca-cj - Apahida Garsoniere vânzare Cluj-napoca-cj - Apahida Terenuri vânzare Cluj-napoca-cj - Apahida