Doinita Moroiu

Consultant imobiliar

Vânzare

3 camere | 67 m²

Compartimentare Practica

Brasov / Brasov
155.000 €

Rată estimată

3.396 Lei/lună

Avans (15%)

115.553 lei

Perioada împrumutului

30 ani

Specificații

Preț negociabil Nu

Suprafața utilă 67 m²

Număr camere 3

Tip imobil Bloc apartamente

Compartimentare Semidecomandat

Număr Băi 1

Etaj 5

Niveluri imobil 5

An finalizare construcție 1970

Confort 1

Ansamblu Rezidențial Nu

Posibilitate parcare Nu

Stare proprietate Bună

Tip tranzacție Vânzare

Tip vânzător Companie

LOCALIZARE:
Acest imobil este situat in zona Garii, in imediata apropiere a Salii Sporturilor, Scolii Gimnaziale nr. 19, Garii Brasov, zona beneficiind de numeroase magazine, supermarket-uri, sali de fitness, farmacii, parcuri, etc.

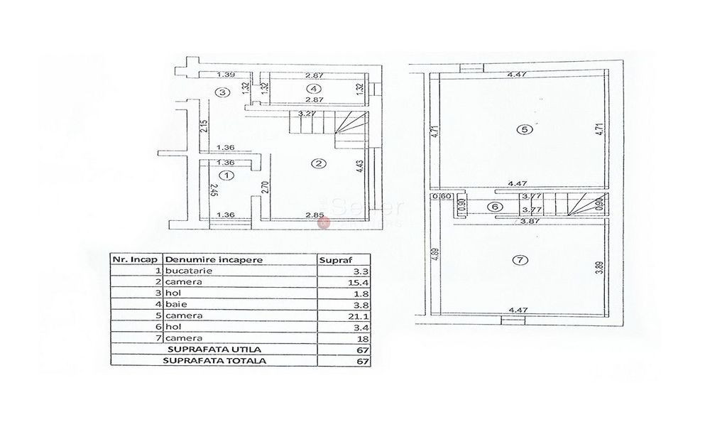
COMPARTIMENTARE:
Proprietatea este dispusa pe doua nivele, fiind pozitionata la etajul 5+M, cu urmatoarea compartimentare:
PARTER:
- Zona de zi, in care este inclusa bucataria de tip open space si din care se face accesul catre mansarda;
- Bucataria, deschisa, aceasta fiind mobilata si dotata, cu plita, cuptor, hota, frigider, etc.;
- Baia, cu aerisire naturala si cada;

MANSARDA, care este alocata zonei de noapte, astfel:
- Dormitoarele, ambele beneficiind de suprafete generoase si aerisite;

DOTARI:
- centrala termica;
- tamplarie PVC, cu geam termopan;
- usa metalica;
- semineu electric.

Tranzactionarea proprietatii se va face cu mobilierul aferent prezentei ofertari.
Imobilul este situat intr-o zona de blocuri, accesul auto, pana la zona de centru a orasului, facandu-se in cca. 6 minute.

ATRACTII ZONA: Magazine, restaurante, parcuri, școli, spitale.
ACCESIBILITATE: Transport public în apropiere.
FORMA ACHIZITIONARE: Se accepta plata prin accesare credit.

NOTA:
Informatiile prezentate reflecta situatia reala a proprietatii, fara a constitui o oferta contractuala. 
Aceste date au fost obtinute verbal, de la titularul de drept al imobilului.

Structura acestei prezentari nu poate fi reprodusa, fara acordul scris al The Seller and Partners.

Solicită vizionarea proprietății

Alege o zi disponibilă

28 Decembrie
29 Decembrie
30 Decembrie
31 Decembrie

Alege un interval orar

8:00 - 12:00
12:00 - 15:00
15:00 - 18:00
18:00 - 21:00

Următoarele date de contact oferite de tine vor fi accesibile proprietarului:

Locație

Despre zona "Garii"

păreri exprimate de 73 de utilizatori, pe o scară de la 1 la 10

Află clasamentul acestui cartier
Sănătate și Siguranță

Sănătate și Siguranță

7.4

Sănătate 7.1

Siguranță 7.7

Calitate aer 7.0

Curățenie 7.7

Zone verzi 7.5

Cultură și Educație

Cultură și Educație

7.6

Cultură 6.9

Educație 8.0

Sport 7.9

Ambianță și Lifestyle

Ambianță și Lifestyle

7.2

Nivel de trai 7.1

Magazine 8.0

Localuri 7.4

Parcări 6.6

Zgomot 6.8

Transport în comun

Transport în comun

8.3

Autobuz 8.3

Tramvai 0.0

Metrou 0.0

Contactează utilizatorul

ID: 3947853

Compartimentare Practica

3 camere | 67 m² | Brasov / Brasov

155.000 €


Vezi și alte anunțuri imobiliare
Apartamente vânzare Brasov-bv - 13 Decembrie Case-vile vânzare Brasov-bv - 13 Decembrie Garsoniere vânzare Brasov-bv - 13 Decembrie Terenuri vânzare Brasov-bv - 13 Decembrie Apartamente vânzare Brasov-bv - 15 Noiembrie Case-vile vânzare Brasov-bv - 15 Noiembrie Garsoniere vânzare Brasov-bv - 15 Noiembrie Terenuri vânzare Brasov-bv - 15 Noiembrie Apartamente vânzare Brasov-bv - Astra Case-vile vânzare Brasov-bv - Astra Garsoniere vânzare Brasov-bv - Astra Terenuri vânzare Brasov-bv - Astra