Florentina Stramciuc

Consultant imobiliar

Vânzare

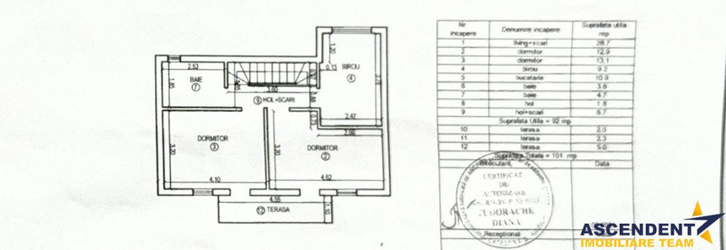
4 camere | 92 m²

Confort si intimitate, Sanpetru, Brasov

Brasov / Sanpetru
170.000 €

Rată estimată

3.677 Lei/lună

Avans (15%)

126.735 lei

Perioada împrumutului

30 ani

Specificații

Consum total de energie primară 0

Indicele de emisii echivalent CO2 0

Consum total din surse regenerabile 0

Număr camere 4

Număr Băi 0

Suprafața utilă 92 m²

Suprafață teren 200 m²

An finalizare construcție 2021

Nu include TVA Nu

Mobilat și Utilat Complet

Posibilitate parcare Da

Numărul de locuri de parcare 2

Stare proprietate Bună

Utilități Curent, Apă, Gaz

Tip tranzacție Vânzare

Tip vânzător Companie

Comision cumparator: 2% TVA din valoarea de tranzactionare

ASCENDENT IMOBILIARE

propune spre vanzare o casa, deosebita cu finisaje moderne situata in Sanpetru, Brasov.
 Locuinta este compartimentata inteligent si ofera: 3 dormitoare luminoase, ideale pentru familie 2 bai moderne, living spatios cu bucatarie open-space perfect pentru momentele petrecute impreuna.
Imobilul dispune de o  terasa acoperita de aproximativ 30 mp, ideala pentru relaxare si curte proprie in spate.
Casa se remarca printr-un ambient placut, lumina naturala din abundenta si un spatiu exterior generos, potrivit pentru relaxare sau socializare. 
 

Consilier specializat pentru aceasta oferta:

doamna Stramciuc Florentina
Telefon/WhatssApp: 0761730575

Detalii, fotografii suplimentare si alte variante similare exclusive:
www.ascendentimobiliare.ro

Solicită vizionarea proprietății

Alege o zi disponibilă

01 Aprilie
02 Aprilie
03 Aprilie
04 Aprilie

Alege un interval orar

8:00 - 12:00
12:00 - 15:00
15:00 - 18:00
18:00 - 21:00

Următoarele date de contact oferite de tine vor fi accesibile proprietarului:

Locație

Contactează utilizatorul

ID: 4152771

Confort si intimitate, Sanpetru, Brasov

4 camere | 92 m² | Brasov / Sanpetru

170.000 €