Marina Farkas

Consultant imobiliar

Vânzare

2 camere | 69 m²

Confort Urban Aproape de Natura

Brasov / Brasov
158.762 €

Rată estimată

3.478 Lei/lună

Avans (15%)

118.357 lei

Perioada împrumutului

30 ani

Specificații

Preț negociabil Nu

Nu include TVA Da

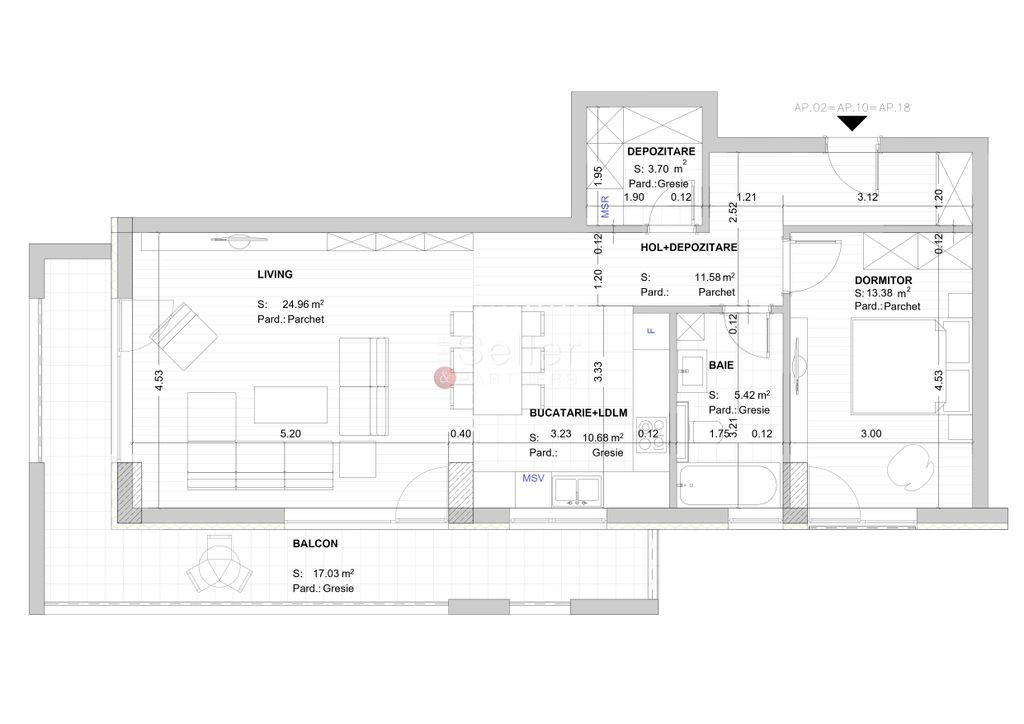
Suprafața utilă 69 m²

Număr camere 2

Tip imobil Bloc apartamente

Compartimentare Decomandat

Număr Băi 1

Etaj 1

Niveluri imobil 3

An finalizare construcție 2025

Confort Lux

Ansamblu Rezidențial Da

Posibilitate parcare Nu

Mobilat și Utilat Nemobilat

Stare proprietate Nouă

Tip tranzacție Vânzare

Tip vânzător Companie

Acest imobil face parte din dezvoltarea imobiliara HOMECLASS Residence, situat in zona Noua, Brasov.
Un proiect rezidential nou, gandit pentru cei care isi doresc un stil de viata echilibrat, intr-un cadru natural, dar cu acces facil catre oras. Ansamblul este dezvoltat pe regim de inaltime P+3E+Etaj Retras, cu un total de 28 de apartamente cu 1, 2 si 3 camere, fiecare proiectat cu atentie la detalii, confort si functionalitate.

 COMPARTIMENTARE:
- Zona de zi, care are o suprafata generoasa, cu deschidere la terasa;
- Bucataria, de tip open space, cu acces la terasa;
- Dormitorul, dispune de suprafete vitrate mari;
- Baia, aceasta dispune de aerisire naturala.

DOTARI:
- centrala pe bloc;
- tamplarie PVC, cu geam termopan;
- usa metalica;
- izolatie cu vata bazaltica de 10 cm;
- incalzire in pardoseala.

FACILITATI DE PARCARE:
- 32 de locuri de parcare acoperite, care pot fi achizitionate individual la pretul de 11.000  euro + T.V.A.; 
- 6 locuri de parcare supraterane, fiecare la pretul de 8.000 euro + T.V.A.;
- 6 statii de incarcare auto.

INTEGRARE MEDIU SI PIESAGISTICA:
HomeClass Residence este conceput pentru a se integra armonios în peisajul zonei Noua, una dintre cele mai verzi și liniștite zone ale Brasovului. Spatiile verzi din jurul imobilului si locul de joaca pentru copii, vor fi amenajate cu grija, fiind ideale pentru momentele de destindere. 

ACCES PROPRIETATE CU BARIERA:
Sistemul ofera securitate sporita, reducerea traficului neautorizat si controlul eficient al accesului pentru rezidenți si vizitatori, contribuind la cresterea sigurantei si confortului.

CALITATE SI SUSTENABILITATE:
Proiectul respecta cele mai inalte standarde de constructie și eficienta energetica, fiind pregatit pentru dotari moderne precum incalzire in pardoseala si infrastructura pentru sistemul de aer conditionat. Fiecare apartament este livrat la stadiul de finisat, cu posibilitatea de a-l personaliza în functie de preferintele cumparatorului.

LOCATIE STRATEGICA:
Proiectul rezidential ofera acces rapid catre centrul orasului, dar si catre zonele de agrement din imprejurimi, cum ar fi Lacul Noua, Gradina Zoologica sau traseele montane din jurul Brasovului. Este o alegere ideala pentru familii, tineri profesionisti sau investitori care cauta un echilibru intre natura si dinamica urbana.

TERMEN FINALIZARE: Octombrie 2026

PARTENER EXCLUSIV: 
Complexul HomeClass Residence este promovat in regim exclusiv – The Seller and Partners, pentru a va asigura o experienta imobiliara unica, in procesul de tranzactionare.
Beneficiati de comision 0%.

Solicită vizionarea proprietății

Alege o zi disponibilă

28 Decembrie
29 Decembrie
30 Decembrie
31 Decembrie

Alege un interval orar

8:00 - 12:00
12:00 - 15:00
15:00 - 18:00
18:00 - 21:00

Următoarele date de contact oferite de tine vor fi accesibile proprietarului:

Locație

Despre zona "Noua"

păreri exprimate de 150 de utilizatori, pe o scară de la 1 la 10

Află clasamentul acestui cartier
Sănătate și Siguranță

Sănătate și Siguranță

7.8

Sănătate 6.4

Siguranță 8.0

Calitate aer 8.6

Curățenie 7.6

Zone verzi 8.6

Cultură și Educație

Cultură și Educație

6.9

Cultură 5.8

Educație 8.1

Sport 6.9

Ambianță și Lifestyle

Ambianță și Lifestyle

7.3

Nivel de trai 7.7

Magazine 7.8

Localuri 5.8

Parcări 6.8

Zgomot 8.2

Transport în comun

Transport în comun

8.4

Autobuz 8.4

Tramvai 0.0

Metrou 0.0

Contactează utilizatorul

ID: 4055457

Confort Urban Aproape de Natura

2 camere | 69 m² | Brasov / Brasov

158.762 €


Vezi și alte anunțuri imobiliare
Apartamente vânzare Brasov-bv - 13 Decembrie Case-vile vânzare Brasov-bv - 13 Decembrie Garsoniere vânzare Brasov-bv - 13 Decembrie Terenuri vânzare Brasov-bv - 13 Decembrie Apartamente vânzare Brasov-bv - 15 Noiembrie Case-vile vânzare Brasov-bv - 15 Noiembrie Garsoniere vânzare Brasov-bv - 15 Noiembrie Terenuri vânzare Brasov-bv - 15 Noiembrie Apartamente vânzare Brasov-bv - Astra Case-vile vânzare Brasov-bv - Astra Garsoniere vânzare Brasov-bv - Astra Terenuri vânzare Brasov-bv - Astra