Ramona Urjuma

Consultant imobiliar

Vânzare

3 camere | 80 m²

Cota de 1/2 din casa si teren, Loc Urziceni, Jud Ialomita

Ialomita / Urziceni
127.150 ron

Rată estimată

2.750 Lei/lună

Avans (15%)

94.790 lei

Perioada împrumutului

30 ani

Specificații

Preț negociabil Nu

Suprafața utilă 80 m²

Suprafață teren 519 m²

Număr camere 3

Niveluri imobil 12+

An finalizare construcție 1980

Număr Băi 3+

Ansamblu Rezidențial Nu

Posibilitate parcare Nu

Stare proprietate Bună

Utilități Canalizare, Gaz

Tip tranzacție Vânzare

Tip vânzător Companie

Se vinde la licitatie!
Se vinde cota de 1/2 din dreptul de proprietate
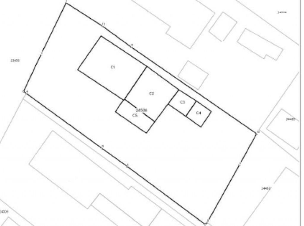
Casa si teren in suprafata de 519 mp
S.construita la sol: 51mp: C1-Locuinta
S.construita la sol: 35 mp;C2-locuinta
S. construita la sol: 9 mp; C3-anexa
S.construta la sol: 8 mp; C4- anexa
S.construita la sol: 13 mp; terasa acoperita
Tip drum de acces: strada asfaltata
Vecinatati:vlocuinte unifamiliare

Solicită vizionarea proprietății

Alege o zi disponibilă

04 Februarie
05 Februarie
06 Februarie
07 Februarie

Alege un interval orar

8:00 - 12:00
12:00 - 15:00
15:00 - 18:00
18:00 - 21:00

Următoarele date de contact oferite de tine vor fi accesibile proprietarului:

Locație

Contactează utilizatorul

ID: 4107471

Cota de 1/2 din casa si teren, Loc Urziceni, Jud Ialomita

3 camere | 80 m² | Ialomita / Urziceni

127.150 ron