Emilian Niculiciu

Consultant imobiliar

Vânzare

2 camere | 64 m²

De vanzare apartament + terasa de 67 mp in bloc nou Marasti

Cluj / Cluj-Napoca
197.000 €

Rată estimată

4.316 Lei/lună

Avans (15%)

146.864 lei

Perioada împrumutului

30 ani

Specificații

Număr camere 2

Suprafața utilă 64 m²

Compartimentare Semidecomandat

Confort 1

An finalizare construcție 2025

Tip imobil Bloc apartamente

Niveluri imobil 6

Număr Băi 1

Comision cumpărător 2%

Nu include TVA Da

Etaj 6

Stare proprietate În construcție

Mobilat și Utilat Nemobilat

Tip tranzacție Vânzare

Tip vânzător Companie

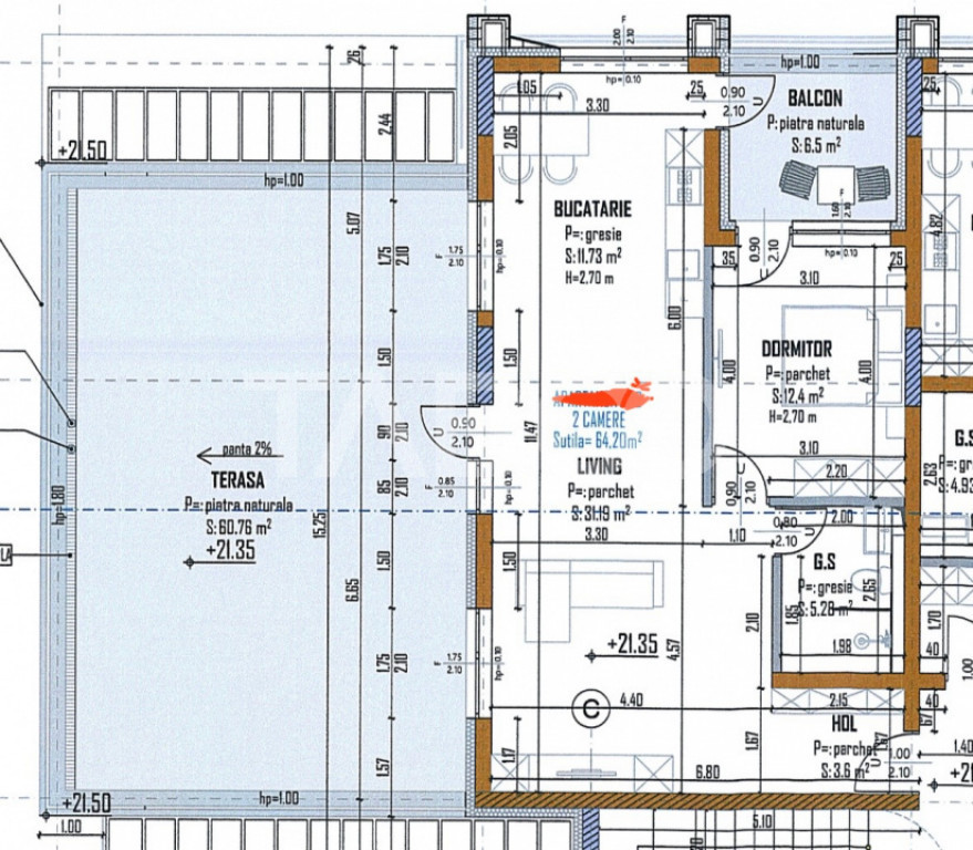
Apartament 2 camere de vanzare, semidecomandat, 64 mpu + terasa, Marasti, Cluj-Napoca.     

TABOO Imobiliare propune un apartament de vanzare cu 2 camere, semidecomandat, situat in localitatea Cluj-Napoca, zona Marasti, aflat la etajul 6 intr -un imobil tip bloc cu regim de inaltime pe Parter + 6 Etaje; anul constructiei 2025, structura caramida. Suprafata utila de 64 mp + terasa de 67 mp

Apartamentul este structurat astfel:
• Hol;
• Bucatarie;
• Baie;
• Living;
• Dormitor;
- Terasa; 

Finisajele interioare sunt urmatoarele:
• Usa intrare: metal;                        
• Tamplarie ferestre: pvc, termopan;          
• Pereti: vopsea lavabila;
• Podele: nefinisat.

Utilitati si dotari:                                     
• Utilitati: curent electric, apa, canalizare, gaz;
• Izolatii: exterior, bloc izolat termic;
• Contorizare: apometre, contor gaz, contor curent electric;
• Caracteristici bloc: interfon, lift.

Apartamentul se vinde la stadiul de semifinisat.

Incalzirea se realizeaza prin centrala imobil, incalzire pardoseala.

Se accepta ca si modalitate de plata surse proprii sau credit bancar.
 
Pret: 197.000€ + TVA
Cod ofertă / ID: P24995
Sună-ne acum la 0750.209.724 și află detalii despre această proprietate de vanzare din Cluj-Napoca, dar și despre alte proprietăți potrivite pentru tine.


Informatii speciale:
1. Descarcă aplicația pe mobilul tau "TABOO Imobiliare" din Apple Store, Google Play sau Huawei AppGallery pentru a afla instantaneu noile proprietăți care intră pe piață.
2. Dacă ai o proprietate pe care vrei să o vinzi sau să o închiriezi, suntem aici pentru tine!
Contactează-ne pentru o evaluare gratuită fără obligații și vei descoperi avantajele de a lucra cu o echipă dedicată și experimentată.
3. Dacă vrei sa incepi o cariera de agent imobiliar, suna la 0750.209.724 si programeaza o intalnire pentru a afla toate beneficiile si avantajele.

Intră pe TABOO.ro și descoperă cele mai recente oferte, actualizate zilnic.
Anunt actualizat in 19 decembrie 2025.
Id intern: P24995

Solicită vizionarea proprietății

Alege o zi disponibilă

27 Decembrie
28 Decembrie
29 Decembrie
30 Decembrie

Alege un interval orar

8:00 - 12:00
12:00 - 15:00
15:00 - 18:00
18:00 - 21:00

Următoarele date de contact oferite de tine vor fi accesibile proprietarului:

Locație

Despre zona "Marasti"

păreri exprimate de 331 de utilizatori, pe o scară de la 1 la 10

Află clasamentul acestui cartier
Sănătate și Siguranță

Sănătate și Siguranță

7.1

Sănătate 7.3

Siguranță 7.9

Calitate aer 6.4

Curățenie 7.3

Zone verzi 6.7

Cultură și Educație

Cultură și Educație

7.3

Cultură 6.9

Educație 7.6

Sport 7.4

Ambianță și Lifestyle

Ambianță și Lifestyle

7.0

Nivel de trai 7.5

Magazine 8.1

Localuri 7.2

Parcări 5.4

Zgomot 6.6

Transport în comun

Transport în comun

7.0

Autobuz 8.1

Tramvai 5.9

Metrou 0.0

Contactează utilizatorul

ID: 4061039

De vanzare apartament + terasa de 67 mp in bloc nou Marasti

2 camere | 64 m² | Cluj / Cluj-Napoca

197.000 €


Vezi și alte anunțuri imobiliare
Apartamente vânzare Cluj-napoca-cj - Aeroport Case-vile vânzare Cluj-napoca-cj - Aeroport Garsoniere vânzare Cluj-napoca-cj - Aeroport Terenuri vânzare Cluj-napoca-cj - Aeroport Apartamente vânzare Cluj-napoca-cj - Andrei Muresanu Case-vile vânzare Cluj-napoca-cj - Andrei Muresanu Garsoniere vânzare Cluj-napoca-cj - Andrei Muresanu Terenuri vânzare Cluj-napoca-cj - Andrei Muresanu Apartamente vânzare Cluj-napoca-cj - Apahida Case-vile vânzare Cluj-napoca-cj - Apahida Garsoniere vânzare Cluj-napoca-cj - Apahida Terenuri vânzare Cluj-napoca-cj - Apahida