Cosmin N

Consultant imobiliar

Vânzare

4 camere | 89 m²

Decomandat 4 Camere 90mp Ozana Titan

Bucuresti-Ilfov / Bucuresti
124.980 €

Rată estimată

2.738 Lei/lună

Avans (15%)

93.173 lei

Perioada împrumutului

30 ani

Specificații

Preț negociabil Da

Suprafața utilă 89 m²

Număr camere 4

Tip imobil Bloc apartamente

Compartimentare Decomandat

Număr Băi 2

Etaj 2

Niveluri imobil 4

An finalizare construcție 1973

Confort 1

Ansamblu Rezidențial Nu

Posibilitate parcare Nu

Mobilat și Utilat Nemobilat

Stare proprietate Bună

Tip tranzacție Vânzare

Tip vânzător Companie

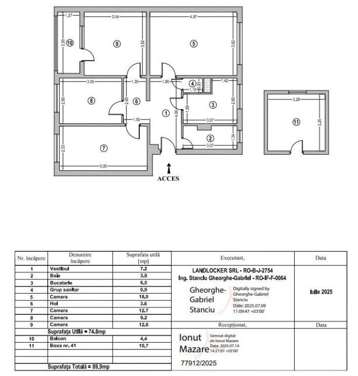
Vă oferim spre vânzare un apartament cu 4 camere decomandat, situat în zona Ozana, Sector 3, la etajul 2/4 al unui bloc construit în 1973, ideal pentru cei care doresc un spațiu generos într-o zonă foarte bine conectată.

Detalii proprietate:

- Suprafață totală: 89,9 mp, compusă din:
• Suprafată utilă apartament: 74,8 mp
• Balcon: 4,4 mp
• Boxă la subsol: 10,7 mp
- Etaj 2 din 4 – poziționare avantajoasă
- Locuința beneficiază de două băi – un grup sanitar de serviciu și o baie principală cu geam, ideală pentru aerisire naturală
- Țeava de gaze pentru centrală este deja trasă – trebuie doar achiziționată și montată centrala termică
- Compartimentare decomandată, ideală pentru confort și funcționalitate
- Apartamentul necesită renovare completă, oferind libertatea de reamenajare după propriul gust
- Loc de parcare de la primărie, transferabil
- Bloc reabilitat termic, ceea ce oferă un plus de confort și eficiență energetică

Zona este liniștită, aproape de parcuri, școli, magazine și alte puncte de interes, ceea ce face proprietatea potrivită atât pentru locuit, cât și pentru investiție.

Pentru detalii suplimentare sau pentru programarea unei vizionări, vă stau la dispoziție! 0723 457 657 - Cosmin

Solicită vizionarea proprietății

Alege o zi disponibilă

07 Decembrie
08 Decembrie
09 Decembrie
10 Decembrie

Alege un interval orar

8:00 - 12:00
12:00 - 15:00
15:00 - 18:00
18:00 - 21:00

Următoarele date de contact oferite de tine vor fi accesibile proprietarului:

Locație

Despre zona "Ozana"

păreri exprimate de 54 de utilizatori, pe o scară de la 1 la 10

Află clasamentul acestui cartier
Sănătate și Siguranță

Sănătate și Siguranță

7.8

Sănătate 7.2

Siguranță 8.7

Calitate aer 7.1

Curățenie 8.0

Zone verzi 8.0

Cultură și Educație

Cultură și Educație

7.6

Cultură 6.5

Educație 8.8

Sport 7.5

Ambianță și Lifestyle

Ambianță și Lifestyle

7.6

Nivel de trai 7.9

Magazine 9.0

Localuri 7.4

Parcări 6.0

Zgomot 8.0

Transport în comun

Transport în comun

8.2

Autobuz 7.3

Tramvai 8.7

Metrou 8.7

Contactează utilizatorul

ID: 4091685

Decomandat 4 Camere 90mp Ozana Titan

4 camere | 89 m² | Bucuresti-Ilfov / Bucuresti

124.980 €