Carol Szekeres

Consultant imobiliar

Vânzare

360 m²

Depozit frigo în Săcălaz

Timis / Sacalaz
299.000 €

Specificații

Preț negociabil Nu

Nu include TVA Da

Tip imobil Alte tipuri

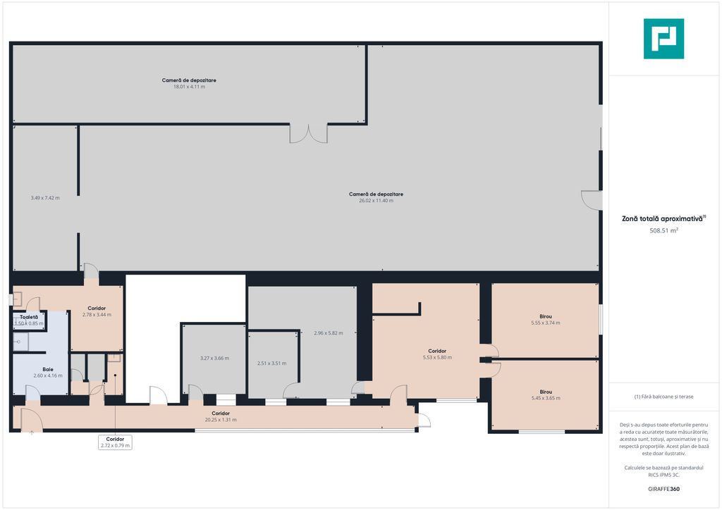
Suprafața utilă 360 m²

Suprafață totală 460 m

An finalizare construcție 2016

Număr încăperi 6

Înălțime spațiu 4_0 m

Posibilitate parcare Nu

Stadiu construcție Finalizat

Tip tranzacție Vânzare

Tip vânzător Companie

Propertylab vă propune un  depozit cu birouri de vânzare în Săcălaz, la doar 11 km de Timișoara.

Proprietatea este formată din:

-Depozit frigo min -2 C max 30 C în suprafață de 360 mp.

-Birouri, vestiare, grup sanitar.
-Curte interioară 3000 mp.

Curtea depozitelor este parțial betonată, depozitul frigo având rampă de încărcare pentru camioane.
Dispune de spații de birouri, vestiare, grupuri sanitare.
Proprietatea este dotată cu camere de supraveghere și sistem de alarmă.
În curte se mai află un depozit cu activitate limitată


Pentru mai multe informații pentru acest depozit frigo de vânzare  în Săcălaz, vă aștept la un telefon.

Szekeres Carol-consultant imobiliar
Tel 0729966649
CP2284132

Solicită vizionarea proprietății

Alege o zi disponibilă

11 Februarie
12 Februarie
13 Februarie
14 Februarie

Alege un interval orar

8:00 - 12:00
12:00 - 15:00
15:00 - 18:00
18:00 - 21:00

Următoarele date de contact oferite de tine vor fi accesibile proprietarului:

Locație

Contactează utilizatorul

ID: 3881278

Depozit frigo în Săcălaz

360 m² | Timis / Sacalaz

299.000 €