Andra Sasaran

Consultant imobiliar

Vânzare

4 camere | 125 m²

Duplex cu 4 camere, P+E, despartit prin camera tehnica, i...

Timis / Giarmata
173.500 €

Rată estimată

3.801 Lei/lună

Avans (15%)

129.344 lei

Perioada împrumutului

30 ani

Specificații

Preț negociabil Da

Suprafața utilă 125 m²

Suprafață teren 259 m²

Număr camere 4

Niveluri imobil 1

An finalizare construcție 2025

Număr Băi 2

Ansamblu Rezidențial Nu

Posibilitate parcare Nu

Stare proprietate Bună

Utilități Curent, Apă, Canalizare, Gaz

Tip tranzacție Vânzare

Tip vânzător Companie

Apostu Estate vă propune spre vânzare un duplex modern, eficient energetic și excelent compartimentat. Finalizarea lucrărilor este estimată pentru septembrie 2025, iar predarea se face la alb, cu buget flexibil pentru finisaje, astfel încât viitorii proprietari să își personalizeze casa după propriul gust.

Un apartament este amplasat pe un teren de 259 mp  ,avand 125 mp utili. Construcția este realizată integral din cărămidă, cu izolație termică performantă și încălzire în pardoseală pe ambele niveluri, pentru un confort sporit în orice anotimp.

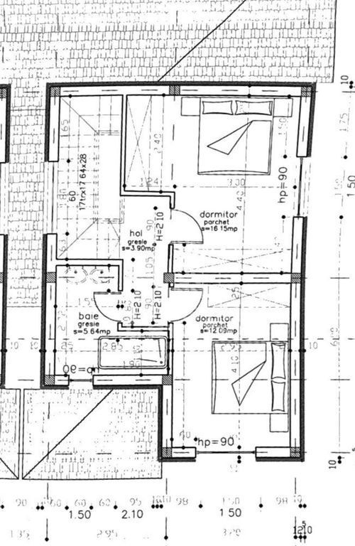
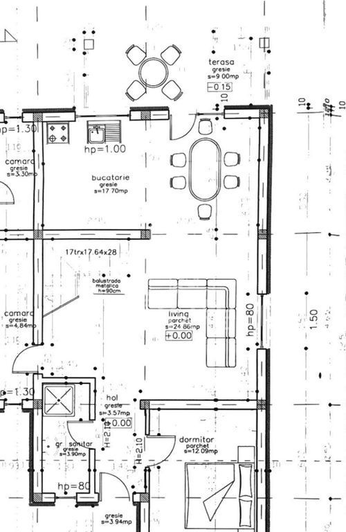
Compartimentare:

Parter:
	•	Living spațios cu bucătărie open space;
	•	Dormitor genero;
	•	Birou;
	•	Baie de serviciu;
	•	Cameră tehnică ce separă funcțional cele două unități ale duplexului;
	•	Terasă acoperită.

Etaj:
	•	Două dormitoare luminoase și bine proporționate;
	•	Baie cu cada;
	•	Etajul este total separat de unitatea vecină, pentru un plus de intimitate.

Dotări și facilități:
	•	Loc de parcare în curte
	•	Pod generos, ideal pentru depozitare
	•	Racord complet la toate utilitățile (gaz, apă, canalizare, curent trifazic)
	•	Intimitate sporită prin despărțirea unităților prin camera tehnică

Această proprietate reprezintă alegerea ideală pentru o familie care caută un cămin modern, eficient și bine compartimentat, într-o zonă liniștită, dar cu acces facil către oraș.

Va asteptam la vizionare!
ID Intern: CP2554412!

Solicită vizionarea proprietății

Alege o zi disponibilă

27 Decembrie
28 Decembrie
29 Decembrie
30 Decembrie

Alege un interval orar

8:00 - 12:00
12:00 - 15:00
15:00 - 18:00
18:00 - 21:00

Următoarele date de contact oferite de tine vor fi accesibile proprietarului:

Locație

Contactează utilizatorul

ID: 3977682

Duplex cu 4 camere, P+E, despartit prin camera tehnica, i...

4 camere | 125 m² | Timis / Giarmata

173.500 €