BLITZ Romania

Consultant imobiliar

Vânzare

4 camere | 120 m²

Duplex frumos, 3 dormitoare, 2 bai , 5 camere, 120mp utili,

Timis / Giroc
185.000 €

Rată estimată

4.002 Lei/lună

Avans (15%)

137.918 lei

Perioada împrumutului

30 ani

Specificații

Număr camere 4

Suprafața utilă 120 m²

An finalizare construcție 2025

Niveluri imobil 1

Suprafață teren 400 m²

Număr Băi 2

Numărul de locuri de parcare 2

Stare proprietate În construcție

Mobilat și Utilat Nemobilat

Utilități Curent, Apă, Canalizare, Gaz, Climă

Tip tranzacție Vânzare

Tip vânzător Companie

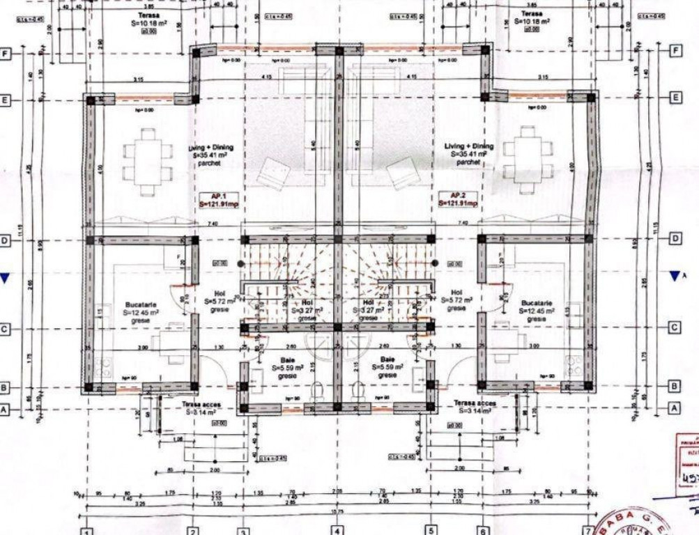
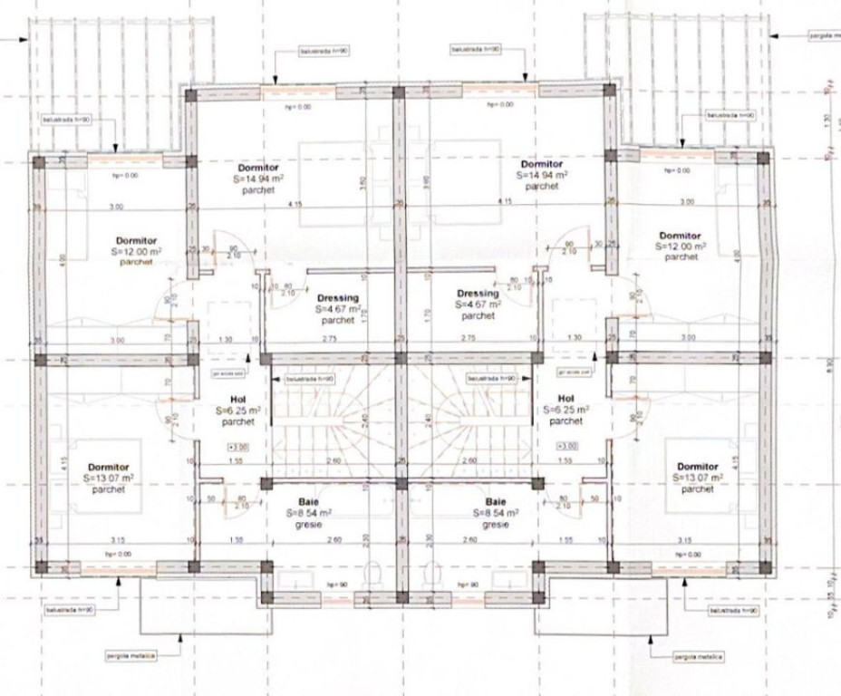
Blitz are placerea sa va prezinte spre vanzare un duplex superb situat in Giroc. Acesta are suprafata utila de 120 mp, iar suprafata terenului de 400 mp. Regimul de inaltime al acestuia este de P plus 1 etaj. Compartimentarea este gandita astfel, 3 dormitoare, 2 bai, o bucatarie separata, un living plus zona de dinning, un dresing, o terasa. Acesta dispune de 2 locuri de parcare.  Constructia acestuia este premium si se va preda la cheie, cu finisaje de inalta calitate, gresie, faianta, parchet, geamuri tripan Salamander, usi interioare Bertolotto, incalzire in pardoseala de la Purmo, centrala proprie pe gaz marca Ariston. Dispune de toate utilitatile. Va invitam cu drag la o vizionare. 
Cod ofertă / ID BLITZ: P144916
Id intern: P144916

Solicită vizionarea proprietății

Alege o zi disponibilă

07 Februarie
08 Februarie
09 Februarie
10 Februarie

Alege un interval orar

8:00 - 12:00
12:00 - 15:00
15:00 - 18:00
18:00 - 21:00

Următoarele date de contact oferite de tine vor fi accesibile proprietarului:

Locație

Contactează utilizatorul

ID: 3963638

Duplex frumos, 3 dormitoare, 2 bai , 5 camere, 120mp utili,

4 camere | 120 m² | Timis / Giroc

185.000 €