Florin Ghenceanu

Consultant imobiliar

Vânzare

3 camere | 88 m²

Duplex3camdec/Postalionului30/2minSTB/13min-cuSTB-metrou ...

Bucuresti-Ilfov / Bucuresti
147.000 €

Rată estimată

3.180 Lei/lună

Avans (15%)

109.589 lei

Perioada împrumutului

30 ani

Specificații

Preț negociabil Nu

Nu include TVA Nu

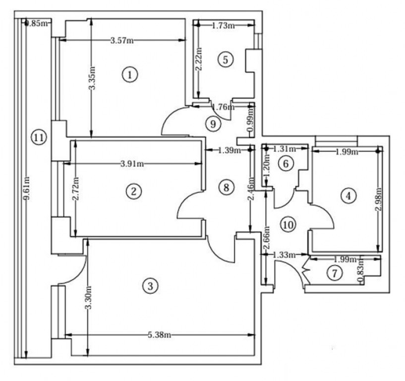
Suprafața utilă 88 m²

Număr camere 3

Tip imobil Bloc apartamente

Compartimentare Decomandat

Număr Băi 2

Etaj 5

Niveluri imobil 6

An finalizare construcție 2025

Confort 1

Numărul de locuri de parcare 1

Ansamblu Rezidențial Nu

Posibilitate parcare Da

Mobilat și Utilat Nemobilat

Stare proprietate Bună

Tip tranzacție Vânzare

Tip vânzător Companie

Direct dezvoltator.Comision 0%.
Consultanta si asistenta pe toata durata procesului de achizitie, fara costuri.
Pentru vizionari si detalii: 0720002332.

Bloc cu acte gata, se pot face direct vanzarile.
Important:
1. Fotografiile sunt doar de prezentare dintr-un alt ansamblu finalizat de dezvoltator si vandut integral, situat in aceeasi zona, si nu corespund compartimentarilor prezentate in schite, proiectele in sine fiind diferite.

2. Pretul afisat este pentru plata cash 100%, la semnarea contractului de vanzare cumparare, si include TVA-ul de 21%.

3. Pretul de lista, valaboil si pentru credit este de 163.350euro(TVA 21% inclus).

5. Amplasarea ansamblului ofera toate facilitatile zonei din proximitatea Mall Grand Arena

Apartament compus din 3 camere si dependinte, decomandat, cu predare la cheie(g,f,p, obiecte sanitare, centrala termica proprie, incalzire prin pardoseala), contorizare individuala pentru utilitati(apa, energie electrica, gaze), internet(fibra optica) si cabluTV.

Pretul locurilor de parcare este: 8.000 euro + TVA loc parcare exterior / 10.000 euro + TVA loc parcare demisol.

Situat foarte aproape de stația STB - Dealul Cucului - 2 minute pe jos(200m) respectiv 13-15 minute cu autobuzul 241 pana la statia de metrou Aparatorii Patriei.

Solicită vizionarea proprietății

Alege o zi disponibilă

10 Februarie
11 Februarie
12 Februarie
13 Februarie

Alege un interval orar

8:00 - 12:00
12:00 - 15:00
15:00 - 18:00
18:00 - 21:00

Următoarele date de contact oferite de tine vor fi accesibile proprietarului:

Locație

Despre zona "Metalurgiei"

păreri exprimate de 11 de utilizatori, pe o scară de la 1 la 10

Află clasamentul acestui cartier
Sănătate și Siguranță

Sănătate și Siguranță

7.4

Sănătate 6.3

Siguranță 9.1

Calitate aer 8.3

Curățenie 7.7

Zone verzi 5.4

Cultură și Educație

Cultură și Educație

5.5

Cultură 5.1

Educație 6.0

Sport 5.4

Ambianță și Lifestyle

Ambianță și Lifestyle

8.3

Nivel de trai 9.1

Magazine 8.1

Localuri 6.7

Parcări 8.3

Zgomot 9.1

Transport în comun

Transport în comun

7.5

Autobuz 8.3

Tramvai 6.4

Metrou 7.7

Contactează utilizatorul

ID: 4083977

Duplex3camdec/Postalionului30/2minSTB/13min-cuSTB-metrou ...

3 camere | 88 m² | Bucuresti-Ilfov / Bucuresti

147.000 €