Sebastian Turcu

Consultant imobiliar

Vânzare

3 camere | 71 m²

EXCLUSIVITATE-Apartament 3 camere decomandat 71 mp zona Miha

Sibiu / Sibiu
99.000 €

Rată estimată

2.169 Lei/lună

Avans (15%)

73.805 lei

Perioada împrumutului

30 ani

Specificații

Număr camere 3

Suprafața utilă 71 m²

Compartimentare Decomandat

Confort 1

An finalizare construcție 1980

Tip imobil Bloc apartamente

Niveluri imobil 10

Număr Băi 1

Comision cumpărător 0%

Etaj 10

Stare proprietate Bună

Mobilat și Utilat Parțial

Tip tranzacție Vânzare

Tip vânzător Companie

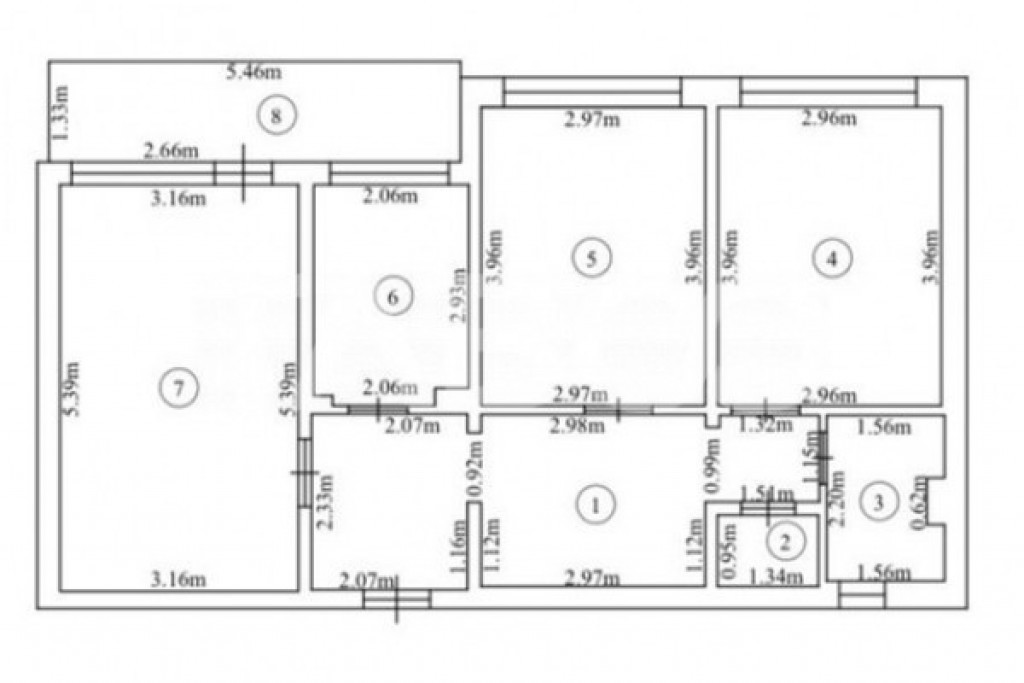
Apartament 3 camere de vanzare, decomandat, 71 mp, zona Mihai Viteazul, strada Ostirii, Sibiu, EXCLUSIVITATE-COMISION 0%.

 Avantaje majore ale acestui apartament:
• Compartimentare buna
• Pretabil investitie sigura 
• Vedere spre munte
• Pret avantajos

 TABOO Imobiliare propune un apartament de vanzare cu 3 camere, decomandat, situat in localitatea Sibiu, zona Mihai Viteazul, strada Ostirii, aflat la etajul 10 intr -un imobil tip bloc cu regim de inaltime pe Parter + 10 Etaje; anul constructiei 1980, structura caramida. Suprafata utila de 71 mp + balcon de 6 mp.

 Apartamentul este structurat astfel: 
• Hol; 
• Bucatarie; 
• Baie; 
• Living cu balcon; 
• Dormitor; 
• Dormitor
• Debara;

 Finisajele interioare necesita renovare
• Usa intrare: metal; 
• Usi interioare: celulare;
• Tamplarie ferestre: lemn;
• Pereti: vopsea lavabila, faianta; 
• Podele: parchet, gresie. 

 Utilitati si dotari: 
• Bucatarie: mobilata, utilata;
• Mobilat: partial;
• Utilitati: curent electric, apa, canalizare, gaz, catv, telefon, acces internet, fibra optica; 
• Izolatii: exterior; 
• Contorizare: apometre, contor gaz, contor curent electric; 
• Caracteristici bloc: interfon, lift. 

 Apartamentul se vinde semimobilat (cum apare in pozele de prezentare) si utilat cu: aragaz, cuptor, hota.

 Incalzirea se realizeaza prin centrala proprie, calorifere.

 Se accepta ca si modalitate de plata surse proprii sau credit bancar.
 
Pret: 99.000€
Cod ofertă / ID: P25715
Sună-ne acum la 0762.678.817 și află detalii despre această proprietate de vanzare din Sibiu, dar și despre alte proprietăți potrivite pentru tine.


Informatii speciale:
1. Descarcă aplicația pe mobilul tau "TABOO Imobiliare" din Apple Store, Google Play sau Huawei AppGallery pentru a afla instantaneu noile proprietăți care intră pe piață.
2. Dacă ai o proprietate pe care vrei să o vinzi sau să o închiriezi, suntem aici pentru tine!
Contactează-ne pentru o evaluare gratuită fără obligații și vei descoperi avantajele de a lucra cu o echipă dedicată și experimentată.
3. Dacă vrei sa incepi o cariera de agent imobiliar, suna la 0762.678.817 si programeaza o intalnire pentru a afla toate beneficiile si avantajele.

Intră pe TABOO.ro și descoperă cele mai recente oferte, actualizate zilnic.
Anunt actualizat in 19 decembrie 2025.
Id intern: P25715

Solicită vizionarea proprietății

Alege o zi disponibilă

24 Decembrie
25 Decembrie
26 Decembrie
27 Decembrie

Alege un interval orar

8:00 - 12:00
12:00 - 15:00
15:00 - 18:00
18:00 - 21:00

Următoarele date de contact oferite de tine vor fi accesibile proprietarului:

Locație

Despre zona "Mihai Viteazul"

păreri exprimate de 123 de utilizatori, pe o scară de la 1 la 10

Află clasamentul acestui cartier
Sănătate și Siguranță

Sănătate și Siguranță

7.4

Sănătate 7.2

Siguranță 8.2

Calitate aer 7.2

Curățenie 7.5

Zone verzi 7.0

Cultură și Educație

Cultură și Educație

7.3

Cultură 7.0

Educație 7.7

Sport 7.2

Ambianță și Lifestyle

Ambianță și Lifestyle

7.3

Nivel de trai 7.6

Magazine 8.0

Localuri 7.8

Parcări 6.2

Zgomot 6.8

Transport în comun

Transport în comun

8.1

Autobuz 8.1

Tramvai 0.0

Metrou 0.0

Contactează utilizatorul

ID: 4103672

EXCLUSIVITATE-Apartament 3 camere decomandat 71 mp zona Miha

3 camere | 71 m² | Sibiu / Sibiu

99.000 €


Vezi și alte anunțuri imobiliare
Apartamente vânzare Sibiu-sb - Aeroport Case-vile vânzare Sibiu-sb - Aeroport Garsoniere vânzare Sibiu-sb - Aeroport Terenuri vânzare Sibiu-sb - Aeroport Apartamente vânzare Sibiu-sb - Broscarie Case-vile vânzare Sibiu-sb - Broscarie Garsoniere vânzare Sibiu-sb - Broscarie Terenuri vânzare Sibiu-sb - Broscarie Apartamente vânzare Sibiu-sb - Calea Cisnadiei Case-vile vânzare Sibiu-sb - Calea Cisnadiei Garsoniere vânzare Sibiu-sb - Calea Cisnadiei Terenuri vânzare Sibiu-sb - Calea Cisnadiei