BLITZ Romania

Consultant imobiliar

Vânzare

1700 m²

Exclusivitate! Hotel Restaurant 1700 mp utili, 8200 mp teren

Cluj / Turda
1.100.000 €

Specificații

Suprafața utilă 1700 m²

Număr încăperi 26

Stadiu construcție Finalizat

Tip tranzacție Vânzare

Tip vânzător Companie

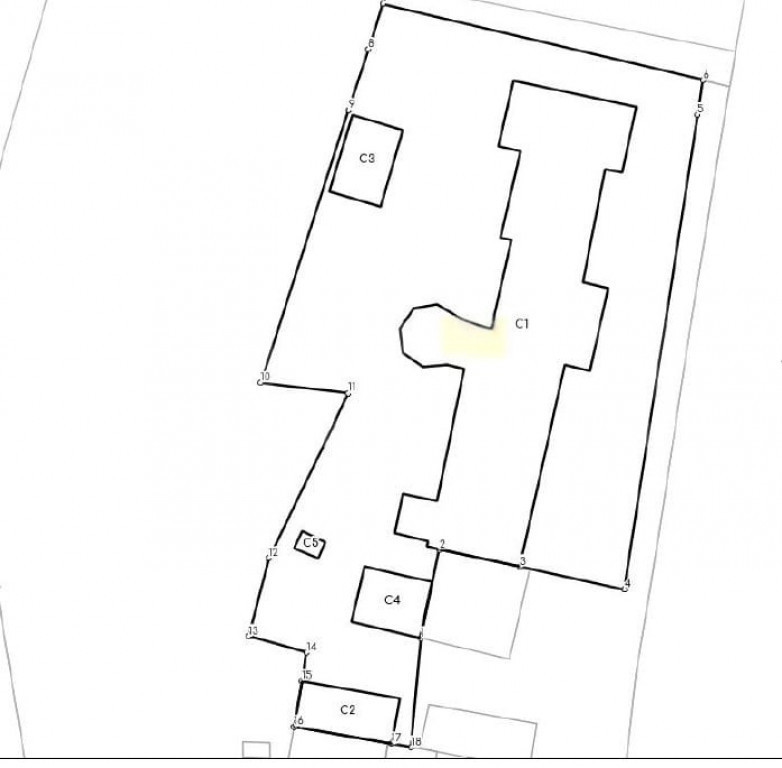
Blitz propune, in exclusivitate, un Hotel-Restaurant la 10 km de Turda si 7 km de autostrada A3 Cluj-Targu Mures, situat pe Drumul National, Turda - Alba Iulia.
Proprietatea este compusa din mai multe corpuri, cu o suprafata utila de 1700 mp, pe un teren de 8200 mp cu front stradal de 99 ml.
Corpul principal, se desfasoara pe o suprafata construita la sol de 654 mp; C 1 – HOTEL RESTAURANT, cu regim de inaltime P+1+M, partial cu demisol, cu fundatie de beton, structura de rezistenta mixta din cărămidă beton si fier, sarpanta din lemn, invelitoare tigla compusa din:
- la demisol : o incapere utilizata ca depozit
- la parter : 3 incaperi birouri, una sala restaurant pentru 180 persoane, un bar, 2 saloane, o bucatarie, o camera frigorifica, o sala preparat carne, 2 depozite, 2 coridoare, 7 holuri, o garderoba, o spalatorie, o baie cu 6 corpuri sanitare, 3 casa scarii, o terasa inchisa si o terasa deschisa;
- la etaj: un apartament compus din: 2 camere, o baie si un hol, alte 3 camere cu baie proprie, 11 camere simple, 1 incapere salon, 2 coridoare, 3 holuri, 6 corpuri sanitare, 3 casa scarii, 1 logie.
Mansarda cu suprafata utila de 531 mp, compusa din: 14 camere, 14 băi, 14 holuri, sala protocol, oficiu, 3 casa  scarii;

Extindere etaj 1, suprafata utila de 117,17 mp. compusa din: 3 camere, hol, 2 bai si sala de protocol;
Extindere parter: suprafata utila 58,12 mp, compusa din: camera, spalatorie, extindere sala restaurant( 14,19mp.) grup sanitar, restaurant, wc-uri femei si barbati.
Corpurile secundare au ca destinatie: camera tehnica, magazie si anexe.
Langa proprietate se afla un lac perfect pentru pescuit.
Aceasta proprietate este excelenta pentru mai multe destinatii. Necesita renovare. 
Pentru mai multe informatii, va rugam sa ne contactati!

Cod ofertă / ID BLITZ: P158748
Id intern: P158748

Solicită vizionarea proprietății

Alege o zi disponibilă

23 Mai
24 Mai
25 Mai
26 Mai

Alege un interval orar

8:00 - 12:00
12:00 - 15:00
15:00 - 18:00
18:00 - 21:00

Următoarele date de contact oferite de tine vor fi accesibile proprietarului:

Locație

Contactează utilizatorul

ID: 4168625

Exclusivitate! Hotel Restaurant 1700 mp utili, 8200 mp teren

1700 m² | Cluj / Turda

1.100.000 €