Visan Marius Cosmin

Consultant imobiliar

Vânzare

2 camere | 45 m²

FINALIZAT ! Apartament tip Studio, vedere piscina, 3 min ...

Bucuresti-Ilfov / Popesti Leordeni
87.500 €

Rată estimată

1.893 Lei/lună

Avans (15%)

65.231 lei

Perioada împrumutului

30 ani

Specificații

Preț negociabil Nu

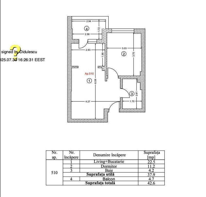
Suprafața utilă 45 m²

Număr camere 2

Tip imobil Bloc apartamente

Compartimentare Decomandat

Număr Băi 1

Etaj 5

Niveluri imobil 7

An finalizare construcție 2025

Confort Lux

Numărul de locuri de parcare 1

Ansamblu Rezidențial Da

Posibilitate parcare Da

Stare proprietate Nouă

Tip tranzacție Vânzare

Tip vânzător Companie

Apartament 2 camere tip studio, vedere partiala la piscina, finisaje noi, totul nou, liber imediat, mutare imediată, achiziția se poate face cu credit bancar sau plata cash.
Incalzire in pardoseala, 2 lifturi, 2 parcuri, 2 piscine, acces la metrou in 3-4 minute.

Solicită vizionarea proprietății

Alege o zi disponibilă

12 Februarie
13 Februarie
14 Februarie
15 Februarie

Alege un interval orar

8:00 - 12:00
12:00 - 15:00
15:00 - 18:00
18:00 - 21:00

Următoarele date de contact oferite de tine vor fi accesibile proprietarului:

Locație

Contactează utilizatorul

ID: 4075278

FINALIZAT ! Apartament tip Studio, vedere piscina, 3 min ...

2 camere | 45 m² | Bucuresti-Ilfov / Popesti Leordeni

87.500 €