Eduard Klaus

Consultant imobiliar

Închiriere

3913 m²

HALA FILIPESTII DE PADURE - complet echipată, pregătită p

Prahova / Filipestii De Padure
24.000 €

Specificații

Suprafața utilă 3913 m²

Suprafață totală 4351 m

An finalizare construcție 2015

Nu include TVA Da

Tip imobil Alte tipuri

Stadiu construcție Finalizat

Tip tranzacție Închiriere

Tip vânzător Companie

R.E.A. Imobiliare va prezinta spre inchiriere o proprietate amplasata in inima zonei industriale din Filipestii de Pădure, județul Prahova, o hală industrială modernă, dezvoltată pe un teren generos de 8.756 mp și având o suprafață total construită desfășurată de peste 4.700 mp.
Suprafață teren: 8.756 mp
Suprafață hală construită la sol: 4.351 mp
Suprafață desfășurată (P+1E parțial): aprox. 4.773 mp
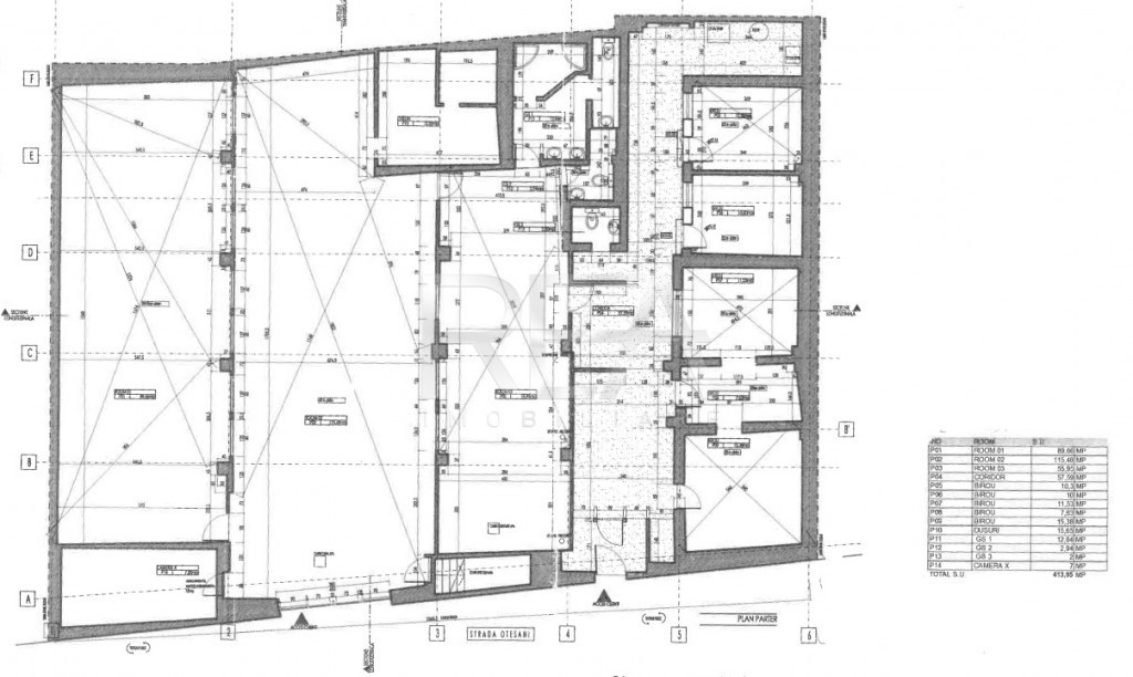
PARTER		
HALA PRODUCTIE	3913,1	mp
CENTRALA TERMICA	135,15	mp
CAMERA POMPE SI BAZIN INCENDIU	67,85	mp
HOL1	55,64	mp
BIROU	30	mp
SALA SEDINTE/OFICIU	44,1	mp
CAMERA TEHNICA	4	mp
MAGAZIE SCULE	10	mp
HOL2	22	mp
HOL ACCES	31,1	mp
SAS	3,7	mp
VESTIAR	23,9	mp
BIROU1	13,2	mp
HOL3	7,5	mp
TOALETE/DUSURI	33,1	mp
ETAJ		
SALA SEDINTE	47,5	mp
HOL4	38,1	mp
BIROU4	34	mp
BIROU3	23,6	mp
BIROU2	33,6	mp
CAM CURATENIE	2,4	mp
GS1	2,4	mp
GS2	2,4	mp
HOL5	4,9	mp

Destinație: hală de producție / prelucrare / depozitare

Proprietatea este deja autorizată și funcțională, având în spate o activitate industrială susținută (prelucrarea produselor pe bază de parafină) și este ideală pentru firme care caută un spațiu gata de operare, cu infrastructură solidă și dotări tehnice complete.

Amplasată în zona industrială a comunei Filipestii de Pădure, cu acces direct din drum asfaltat, proprietatea beneficiază de deschidere excelentă la infrastructura rutieră regională. Liniștea zonei este completată de caracterul exclusiv industrial, ceea ce oferă un cadru optim pentru desfășurarea oricărui tip de activitate de producție, logistică sau depozitare.

Clădirea principală are o suprafață la sol de 4.351 mp și este dezvoltată pe structură P+1 parțial, cu funcțiuni multiple: spații de producție, depozitare, birouri, vestiare, grupuri sanitare, camere tehnice.

- Înălțime utilă mare, cu deschidere între stâlpi generoasă – perfectă pentru fluxuri tehnologice sau rafturi de depozitare industrială.
- Pardoseală industrială elicopterizată, proiectată pentru trafic greu.
- Structură metalică solidă, acoperiș în două ape, termoizolație eficientă.
- Iluminat natural prin ferestre continue la partea superioară și sistem de iluminat artificial montat pe grinzi.
- Două porți industriale mari, cu acces TIR și zone de manevră pe platforma betonată.

Această hală vine complet echipată tehnic:

1.	Statie transformare 20KV la 400V (PI 650KWh)
2.	Statie pompare antiincendiu cu hidranti cu generator anexat de 170KW si put forat 80-120m
3.	Sistem detectie incendiu si iluminat de siguranta
4.	Sistem supraveghere
5.	Birouri mobilate
6.	Sistem fotovoltaic 100KW
7.	Împrejmuire mixtă: gard beton, gard metalic și gard plasă, cu acces securizat
8.	Platformă betonată exterioară, ideală pentru descărcare, parcare TIR și acces operativ

Pe lângă spațiul principal de hală, clădirea include și:

- Spații administrative și de birouri (P+1), complet amenajate
- Vestiare și grupuri sanitare pentru personal
- Cameră de recepție materii prime
- Cameră tehnică și spațiu pentru utilaje de procesare
- Zonă de încărcare/descărcare cu poartă mare rulantă

Destinații și utilizări posibile: Hală de producție industrială (chimică, metalurgică, materiale plastice etc.), Centru logistic / cross-docking, Depozit cu birouri pentru distribuție, Fabricație și ambalare produse finite, Alte activități specifice zonelor industriale reglementate

Proprietatea este disponibilă imediat și se pretează fie pentru vânzare, fie pentru închiriere pe termen mediu sau lung. Ideală pentru companii care doresc să-și mute rapid producția, fără a mai trece prin etape lungi de autorizare sau construcție.

Randament Investițional
•	Preț vânzare estimat: 3.300.000 €
•	Chirie anuală brută: 288.000 €
Randament brut: ~9%

Pentru mai multe detalii si vizionari, ne puteti contacta telefonic, specificand codul de identificare P8434.
Id intern: P8434

Solicită vizionarea proprietății

Alege o zi disponibilă

27 Decembrie
28 Decembrie
29 Decembrie
30 Decembrie

Alege un interval orar

8:00 - 12:00
12:00 - 15:00
15:00 - 18:00
18:00 - 21:00

Următoarele date de contact oferite de tine vor fi accesibile proprietarului:

Locație

Contactează utilizatorul

ID: 4043801

HALA FILIPESTII DE PADURE - complet echipată, pregătită p

3913 m² | Prahova / Filipestii De Padure

24.000 €