Petrut Ciubotaru

Consultant imobiliar

Vânzare

2621 m²

Imobil cu destinatie clinica medicala, spital

Vaslui / Vaslui
1.000.000 €

Rată estimată

21.910 Lei/lună

Avans (15%)

745.500 lei

Perioada împrumutului

30 ani

Specificații

Suprafața utilă 2621 m²

An finalizare construcție 2004

Tip imobil Alte tipuri

Stadiu construcție Finalizat

Comision cumpărător 2%

Tip tranzacție Vânzare

Tip vânzător Companie

Nu include TVA Da

Agentia imobiliara Alyelite Consult va prezinta spre  vanzare un imobil situat in judetul Vaslui, municipiul Vaslui, str. Eternitatii, in zona Parcului Copou.
Imobilul este situat in zonă cu instituții publice de interes zonal si local, Casa De Cultura, Filiala BCR, CEC, Judecătorie, Parchetul de pe lângă Judecătoria Vaslui. Cea mai apropiată stație de mijloc de transport în comun se află la 2 minute de mers pe jos, stația de autobuz fiind la o 100 m.
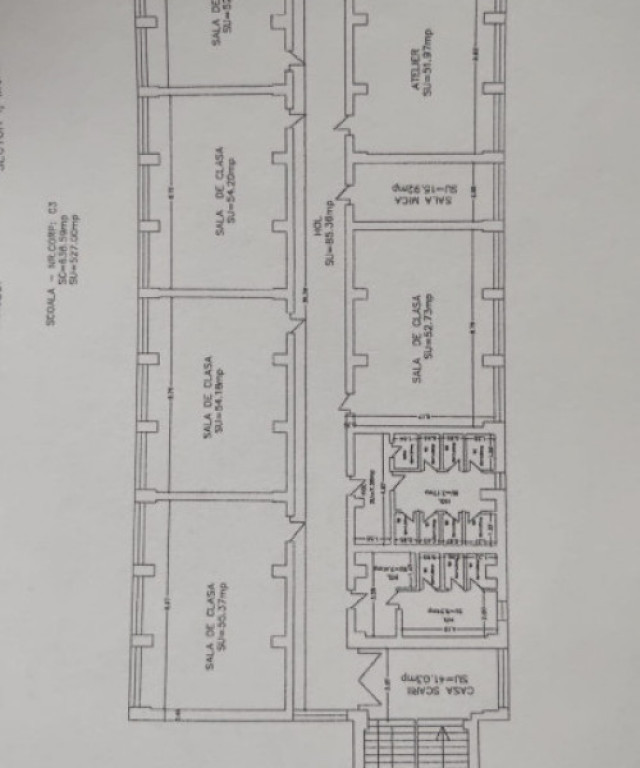
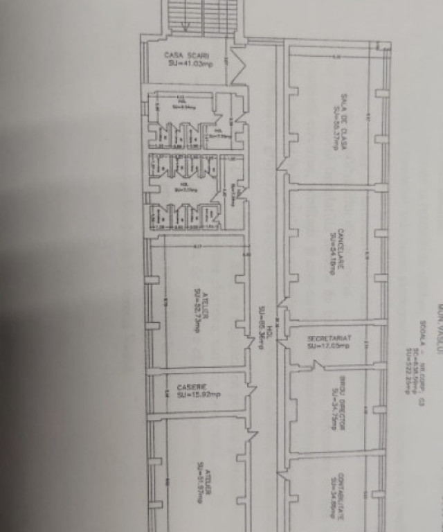
Suprafața utila a imobilului de 2.621,25 mp. si are regim de inaltime S+P+3E, dispuse consecutiv, accesul facându-se pe scări prin ambele părți ale fiecărui nivel si sunt distribuite astfel:
1.	SUBSOL  :  SC = 630,05 mp, SU = 528,41 mp  
- dispune de 12 boxe cu SU de aprox. 35 mp fiecare și HOL SU = 83,81 mp
- pot fi utilizate pentru depozitare bunuri 
2.	PARTER  :  SC = 659,14 mp, SU = 518,09 mp  -   SU+S(TERASĂ) = 548,05 mp
-	dispune de 5 încăperi cu SU de aprox. 53 mp fiecare, 2 încăperi cu SU de aprox. 15 mp și HOL cu SU de aprox. 114,06 mp
-	dispune de băi pe fiecare etaj
La parterul clădirii sunt două căi de acces, ce permit accesul separat 
3.      ETAJUL I  :  SC = 638,59 mp, SU = 522,25 mp   
-	dispune de 4 încăperi cu SU de aprox. 53 mp, 2 încăperi cu SU de aprox. 35 mp, 3 încăperi cu SU de aprox. 16 mp și HOL cu SU de aprox. 85,36 mp
4.	ETAJUL II           SC = 638,59 mp, SU = 527,00 mp   
-	dispune de 6 încăperi cu SU de aprox. 53 mp, 1 încăpere cu SU de aprox. 16 mp și HOL cu SU de aprox. 85,36 mp
-	Casa scării cu suprafață utilă de 17,14 mp
-	Holul de la etajul II are o suprafață de 85,36 mp
5.	ETAJUL III          SC = 638,59 mp, SU = 529,50 mp   
-	dispune de 6 încăperi cu SU de aprox. 53 mp, 1 încăpere cu SU de aprox. 25,96 mp și HOL cu SU de aprox. 85,36 mp
Holurile, cu o suprafață utilă de aproximativ 500 mp,  asigură o bună deplasare 
Imobilul nu prezintă degradări structurale, este finisat atât la exterior cât și la interior, este racordat la toate utilitățile necesare funcționării corespunzătoare: precum sistem de încălzire propriu asigurat de centrală termică cu combustibil gazos, rețea de alimentare cu apa, rețea de canalizare, instalație electrică și rețea alimentare cu energie electrică cu contorizare. Puterea instalată a imobilului este de 120KW/h, având în dotare si un post TRAFO propriu.
Deasemeni, imobilul este dotat cu centrală termică proprie cu combustibil gazos.
Căile de evacuare respectă cerințele normativelor pentru prevenirea și stingerea incendiilor, precum și a celor antiseismice.
Imobilul este dotat cu:
- hidranți de incendiu interiori;
- hidranți de incendiu exteriori;
-cablaj pentru telefonie fixă pentru cel putin două posturi telefonice
Dispune de parcare in curte de minim 30 locuri si aproximativ 2500 mp teren.
Imobilul se poate si inchiria.Pretul de inchiriere fiind de 5 euro/ mp si variaza in functie de suprafata si stadiul modernizarilor facute la acel moment .
Daca exista interes proprietarul este deschis catre parteneriate.
In procesul de cumparare a acestei proprietati veti fi ajutati de consultantul imobiliar Ciubotaru Petrut, care va oferi toate detaliile necesare si va va ghida pe tot parcursul achizitionarii. Tot ce trebuie sa faceti este sa apelati la numarul de telefon din anunt.

Id intern: P174

Solicită vizionarea proprietății

Alege o zi disponibilă

27 Decembrie
28 Decembrie
29 Decembrie
30 Decembrie

Alege un interval orar

8:00 - 12:00
12:00 - 15:00
15:00 - 18:00
18:00 - 21:00

Următoarele date de contact oferite de tine vor fi accesibile proprietarului:

Locație

Contactează utilizatorul

ID: 3981722

Imobil cu destinatie clinica medicala, spital

2621 m² | Vaslui / Vaslui

1.000.000 €


Vezi și alte anunțuri imobiliare