Andrada Lorena

Consultant imobiliar

Vânzare

5 camere | 120 m²

Jumatate de duplex cu 5 camere despartit prin camera tehnica

Timis / Dumbravita
250.000 €

Rată estimată

5.477 Lei/lună

Avans (15%)

186.375 lei

Perioada împrumutului

30 ani

Specificații

Preț negociabil Nu

Nu include TVA Nu

Suprafața utilă 120 m²

Suprafață teren 300 m²

Număr camere 5

Niveluri imobil 1

An finalizare construcție 2025

Număr Băi 2

Ansamblu Rezidențial Nu

Posibilitate parcare Nu

Mobilat și Utilat Nemobilat

Stare proprietate Bună

Utilități Curent, Apă, Canalizare, Gaz, Încălzire

Tip tranzacție Vânzare

Tip vânzător Companie

APOSTU ESTATE va propune spre vanzare o jumatate de duplex despartit prin camera tehnica cu 5 camere spatios in Dumbravita.
Pentru ca investitia ta este pe termen lung s-au folosit cele mai bune materiale de constructie existente pe piata facute sa reziste timpului si sa iti ofere cel mai inalt grad de confort.
Proprietatea se intinde pe o suprafata de teren de 300 mp si pe o suprafata utila de 120 mp. 
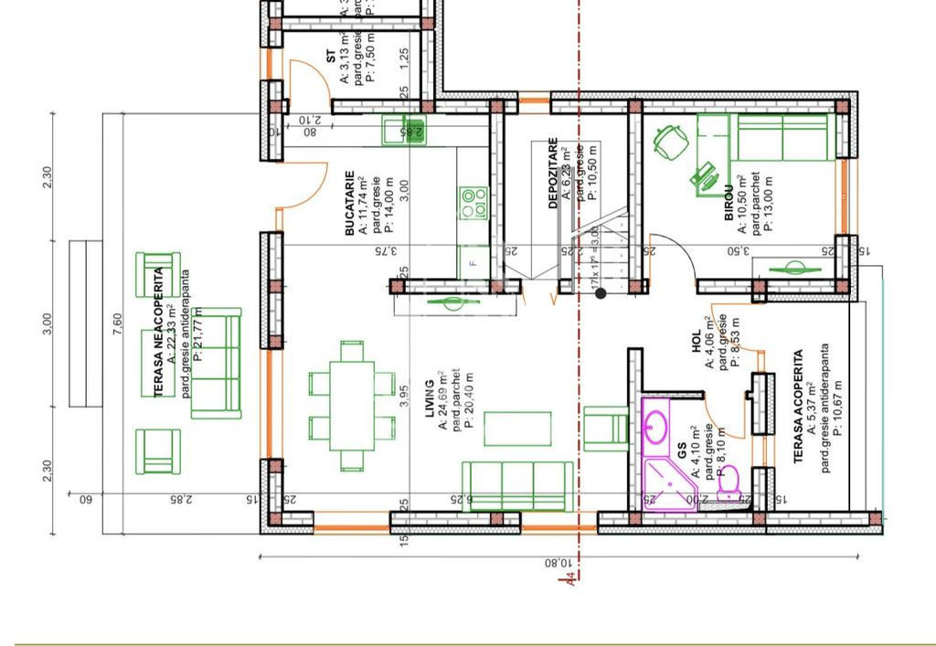
Compartimentare:
Parter:
-hol acces;
-living;
-bucatarie partial inchisa;
-dormitor/birou;
-baie; 
-camera tehica;
-terasa;
-spatiu pentru depozitare;
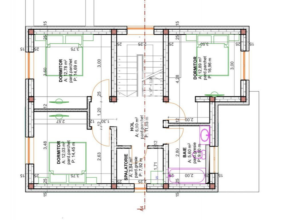
Etaj:
-hol acces;
-3 dormitoare;
-baie cu cada;
-spatiu pentru depozitare/dressing;
 
Detalii tehnice:
-constructie din caramida Porotherm;
-termostat ambiental in fiecare camera;
-front stradal 10m;
-regim de inaltima P+E;
-geamuri termopan cu 3 sticle
-izolatie cu polistiren;
-centrala proprie pe gaz incalzire in pardoseala;

Pretul include finisajele la cheie si tva-ul.
Termen de finalizare Fbruarie 2026;

Casa dispune de toate utilitatile.
Oferim consultanta si solutii financiare prin colaboratorii nostri.
Va invitam cu drag la o vizionare!

ID intern: 16421.

Solicită vizionarea proprietății

Alege o zi disponibilă

27 Decembrie
28 Decembrie
29 Decembrie
30 Decembrie

Alege un interval orar

8:00 - 12:00
12:00 - 15:00
15:00 - 18:00
18:00 - 21:00

Următoarele date de contact oferite de tine vor fi accesibile proprietarului:

Locație

Contactează utilizatorul

ID: 3938157

Jumatate de duplex cu 5 camere despartit prin camera tehnica

5 camere | 120 m² | Timis / Dumbravita

250.000 €