Zina Epure

Consultant imobiliar

Vânzare

3 camere | 73 m²

Lidl Metalurgiei - Parc Tudor Arghezi - 3 camere

Bucuresti-Ilfov / Bucuresti
115.500 €

Rată estimată

2.498 Lei/lună

Avans (15%)

86.105 lei

Perioada împrumutului

30 ani

Specificații

Nu include TVA Da

Număr camere 3

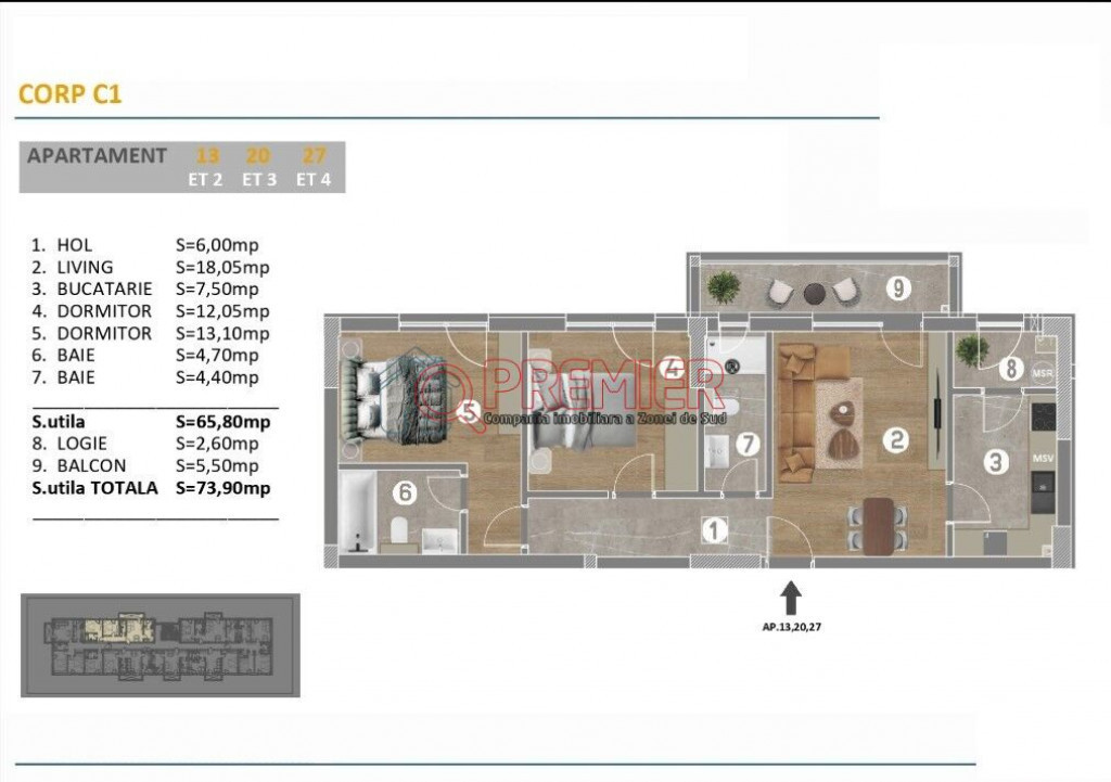
Suprafața utilă 73 m²

Etaj 2

An finalizare construcție 2025

Număr Băi 2

Posibilitate parcare Nu

Numărul de locuri de parcare 0

Ansamblu Rezidențial Da

Ultimul etaj Nu

Niveluri imobil 6

Stare proprietate Nouă

Mobilat și Utilat Nemobilat

Compartimentare Decomandat

Confort 1

Tip imobil Alte tipuri

Clasa energetică A

Tip tranzacție Vânzare

Tip vânzător Companie

Premier Imobiliare va ofera spre vanzare un apartament de 3 camere, situat la etajul 2 din 6 nivele, cu o suprafata totala utila de 73,80 mp la pretul promotional de:

- 115.500 euro + tva pentru avansul de 50% (reducere de 5% din avansul de 50% )
- 116.500 euro + tva pentru avansul de 15% ( promotia lunii februarie )
- 118.500 euro + tva Pret lista

                                  Un nou complex rezidential la cel mai ridicat nivel de calitate,
  
      Ansamblul este situat la 5 minute de Bulevardul Metalurgiei , respectiv Parcul Tudor Arghezi , cu un regim de inaltime de P+6 , compus din garsoniere, apartamente cu 2, 3 si 4 camere, cu o compartimentare ideala.  

      Acest proiect se diferentiaza de toate celelalte proiecte actuale prin detalii foarte importante pentru orice familie, locuri de joaca amenajate pentru copii, spatii de recreere, locuri de parcare atat la interior cat si la exterior, calitatea constructiei, dar si a finisajelor. 

     Regasim materiale de constructie si finisaje din cele mai de top si calitate firme din Italia, Spania, Grecia, Austria, astfel incat in materie de finisaje, gresie/faianta vom regasi marca Ragno, Marazzi si Mirage (Italia si Spania), iar parchetul de 10 mm trafic intens laminat produs de Egger (Austria).

     Tamplaria pvc gri antracit, de 7 camere, cu geamuri tripane (geamul exterior fiind cu reflexie pentru razele UV si caldura, iar geamul interior este tratat pentru recuperarea caldurii), marca fiind Salamander lider absolut in aceasta materie pe piata Romaniei. 

   Obiectele sanitare de cea mai buna calitate de la Ideal Standard. 

    Locuinta este dotata cu centrala termica in condensatie de 24 Kw, respectiv calorifere.
     
    Constructia este realizata pe cadre din beton armat si compartimentarea realizata cu caramida Porotherm de 250 x 300 x 238 mm si 500 x 150 x 238 mm , fapt pentru care constructia in sine confera siguranta si confort. 

    Izolatia constructiei, una de foarte buna calitate atat termica cat si fonica.
     
    Pentru fiecare scara sunt cate doua lifturi de ultima generatie, silentioase, marca Schindler.

    Usile de la intrare in apartamente sunt din otel, anti-efractie, placate cu lemn, incuietoare tip paianjen si umplute la interior cu vata bazaltica.
 
   Atat pe casa scarii cat si pe holuri vom regasi granit natural, iar pe fiecare etaj hidrant anti-incendiu.
 
   Apartamentul va fi predat la cheie in luna decembrie 2026 cu toate bransamentele (Enel, Engie, Apanova ).  

   Puncte de interes : 

   - 5 minute Parcul Tudor Arghezi
   - 3 minute Lidl / Kaufland ( Binelui/Metalurgiei )
   - 5 minute Grand Arena Mall 
   - Statie STB / diverse obtiuni pentru accesul catre centru, respectiv metrou.

  Oferim asistenta in vederea intocmirii dosarului de credit.

  Pozele reale din apartamente predate de acelasi dezvoltator .

 Optional se poate achizitiona loc de parcare acoperit la pretul de 9.000 euro + tva, exterior/acoperita la pretul de 10.000 euro + tva, sau subteran la 10.000 euro + tva.

   Recomandam vizionare! Comision 0%!
Serviciul nou oferit de PREMIER Imobiliare! Solicita acum VIZIONARE ONLINE pentru aceasta proprietate!

COMISION 0%

Această proprietate se poate achiziționa prin orice tip de credit bancar.

Departamentul nostru financiar Premier Credit Hub vă stă la dispoziție GRATUIT (comision 0%) pentru:
- identificarea celei mai bune soluții de finanțare;
- întocmirea dosarului bancar complet;
- obținerea rapidă a creditului necesar achiziției.

Beneficiați de un serviciu ALL IN ONE, cu acces direct la ofertele tuturor băncilor comerciale din România.
Se acceptă inclusiv venituri din străinătate, astfel încât fiecare client să poată cumpăra în cele mai avantajoase condiții.

 Solicitați acum o simulare de credit direct din anunț sau cereți detalii consultantului Premier Imobiliare!

Solicită vizionarea proprietății

Alege o zi disponibilă

08 Februarie
09 Februarie
10 Februarie
11 Februarie

Alege un interval orar

8:00 - 12:00
12:00 - 15:00
15:00 - 18:00
18:00 - 21:00

Următoarele date de contact oferite de tine vor fi accesibile proprietarului:

Locație

Despre zona "Metalurgiei"

păreri exprimate de 11 de utilizatori, pe o scară de la 1 la 10

Află clasamentul acestui cartier
Sănătate și Siguranță

Sănătate și Siguranță

7.4

Sănătate 6.3

Siguranță 9.1

Calitate aer 8.3

Curățenie 7.7

Zone verzi 5.4

Cultură și Educație

Cultură și Educație

5.5

Cultură 5.1

Educație 6.0

Sport 5.4

Ambianță și Lifestyle

Ambianță și Lifestyle

8.3

Nivel de trai 9.1

Magazine 8.1

Localuri 6.7

Parcări 8.3

Zgomot 9.1

Transport în comun

Transport în comun

7.5

Autobuz 8.3

Tramvai 6.4

Metrou 7.7

Contactează utilizatorul

ID: 4125372

Lidl Metalurgiei - Parc Tudor Arghezi - 3 camere

3 camere | 73 m² | Bucuresti-Ilfov / Bucuresti

115.500 €