Constantin Drăghici

Consultant imobiliar

Vânzare

2 camere | 68 m²

Metrou Aparatorii Patriei - 10 minute - Sector 4 -

Bucuresti-Ilfov / Bucuresti
108.999 €

Rată estimată

2.347 Lei/lună

Avans (15%)

81.259 lei

Perioada împrumutului

30 ani

Specificații

Nu include TVA Da

Număr camere 2

Suprafața utilă 68 m²

Etaj 2

An finalizare construcție 2025

Număr Băi 1

Posibilitate parcare Nu

Numărul de locuri de parcare 0

Ansamblu Rezidențial Da

Ultimul etaj Nu

Niveluri imobil 6

Stare proprietate Nouă

Mobilat și Utilat Nemobilat

Compartimentare Decomandat

Confort 1

Tip imobil Alte tipuri

Clasa energetică A

Tip tranzacție Vânzare

Tip vânzător Companie

Metrou Aparatorii Patriei - 10 minute - Sector 4  - Apartament 2 camere decomandat

       Premier Imobiliare va ofera spre vanzare un apartament de 2 camere decomandat de 67,02 mp .

 - Pret Lista  -  109.000   EURO + TVA 21%

 Constructie amplasata la doar 10 minute de statia de Metrou Aparatorii Patriei.

 In imediata vecinatate regasim statie Metrou, STB, scoli, gradinite, supermarket, piata, farmacii, spitale, spatii agrement, parc.

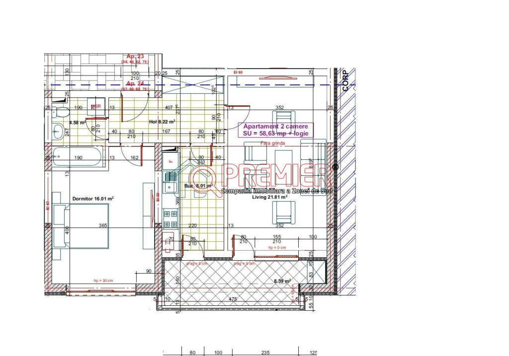
 Compartimentarea ideala :

 - Hol   -   8,22 mp
 - Baie   -   4,58 mp
 - Bucatarie   -   8,01 mp
 - Living   -   21,81 mp
 - Dormitor - 16,01 mp

   -  SUPRAFATA UTILA   -   58,63 mp

 - Balcon   -   8,39 mp

   -   SUPRAFATA TOTALA UTILA   -   67,02 mp

  Apartamentul se preda la cheie, echipat cu gresie, faianta, parchet, usi interior, centrala termica in condensatie, incalzire in pardoseala, baia mobilata si echipata, bransat la utilitatile orasului, gaze, curent, apa, canalizare.

  Loc parcare : - Suprateran 10.000 euro  TVA inclus
                          - Subteran     15.000 euro  TVA inclus

Acest proiect se diferentiaza de toate celelalte proiecte actuale prin detalii foarte importante pentru orice familie cum ar fi : spatii de recreere, locuri de parcare subterane, calitatea constructiei, dar si a finisajelor.

Regasim materiale de constructie si finisaje din cele mai de top si calitate firme  in materie de finisaje, gresie/faianta .

Parchetul de 10 mm trafic intens laminat .

Tamplaria pvc gri antracit , de 7 camere, cu geamuri tripane (geamul exterior fiind cu reflexie pentru razele UV si caldura, iar geamul interior este tratat pentru recuperarea caldurii), marca fiind Salamander, lider absolut in aceasta materie pe piata Romaniei.

Obiectele sanitare de cea mai buna calitate Premium. Fiecare baie este echipata/utilata.

Centrala termica proprie , incalzire in pardoseala .

Aparataj electric premium, instalatia electrica pe cupru plin de 1,5 mm , respectiv 2,5 mm .

Constructia este realizata pe cadre din beton armat B 400 respectiv B 500 si compartimentarea realizata cu caramida BCA de 300 mm compartimentarea exterioara si 150 mm compartimentarea interioara , fapt pentru care constructia in sine confera siguranta si confort.

Atat tencuiala cat si sapa sunt de cea mai buna calitate, fiind mecanizate.

Izolatia constructiei, una de foarte buna calitate atat termica cat si fonica ( Polistiren expandat EPS 100 de 10 mm respectiv vata minerala bazaltica / ignifuga ).

Pentru fiecare scara de bloc beneficiem de lift de ultima generatie, silentios , marca Schindler ,( cu o capacitate de 6 persoane / lift ).

Usile de la intrare in apartamente vor fi din otel, anti-efractie, incuietoare tip paianjen si umplute la interior cu vata minerala bazaltica , iar usile de interior gama Premium, pe diferite nuante.

Atat pe casa scarii cat si pe holuri vom regasi pe fiecare etaj hidrant anti-incendiu.

Complexul Rezidential beneficiaza de supraveghere video.

Apartamentele vor fi predate la cheie cu toate bransamentele (Enel, Engie, ApaNova ) , respectiv fibra optica / internet .

  Se accepta si plata prin credit bancar. Oferim asistenta de specialitate in vederea intocmirii dosarului bancar.

   Poze cu titlul de prezentare. Viitorul proprietar beneficiaza de privilegiul de a alege din paletarul oferit de catre dezvoltator de finisaje Premium.
 
  Comision 0%.

Pentru mai multe detalii / programarea unei vizionari, Costin Draghici 0737.500.374
Detalii garaj: Loc parcare : - Suprateran 10.000 euro  TVA inclus
                        - Subteran     15.000 euro  TVA inclus
Serviciul nou oferit de PREMIER Imobiliare! Solicita acum VIZIONARE ONLINE pentru aceasta proprietate!

COMISION 0%

Această proprietate se poate achiziționa prin orice tip de credit bancar.

Departamentul nostru financiar Premier Credit Hub vă stă la dispoziție GRATUIT (comision 0%) pentru:
- identificarea celei mai bune soluții de finanțare;
- întocmirea dosarului bancar complet;
- obținerea rapidă a creditului necesar achiziției.

Beneficiați de un serviciu ALL IN ONE, cu acces direct la ofertele tuturor băncilor comerciale din România.
Se acceptă inclusiv venituri din străinătate, astfel încât fiecare client să poată cumpăra în cele mai avantajoase condiții.

 Solicitați acum o simulare de credit direct din anunț sau cereți detalii consultantului Premier Imobiliare!

Solicită vizionarea proprietății

Alege o zi disponibilă

24 Aprilie
25 Aprilie
26 Aprilie
27 Aprilie

Alege un interval orar

8:00 - 12:00
12:00 - 15:00
15:00 - 18:00
18:00 - 21:00

Următoarele date de contact oferite de tine vor fi accesibile proprietarului:

Locație

Despre zona "Aparatorii Patriei"

păreri exprimate de 276 de utilizatori, pe o scară de la 1 la 10

Află clasamentul acestui cartier
Sănătate și Siguranță

Sănătate și Siguranță

6.6

Sănătate 6.9

Siguranță 7.2

Calitate aer 6.1

Curățenie 6.6

Zone verzi 6.2

Cultură și Educație

Cultură și Educație

6.5

Cultură 5.6

Educație 7.2

Sport 6.6

Ambianță și Lifestyle

Ambianță și Lifestyle

6.7

Nivel de trai 6.7

Magazine 7.9

Localuri 6.9

Parcări 5.5

Zgomot 6.4

Transport în comun

Transport în comun

7.2

Autobuz 7.5

Tramvai 6.1

Metrou 8.1

Contactează utilizatorul

ID: 4142864

Metrou Aparatorii Patriei - 10 minute - Sector 4 -

2 camere | 68 m² | Bucuresti-Ilfov / Bucuresti

108.999 €