Florina Camberliu

Consultant imobiliar

Vânzare

1150 m²

Mihai Bravu, imobil birouri 1S+D+P+3E+M

Bucuresti-Ilfov / Bucuresti
2.900.000 €

Specificații

Preț negociabil Nu

Nu include TVA Da

Tip imobil Clădire de birouri

Suprafața utilă 1150 m²

Suprafață totală 1428 m

An finalizare construcție 2018

Posibilitate parcare Nu

Stadiu construcție Finalizat

Tip tranzacție Vânzare

Tip vânzător Companie

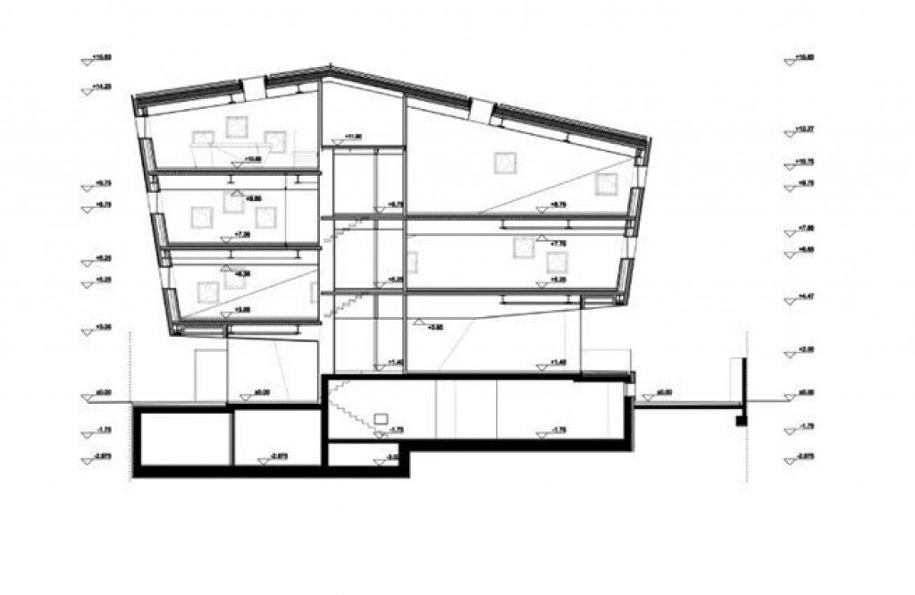
Mihai Bravu, imobil birouri, 1S+D+P+3E+M, suprafață construita desfășurată de 1428 mp, teren 567 mp
Interiorul este gandit  pe jumătăți de nivel, decalate pe înălțime, totul plecând de la subsol. Acest fapt a eliminat stâlpii interiori, generand etaje open-space cu suprafete libere generoase. Spațiile de lucru sunt suspendate pe nodul central compus din casa scării, lift și grupuri sanitare. Scara de evacuare este parte integrantă a nodului de rezistență, iar suplimentar avem al doilea rand de scari pentru comunicarea dintre etaje. 

Pe langa dotarile rezultate din arhitectura cladirii, 1 lift, 7 grupuri sanitare, 2 randuri de scari, si cele 20 de locuri de parcare la demisol si exterior, cladirea este dotata cu sisteme functionale de cea mai buna calitate:

- sistem de climatizare si incalzire HVAC - Daikin;

- sistem de detectie si avertizare la incendiu, cladirea fiind avizata IGSU;

- sistem avansat de supraveghere video AXIS Communications, sistem de detectie si avertizare la efractie, control acces pe fiecare nivel, inclusiv in controlul lift-ului;

- acces limitat catre parcarea din demisol prin bariera de acces.
Sunt 22  de locuri de parcare atat la demisol cat si la suprafata.

Solicită vizionarea proprietății

Alege o zi disponibilă

23 Februarie
24 Februarie
25 Februarie
26 Februarie

Alege un interval orar

8:00 - 12:00
12:00 - 15:00
15:00 - 18:00
18:00 - 21:00

Următoarele date de contact oferite de tine vor fi accesibile proprietarului:

Locație

Despre zona "Mihai Bravu"

păreri exprimate de 40 de utilizatori, pe o scară de la 1 la 10

Află clasamentul acestui cartier
Sănătate și Siguranță

Sănătate și Siguranță

6.8

Sănătate 6.7

Siguranță 7.7

Calitate aer 5.8

Curățenie 6.6

Zone verzi 7.0

Cultură și Educație

Cultură și Educație

6.7

Cultură 6.2

Educație 6.9

Sport 7.1

Ambianță și Lifestyle

Ambianță și Lifestyle

6.9

Nivel de trai 7.4

Magazine 7.6

Localuri 7.3

Parcări 5.6

Zgomot 6.6

Transport în comun

Transport în comun

7.6

Autobuz 7.6

Tramvai 7.4

Metrou 7.9

Contactează utilizatorul

ID: 3973027

Mihai Bravu, imobil birouri 1S+D+P+3E+M

1150 m² | Bucuresti-Ilfov / Bucuresti

2.900.000 €


Vezi anunțuri și din categoriile