Ioan Lungu

Consultant imobiliar

Vânzare

1600 m²

Mihai Bravu Stradal Parter 1600 mp Imobil nou

Bucuresti-Ilfov / Bucuresti
2.750.000 €

Rată estimată

60.252 Lei/lună

Avans (15%)

2.050.125 lei

Perioada împrumutului

30 ani

Specificații

Preț negociabil Nu

Nu include TVA Da

Tip imobil Alte tipuri

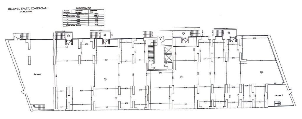
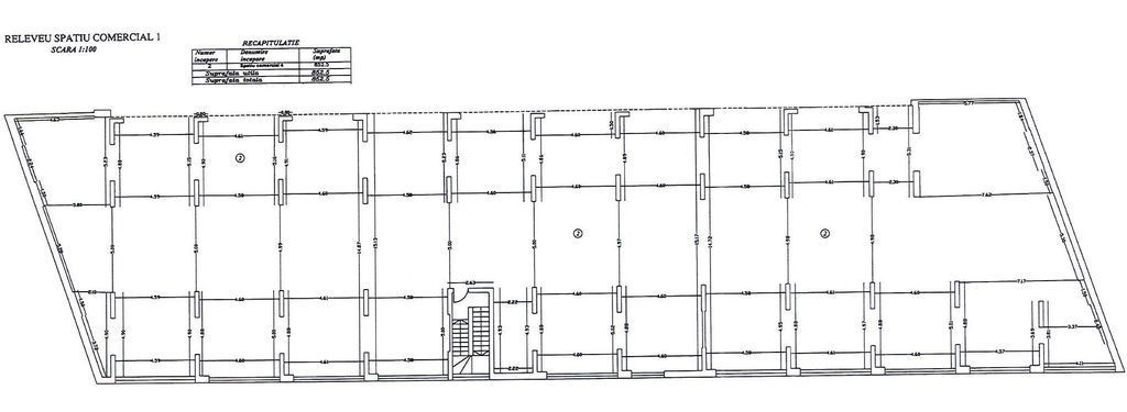
Suprafața utilă 1600 m²

Suprafață totală 1950 m

An finalizare construcție 2021

Vitrină 100_0 m

Numărul de locuri de parcare 20+

Număr încăperi 1

Înălțime spațiu 5_0 m

Posibilitate parcare Da

Stadiu construcție Finalizat

Tip tranzacție Vânzare

Tip vânzător Companie

- Va propunem spre vanzare un spatiu comercial generos, situat la parter, de 1.600 mp utili. Spatiul se afla intr-o zona care este un pol al materialelor de constructii si mobila. Ca sa va convingeti va invitam la o vizionare;
- Spatiul se afla in imediata proximitate a unei statii de metrou si a inca doua statii de tramvai, inclusiv statii de autobuz. Traficul pietonal este intens;
 - Imobilul este nou;
- Deschiderea stradala: 100 ml;
- Exista 30 locuri de parcare cu bariera la pretul de 10000 euro locul de parcare
- Acces auto pentru aprovizionare;
- Utilitati existente: Apa curenta; Canalizare; Curent electric, inclusiv trifazic; Gaze naturale;
- Spatiul este pretabil pentru urmatoarele activitati: Showroom auto; Magazin prezentare mobila; Clinica medicala; Spatii de birouri; Supermarket.

Solicită vizionarea proprietății

Alege o zi disponibilă

08 Decembrie
09 Decembrie
10 Decembrie
11 Decembrie

Alege un interval orar

8:00 - 12:00
12:00 - 15:00
15:00 - 18:00
18:00 - 21:00

Următoarele date de contact oferite de tine vor fi accesibile proprietarului:

Locație

Despre zona "Mihai Bravu"

păreri exprimate de 40 de utilizatori, pe o scară de la 1 la 10

Află clasamentul acestui cartier
Sănătate și Siguranță

Sănătate și Siguranță

6.8

Sănătate 6.7

Siguranță 7.7

Calitate aer 5.8

Curățenie 6.6

Zone verzi 7.0

Cultură și Educație

Cultură și Educație

6.7

Cultură 6.2

Educație 6.9

Sport 7.1

Ambianță și Lifestyle

Ambianță și Lifestyle

6.9

Nivel de trai 7.4

Magazine 7.6

Localuri 7.3

Parcări 5.6

Zgomot 6.6

Transport în comun

Transport în comun

7.6

Autobuz 7.6

Tramvai 7.4

Metrou 7.9

Contactează utilizatorul

ID: 3808829

Mihai Bravu Stradal Parter 1600 mp Imobil nou

1600 m² | Bucuresti-Ilfov / Bucuresti

2.750.000 €