Ioan Lungu

Consultant imobiliar

Închiriere

1600 m²

Mihai Bravu Stradal 1600 mp Showroom mobila/auto, Clinica...

Bucuresti-Ilfov / Bucuresti
24.000 €

Specificații

Preț negociabil Da

Nu include TVA Da

Tip imobil Alte tipuri

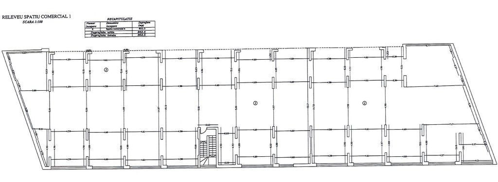
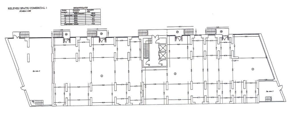
Suprafața utilă 1600 m²

Suprafață totală 1950 m

An finalizare construcție 2021

Vitrină 100_0 m

Numărul de locuri de parcare 20+

Număr încăperi 1

Înălțime spațiu 5_0 m

Posibilitate parcare Da

Stadiu construcție Finalizat

Tip tranzacție Închiriere

Tip vânzător Companie

- Va propunem spre inchiriere un spatiu comercial generos, situat la parter, de 1.600 mp utili. Spatiul se afla intr-o zona care este un pol al materialelor de constructii si mobila. Ca sa va convingeti va invitam la o vizionare;
- Spatiul se afla in imediata proximitate a unei statii de metrou si a inca doua statii de tramvai, inclusiv statii de autobuz. Traficul pietonal este intens;
 - Imobilul este nou;
- 1.600 mp utili, divizibili de la minim 500 mp (se accepta maxim 3 chiriasi);
- Deschiderea stradala: 100 ml;
- Exista 60 locuri de parcare cu bariera (din care 40 in sistem Klauss), parcarea aflandu-se in proprietate;
- Acces auto pentru aprovizionare;
- Utilitati existente: Apa curenta; Canalizare; Curent electric, inclusiv trifazic; Gaze naturale;
- Spatiul este pretabil pentru urmatoarele activitati: Showroom auto; Magazin prezentare mobila; Clinica medicala; Spatii de birouri; Supermarket.

Solicită vizionarea proprietății

Alege o zi disponibilă

15 Februarie
16 Februarie
17 Februarie
18 Februarie

Alege un interval orar

8:00 - 12:00
12:00 - 15:00
15:00 - 18:00
18:00 - 21:00

Următoarele date de contact oferite de tine vor fi accesibile proprietarului:

Locație

Despre zona "Mihai Bravu"

păreri exprimate de 40 de utilizatori, pe o scară de la 1 la 10

Află clasamentul acestui cartier
Sănătate și Siguranță

Sănătate și Siguranță

6.8

Sănătate 6.7

Siguranță 7.7

Calitate aer 5.8

Curățenie 6.6

Zone verzi 7.0

Cultură și Educație

Cultură și Educație

6.7

Cultură 6.2

Educație 6.9

Sport 7.1

Ambianță și Lifestyle

Ambianță și Lifestyle

6.9

Nivel de trai 7.4

Magazine 7.6

Localuri 7.3

Parcări 5.6

Zgomot 6.6

Transport în comun

Transport în comun

7.6

Autobuz 7.6

Tramvai 7.4

Metrou 7.9

Contactează utilizatorul

ID: 3955504

Mihai Bravu Stradal 1600 mp Showroom mobila/auto, Clinica...

1600 m² | Bucuresti-Ilfov / Bucuresti

24.000 €