BLITZ Romania

Consultant imobiliar

Vânzare

2 camere | 55 m²

OPORTUNITATE! APARTAMENT 2 CAMERE, ETAJ INTERMEDIAR, ERA HEX

Cluj / Cluj-Napoca
195.000 €

Rată estimată

4.272 Lei/lună

Avans (15%)

145.373 lei

Perioada împrumutului

30 ani

Specificații

Număr camere 2

Suprafața utilă 55 m²

Compartimentare Semidecomandat

An finalizare construcție 2025

Niveluri imobil 9

Număr Băi 1

Numărul de locuri de parcare 1

Etaj 3

Mobilat și Utilat Nemobilat

Tip imobil Bloc apartamente

Stare proprietate Bună

Confort 1

Tip tranzacție Vânzare

Tip vânzător Companie

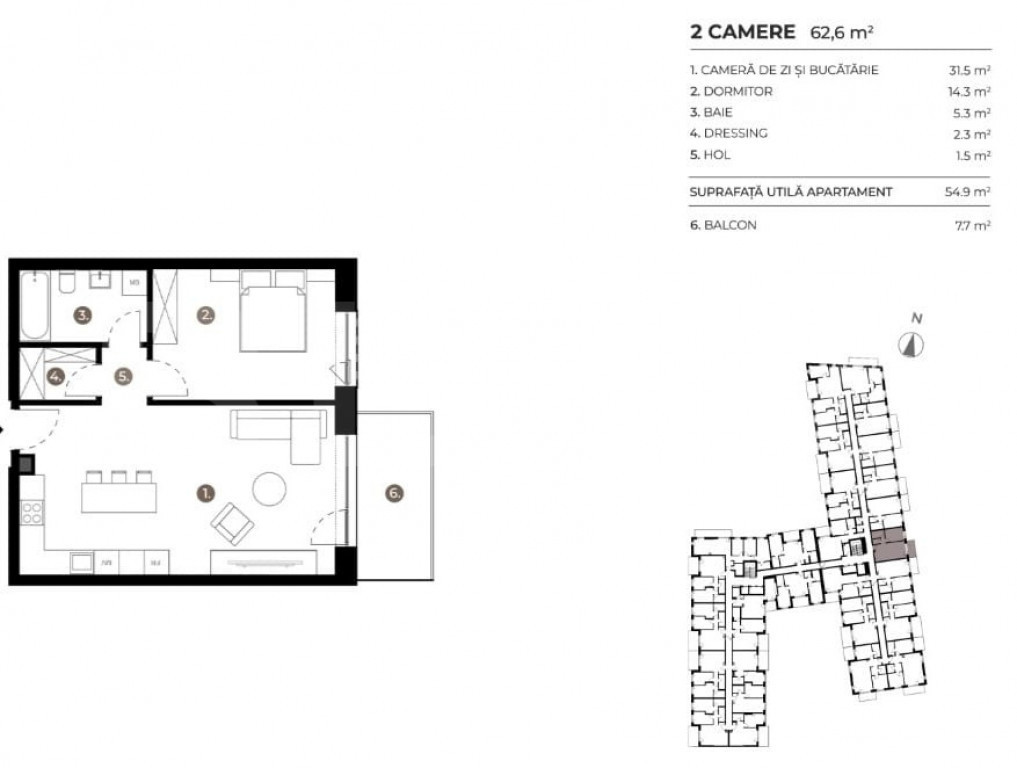
Blitz va propune spre vânzare un apartament in complexul ERA By Hexagon de 2 camere 54.9 mp, finisat, situat la etajul 3 din 9 al unui bloc nou, cu lift– ideal pentru cei care caută confort, noutate și un cămin gata de mutat. 

Detalii apartament: 
Suprafață generoasă, compartimentare practică: 
– Living modern și luminos, open-space cu bucătăria 
– 1 dormitor, 
-Baie elegantă, 
-Balcon generos de 7.7 mp. 

Confortul termic pe sezon de vara este gandit in felul urmator: 
-Jaluzelele se închid manual sau automat în condiţii de însorire. 
Recuperatoarele de căldură asigură aportul de aer proaspăt la interior, pentru un climat sănătos și economie de energie. 
-Pompele de căldură produc agentul termic pentru sistemul de răcire pasivă de la nivelul tavanelor din spațiile de locuit. 
-Panourile fotovoltaice furnizează energia electrică pentru funcționarea pompelor de căldură. Sistemul de automatizare al clădirii optimizează consumul de energie. 

Confortul termic pe sezon de iarna este gandit in felul urmator: 
-recuperatoarele de căldură asigură aportul de aer proaspăt la interior, pentru un climat sănătos și economie de energie. 
-Iarna, pompele de căldură produc agentul termic necesar sistemului de încălzire din tavanele apartamentelor. 
-iarna, în perioada foarte rece, cazanele pe gaz completează puterea necesară producerii agentului termic. 

Sistemul de automatizare al clădirii optimizează consumul de energie. 
Facilități premium: creșă, grădiniță, sală de fitness, clinici medicale, supermarket. 
Predare CF-uri: 30.04.2026. 
Separat se poate achizitiona un loc de parcare in subteran la 17000 Euro. 
Preturile afisate contin TVA.
Cod ofertă / ID BLITZ: P158989
Id intern: P158989

Solicită vizionarea proprietății

Alege o zi disponibilă

08 Decembrie
09 Decembrie
10 Decembrie
11 Decembrie

Alege un interval orar

8:00 - 12:00
12:00 - 15:00
15:00 - 18:00
18:00 - 21:00

Următoarele date de contact oferite de tine vor fi accesibile proprietarului:

Locație

Despre zona "Semicentral"

păreri exprimate de 51 de utilizatori, pe o scară de la 1 la 10

Află clasamentul acestui cartier
Sănătate și Siguranță

Sănătate și Siguranță

7.3

Sănătate 7.6

Siguranță 8.0

Calitate aer 6.0

Curățenie 7.3

Zone verzi 7.4

Cultură și Educație

Cultură și Educație

7.7

Cultură 7.9

Educație 7.9

Sport 7.4

Ambianță și Lifestyle

Ambianță și Lifestyle

7.1

Nivel de trai 7.4

Magazine 7.6

Localuri 8.3

Parcări 5.8

Zgomot 6.3

Transport în comun

Transport în comun

8.0

Autobuz 8.4

Tramvai 7.5

Metrou 0.0

Contactează utilizatorul

ID: 4092861

OPORTUNITATE! APARTAMENT 2 CAMERE, ETAJ INTERMEDIAR, ERA HEX

2 camere | 55 m² | Cluj / Cluj-Napoca

195.000 €


Vezi și alte anunțuri imobiliare
Apartamente vânzare Cluj-napoca-cj - Aeroport Case-vile vânzare Cluj-napoca-cj - Aeroport Garsoniere vânzare Cluj-napoca-cj - Aeroport Terenuri vânzare Cluj-napoca-cj - Aeroport Apartamente vânzare Cluj-napoca-cj - Andrei Muresanu Case-vile vânzare Cluj-napoca-cj - Andrei Muresanu Garsoniere vânzare Cluj-napoca-cj - Andrei Muresanu Terenuri vânzare Cluj-napoca-cj - Andrei Muresanu Apartamente vânzare Cluj-napoca-cj - Apahida Case-vile vânzare Cluj-napoca-cj - Apahida Garsoniere vânzare Cluj-napoca-cj - Apahida Terenuri vânzare Cluj-napoca-cj - Apahida