MOȘ FLORIN

Consultant imobiliar

Vânzare

4075 m²

Oportunitate: Hală de producție și depozitare cu birou...

Arad / Arad
3.500.000 €

Specificații

Preț negociabil Nu

Tip imobil Alte tipuri

Suprafața utilă 4075 m²

Suprafață totală 4075 m

An finalizare construcție 2013

Numărul de locuri de parcare 5-10

Număr încăperi 20

Înălțime spațiu 12_0 m

Posibilitate parcare Da

Acces Acces TIR

Stadiu construcție Finalizat

Tip tranzacție Vânzare

Tip vânzător Companie

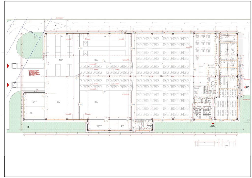
Avem plăcerea să vă oferim în exclusivitate o hală de producție și depozitare cu birouri în Municipiul Arad, în zona comercial-industrială Micălaca Sud.

Caracteristici:
Teren: 7.176 mp
Construcție: 4.075 mp
Dock-uri încărcare TIR: 2 buc
An construcție: 2013

Dotări:
Bazin PSI și Autorizație ISU
Panouri Fotofoltaice putere 350 MWh
Suflante aer cald și chillere.

Utilități prezente: energie electrică, gaze naturale, apă și canalizare.
Vecini: CEFIN Trucks, Modelleisenbahn, Dedeman, Altex, CitOne, HighPlast

Detalii constructive: 
Stâlpi de susținere din beton armat, închideri perimetrale din plăci pefabricate din BA, tâmplărie din aluminiu.

Localizare și dotările fac imobilul ideal pentru o gamă largă de activități comerciale, de producție și de depozitare.
Profitați de o soluție rapidă și la cheie pentru afacerea dumneavoastră.

Pentru vizionare și detalii, vă rog să mă apelați la numărul: 
0721356746
Florin Moș

Solicită vizionarea proprietății

Alege o zi disponibilă

27 Decembrie
28 Decembrie
29 Decembrie
30 Decembrie

Alege un interval orar

8:00 - 12:00
12:00 - 15:00
15:00 - 18:00
18:00 - 21:00

Următoarele date de contact oferite de tine vor fi accesibile proprietarului:

Locație

Despre zona "Micalaca"

păreri exprimate de 230 de utilizatori, pe o scară de la 1 la 10

Află clasamentul acestui cartier
Sănătate și Siguranță

Sănătate și Siguranță

7.6

Sănătate 7.7

Siguranță 7.9

Calitate aer 7.2

Curățenie 7.4

Zone verzi 7.8

Cultură și Educație

Cultură și Educație

7.3

Cultură 6.3

Educație 7.9

Sport 7.6

Ambianță și Lifestyle

Ambianță și Lifestyle

7.2

Nivel de trai 7.3

Magazine 8.0

Localuri 7.2

Parcări 6.3

Zgomot 7.2

Transport în comun

Transport în comun

8.1

Autobuz 8.0

Tramvai 8.2

Metrou 0.0

Contactează utilizatorul

ID: 3709308

Oportunitate: Hală de producție și depozitare cu birou...

4075 m² | Arad / Arad

3.500.000 €


Vezi și alte anunțuri imobiliare
Apartamente vânzare Arad-ar - 3 Insule Case-vile vânzare Arad-ar - 3 Insule Garsoniere vânzare Arad-ar - 3 Insule Terenuri vânzare Arad-ar - 3 Insule Apartamente vânzare Arad-ar - 6 Vanatori Case-vile vânzare Arad-ar - 6 Vanatori Garsoniere vânzare Arad-ar - 6 Vanatori Terenuri vânzare Arad-ar - 6 Vanatori Apartamente vânzare Arad-ar - Alfa Case-vile vânzare Arad-ar - Alfa Garsoniere vânzare Arad-ar - Alfa Terenuri vânzare Arad-ar - Alfa