Alexandra Iulia

Consultant imobiliar

Vânzare

2 camere | 47 m²

Oportunitate investitie! Apartamente cu 1 sau 2 camere in...

Timis / Giroc
85.000 €

Rată estimată

1.862 Lei/lună

Avans (15%)

63.368 lei

Perioada împrumutului

30 ani

Specificații

Preț negociabil Da

Suprafața utilă 47 m²

Număr camere 2

Tip imobil Bloc apartamente

Compartimentare Semidecomandat

Număr Băi 1

Etaj 1

Niveluri imobil 3

An finalizare construcție 2025

Confort 1

Numărul de locuri de parcare 1

Ansamblu Rezidențial Nu

Posibilitate parcare Da

Mobilat și Utilat Nemobilat

Stare proprietate Bună

Tip tranzacție Vânzare

Tip vânzător Companie

APOSTU ESTATE va propune spre vanzare apartamente cu 1 sau 2 camere situate in Giroc.
Drumul de acces spre imobil este asfaltat. In apropiere sunt magazine si supermarket-uri precum: Profi, Mega Image, Lidl, scoala si gradinita la o distanta de 5 minute, acces facil la mijloace de transport in comun.

Apartamentele se vand la cheie, complet finisate si pregatite pentru noul proprietar.
Termenul de predare al imobilului, finisat si racordat la utilitati este Octombrie 2026.
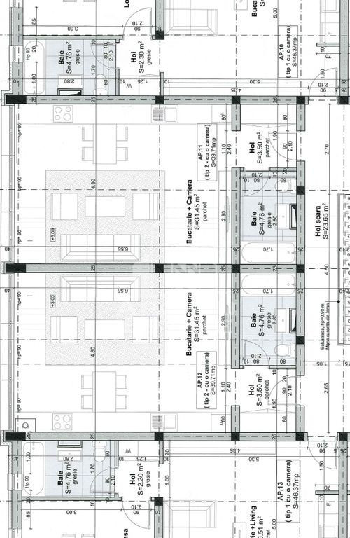
Modelul de apartament este disponibil la fiecare etaj.

Suprafata este de 47 mp utili + terasa de 7 mp.
Compartimentare:
- hol acces
- bucatarie cu living open space (cu posibilitate de inchidere)
- dormitor
- baie
- terasa

Toate finisajele sunt realizate mecanizat cu produse de calitate superioara atent creionate.
Detalii tehnice:
- regim de inaltime: Parter + 3 etaje.
- constructie realizata in anul 2025 din caramida Porotherm de 25 cm.
- exterior izolat cu polistiren de 10 cm eps 80.
- pereti despartitori complet din caramida (fara rigips) tencuiti mecanizat finisati cu glet si vopsea lavabila alba.
- geamuri termopan cu 3 sticle pentru izolare fonica si termica superioara, foarte mari si luminoase.
- centrala proprie pe gaz, incalzire in pardoseala.
- usa acces securizata, usi interioare Porta Doors.
- finisajele interioare sunt la alegerea noului proprietar. (gresie, faianta, parchet, plinte, usi)
- obiecte sanitare suspendate gama premium.
- 1 loc de parcare inscris in cf.

Imobilul este construit la standarde moderne si ofera un raport calitate-pret excelent. Zona este in continua dezvoltare, cu acces rapid catre oras si toate punctele de interes.
Poate fi momentul ideal sa devii noul proprietar al unei locuinte eficiente, confortabile si pregatite pentru viitor.

Acceptam orice fel de credit bancar. Oferim consultanta si solutii financiare prin colaboratorii nostri pentru a obtine cel mai avantajos credit Ipotecar sau Noua Casa.

Pentru mai multe informatii si programari nu ezitati sa ne contactati, va asteptam la o vizionare chiar astazi.
CP2759492

Solicită vizionarea proprietății

Alege o zi disponibilă

07 Decembrie
08 Decembrie
09 Decembrie
10 Decembrie

Alege un interval orar

8:00 - 12:00
12:00 - 15:00
15:00 - 18:00
18:00 - 21:00

Următoarele date de contact oferite de tine vor fi accesibile proprietarului:

Locație

Contactează utilizatorul

ID: 4063478

Oportunitate investitie! Apartamente cu 1 sau 2 camere in...

2 camere | 47 m² | Timis / Giroc

85.000 €