Andrei Furnica

Consultant imobiliar

Închiriere

420 m²

Oportunitate Investitie - - Asociere

Botosani / Botosani
2.500 €

Specificații

Consum total de energie primară 0

Indicele de emisii echivalent CO2 0

Consum total din surse regenerabile 0

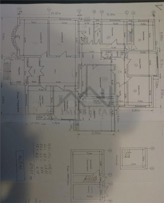
Număr încăperi 9

Înălțime spațiu 3 m

Stadiu construcție Finalizat

Suprafața utilă 420 m²

Suprafață totală 840 m

Vitrină 10 m

An finalizare construcție 1950

Nu include TVA Nu

Tip imobil Alte tipuri

Tip tranzacție Închiriere

Tip vânzător Companie

AFImobiliare va propune spre inchiriere spre inchiriere o cladire in zona Str. Tudor Vladimirescu Nr.17, Botosani, pretabila pentru comercial, rezidential si birouri!
Posibilitate pentru inchiriere sau asociere,dar se accepta si propuneri de vanzare.
Imobilul este dispus pe un regim de inaltime D P M.
La parter avem 420mp in 9 camere, 2 bai si 1 terasa, 1 hol mare(sala de asteptare)
La Demisol 1 pivnita, 1 camera tehnica, 1 garaj.
La Mansarda: 420mp neamenajat.

Proprietatea dispune de curte proprie, 3160mp, cu poarta acces masini si posibilitate de amenajare parcare.

Se preteaza pentru clinica medicala, gradinita, azil de batrani,etc.

Cladirea urmeaza a fi renovata-amenajata la interior in functie de specificul chiriasului.
Contract doar pe perioada lunga.

Imobilul se preteaza pentru orice tip de activitate!

Pentru mai multe detalii si vizionari, va rog sa ma contactati!

Solicită vizionarea proprietății

Alege o zi disponibilă

27 Decembrie
28 Decembrie
29 Decembrie
30 Decembrie

Alege un interval orar

8:00 - 12:00
12:00 - 15:00
15:00 - 18:00
18:00 - 21:00

Următoarele date de contact oferite de tine vor fi accesibile proprietarului:

Locație

Contactează utilizatorul

ID: 4034600

Oportunitate Investitie - - Asociere

420 m² | Botosani / Botosani

2.500 €