Cosmin Vasilache

Consultant imobiliar

Vânzare

4 camere | 154 m²

Panoramic View 16 Floor | 4 Rooms 154SQM | One Verdi Park -

Bucuresti-Ilfov / Bucuresti
819.980 €

Rată estimată

17.966 Lei/lună

Avans (15%)

611.295 lei

Perioada împrumutului

30 ani

Specificații

Număr camere 4

Suprafața utilă 154 m²

Compartimentare Decomandat

Confort 1

An finalizare construcție 2023

Tip imobil Bloc apartamente

Niveluri imobil 19

Număr Băi 3

Numărul de locuri de parcare 2

Nu include TVA Da

Etaj 13 sau mai mare

Stare proprietate Bună

Tip tranzacție Vânzare

Tip vânzător Companie

Cosmin Vasilache  ^ Global Home Romania ^ Imobiliare ^ Floreasca – One Verdi Park

Avem disponibil pentru vânzare un apartament premium, cu 4 camere, situat la etajul 16 al ansamblului exclusivist One Verdi Park, în inima zonei Floreasca – Barbu Văcărescu. Proprietatea beneficiază de o panoramă spectaculoasă către Parcul Verdi și zona de nord a Capitalei — o priveliște rar întâlnită pe piață.

Detalii apartament

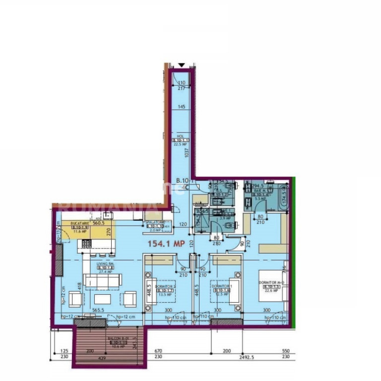
– Suprafață totală: 154 mp, excelent organizată pentru confort și funcționalitate
– Compartimentare: 4 camere decomandate, ideale pentru locuire sau configurare hibridă (home-office + rezidențial)
– Living generos și luminos, cu suprafețe vitrate ample și acces direct către balcon
– Bucătărie modernă, pregătită pentru personalizare și integrarea electrocasnicelor premium
– Dormitor matrimonial cu baie proprie și zonă dedicată de dressing
– Două dormitoare suplimentare, potrivite pentru copii, oaspeți, birou, bibliotecă sau cameră hobby
– 3 băi cu design contemporan
– Balcon panoramic de 8 mp cu vedere liberă către parc și skyline
– Suprafețe vitrate pe întreaga înălțime, ce oferă lumină naturală pe tot parcursul zilei
– Finisaje standard Lemon Design – One United Properties, ideale pentru personalizare

Facilități și beneficii

– 2 locuri de parcare subterană incluse în preț
– Acces securizat 24/7, recepție și comunitate selectă
– Spații comerciale, servicii, restaurante și wellness în cadrul ansamblului
– Acces rapid la Parcul Verdi, Promenada Mall, zona de business Barbu Văcărescu și mijloace de transport (metrou, tramvai, autobuz)
– Aproape de școli, clinici medicale și zone verzi

Un apartament rar disponibil pe piață, potrivit pentru cei care caută un stil de viață exclusivist, priveliști spectaculoase și un standard înalt de confort, într-una dintre cele mai dinamice și bine cotate zone ale Bucureștiului.

Pentru vizionări sau mai multe detalii:
Victor Sima – Real Estate Broker – Global Home Romania


ENGLISH VERSION

Victor Sima ^ Global Home Romania ^ Real Estate ^ Floreasca – One Verdi Park

We are offering for sale a premium 4-room apartment located on the 16th floor of the exclusive One Verdi Park development, in the heart of the Floreasca – Barbu Văcărescu district. The property features an unobstructed panoramic view over Verdi Park and the northern skyline — a rare advantage in today’s market.

Apartment Details

– Total surface: 154 sqm, intelligently planned for comfort and efficiency
– Layout: 4 fully separate rooms, ideal for residential use or hybrid living (home + office)
– Spacious and bright living room with floor-to-ceiling windows and access to the terrace
– Modern kitchen ready for customization and integration of premium appliances
– Master bedroom with en-suite bathroom and dressing area
– Two additional bedrooms suitable for children, guests, office, library or hobby
– Three contemporary bathrooms
– 8 sqm panoramic terrace with open views toward the park and skyline
– Full-height glass surfaces providing exceptional natural light throughout the day
– Delivered with Lemon Design standard finishes by One United Properties, offering flexibility for personalization

Facilities and Advantages

– Two underground parking spaces included
– Controlled access, 24/7 security, concierge and premium community
– On-site services, shops, restaurants and wellness
– Walking distance to Verdi Park, Promenada Mall, business hubs and public transport (metro, tram, bus)
– Close to premium education facilities, medical centers and green areas

A rare opportunity for those seeking an elevated living experience, spectacular views and high-level comfort in one of Bucharest’s most exclusive and fast-growing residential areas.

For viewings or more information:
Victor Sima – Real Estate Broker – Global Home Romania___

Global Home Romania, este o firmă în schimbare de jocuri pe piață imobiliară din România ce se afla intr-o expansiune rapidă. Modelul personalizat avand la baza tehnologia digitala, inteligenta artificala și interacțiune umană alături de colaboratorii firmei, inspiră constant încredere. Având o abordare de marketing profesională și îndrăzneță a ridicat atenția asupra modului în care oamenii se gândesc la imobiliare in Romania.

Global Home Romania, companie imobiliara infiintata in 2020 ce continuă să se dezvolte cu succes în domeniu, reușind să atraga constant parteneri și colaboratori de încredere. Cu sediul în București, Global Home Romania, a apărut ca o firmă imobiliară de încredere ce își propune constant să livreze servicii de calitate. 

Misiunea Global Home Romania în piața imobiliară, este aceea de a stabili un raport solid bazat pe încredere și profesionalism între reprezentantii nostri imobiliari bine informati impreuna cu toti clientii si colaboratorii companiei.


Id intern: P16555

Solicită vizionarea proprietății

Alege o zi disponibilă

25 Decembrie
26 Decembrie
27 Decembrie
28 Decembrie

Alege un interval orar

8:00 - 12:00
12:00 - 15:00
15:00 - 18:00
18:00 - 21:00

Următoarele date de contact oferite de tine vor fi accesibile proprietarului:

Locație

Despre zona "Floreasca"

păreri exprimate de 86 de utilizatori, pe o scară de la 1 la 10

Află clasamentul acestui cartier
Sănătate și Siguranță

Sănătate și Siguranță

8.2

Sănătate 8.1

Siguranță 8.7

Calitate aer 7.7

Curățenie 7.9

Zone verzi 8.8

Cultură și Educație

Cultură și Educație

7.7

Cultură 6.4

Educație 8.6

Sport 8.2

Ambianță și Lifestyle

Ambianță și Lifestyle

7.6

Nivel de trai 7.7

Magazine 8.2

Localuri 8.2

Parcări 6.1

Zgomot 7.7

Transport în comun

Transport în comun

7.5

Autobuz 8.1

Tramvai 7.8

Metrou 6.5

Contactează utilizatorul

ID: 4104171

Panoramic View 16 Floor | 4 Rooms 154SQM | One Verdi Park -

4 camere | 154 m² | Bucuresti-Ilfov / Bucuresti

819.980 €