Cristian Angheloiu

Consultant imobiliar

Vânzare

11000 m²

Parc Logistic Pasajul Oltenitei - Popesti Leordeni

Bucuresti-Ilfov / Bucuresti
7.495.000 €

Specificații

Consum total de energie primară 0

Indicele de emisii echivalent CO2 0

Consum total din surse regenerabile 0

Număr încăperi 0

Înălțime spațiu 3 m

Stadiu construcție Finalizat

Suprafața utilă 11000 m²

Suprafață totală 23000 m

Nu include TVA Nu

Tip imobil Alte tipuri

Tip tranzacție Vânzare

Tip vânzător Companie

Excelenta prin experienta!

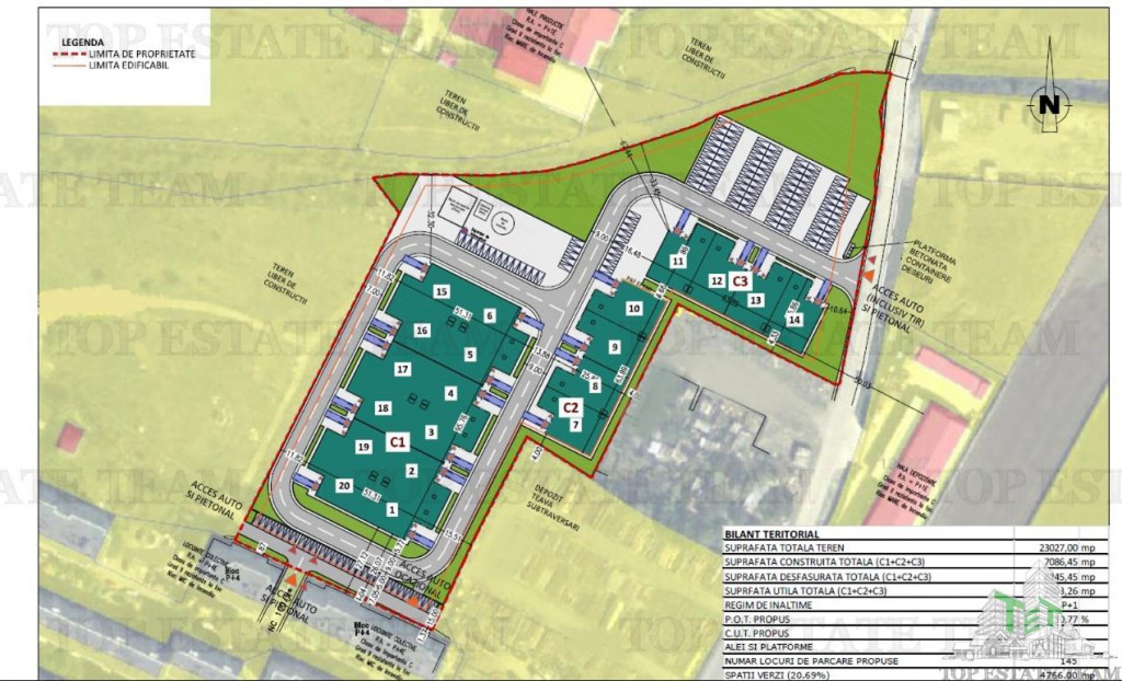
Parc logistic Hale Centura Sud Bucuresti teren 23.000 mp cu 26 Hale Industriale noi noute

Deschidere: 60 ml

11000 mp constructie .

9300 mp platforme si alei.

 2700 mp spatii verzi.

Primele 6 hale vor fi predate in Martie 2024, restul pana la finalul anului 2024.

Halele beneficiaza de toate utilitatile .

Orasul Popesti-Leordeni, din judetul Ilfov, este situat in imediata apropiere a Capitalei, in partea de sud-est, pe Soseaua Oltenitei .

Cartierul Danubiana este un proiect pentru care administratia din Popesti-Leordeni a depus eforturi considerabile.

Cel mai important pas a fost achizitionarea de catre autoritate, de la SC Danubiana SA, a terenului cu o suprafata de aproximativ 2 ha care include cartierul Danubiana si care reprezinta de fapt caile de acces, spatii verzi, curti, constructii si instalatii de apa si canalizare, scoli, gradinite, restaurante si mijloace de transport in comun, menite sa contribuie la imbunatatirea vietii cetatenilor din zona .

 

 

Solicită vizionarea proprietății

Alege o zi disponibilă

07 Decembrie
08 Decembrie
09 Decembrie
10 Decembrie

Alege un interval orar

8:00 - 12:00
12:00 - 15:00
15:00 - 18:00
18:00 - 21:00

Următoarele date de contact oferite de tine vor fi accesibile proprietarului:

Locație

Despre zona "Centura Est"

păreri exprimate de 7 de utilizatori, pe o scară de la 1 la 10

Află clasamentul acestui cartier
Sănătate și Siguranță

Sănătate și Siguranță

5.7

Sănătate 5.0

Siguranță 6.7

Calitate aer 6.0

Curățenie 5.3

Zone verzi 5.6

Cultură și Educație

Cultură și Educație

4.8

Cultură 2.5

Educație 6.8

Sport 5.0

Ambianță și Lifestyle

Ambianță și Lifestyle

5.6

Nivel de trai 6.7

Magazine 5.4

Localuri 5.6

Parcări 4.5

Zgomot 6.0

Transport în comun

Transport în comun

3.8

Autobuz 4.0

Tramvai 3.7

Metrou 3.7

Contactează utilizatorul

ID: 3779848

Parc Logistic Pasajul Oltenitei - Popesti Leordeni

11000 m² | Bucuresti-Ilfov / Bucuresti

7.495.000 €