George Brăileanu

Consultant imobiliar

Vânzare

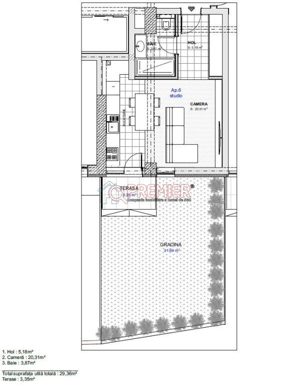
32 m²

Parcul Carol - Tineretului - Garsoniera cu 30mp curte

Bucuresti-Ilfov / Bucuresti
101.401 €

Rată estimată

2.183 Lei/lună

Avans (15%)

75.594 lei

Perioada împrumutului

30 ani

Specificații

Nu include TVA Da

Suprafața utilă 32 m²

Etaj Parter

An finalizare construcție 2026

Posibilitate parcare Nu

Numărul de locuri de parcare 0

Ansamblu Rezidențial Da

Ultimul etaj Nu

Niveluri imobil 4

Stare proprietate Bună

Confort 1

Tip imobil Bloc apartamente

Clasa energetică 1, 2, 3, 4, 5, 6, 7

Tip tranzacție Vânzare

Tip vânzător Companie

Oportunitate! Parcul Carol - Parcul Tineretului - Garsoniera cu 30mp curte proprie!

Proprietate in exclusivitate Premier Imobiliare

Care sunt cele mai importante 3 criterii ale unui imobil? Locatia, locatia....si locatia!

Calea Serban Voda, Parcul Carol la 250m, Parcul Tineretului la 100m, Metrou Tineretului la 900m, Unirii si Casa Poporului la 5 minute cu masina!

Imobilul?
O garsoniera premium in suprafata utila de 32mp avand o curte proprie de aproximativ 32mp!

Reprezinta cu succes startul unui student venit in capitala sau, de ce nu, o investitie fiind IDEALA pentru inchiriere in regim hotelier, AirBnB.

Pret fara TVA!

Suna-ma sa discutam detalii! George 0730.888.280

Multumim pentru atentia acordata anunturilor noastre!
Serviciul nou oferit de PREMIER Imobiliare! Solicita acum VIZIONARE ONLINE pentru aceasta proprietate!

COMISION 0%

Această proprietate se poate achiziționa prin orice tip de credit bancar.

Departamentul nostru financiar Premier Credit Hub vă stă la dispoziție GRATUIT (comision 0%) pentru:
- identificarea celei mai bune soluții de finanțare;
- întocmirea dosarului bancar complet;
- obținerea rapidă a creditului necesar achiziției.

Beneficiați de un serviciu ALL IN ONE, cu acces direct la ofertele tuturor băncilor comerciale din România.
Se acceptă inclusiv venituri din străinătate, astfel încât fiecare client să poată cumpăra în cele mai avantajoase condiții.

 Solicitați acum o simulare de credit direct din anunț sau cereți detalii consultantului Premier Imobiliare!

Solicită vizionarea proprietății

Alege o zi disponibilă

10 Aprilie
11 Aprilie
12 Aprilie
13 Aprilie

Alege un interval orar

8:00 - 12:00
12:00 - 15:00
15:00 - 18:00
18:00 - 21:00

Următoarele date de contact oferite de tine vor fi accesibile proprietarului:

Locație

Despre zona "Parcul Carol"

păreri exprimate de 19 de utilizatori, pe o scară de la 1 la 10

Află clasamentul acestui cartier
Sănătate și Siguranță

Sănătate și Siguranță

7.5

Sănătate 7.3

Siguranță 8.3

Calitate aer 6.8

Curățenie 7.1

Zone verzi 8.3

Cultură și Educație

Cultură și Educație

7.4

Cultură 7.3

Educație 7.7

Sport 7.1

Ambianță și Lifestyle

Ambianță și Lifestyle

7.1

Nivel de trai 7.2

Magazine 6.9

Localuri 7.2

Parcări 6.5

Zgomot 7.6

Transport în comun

Transport în comun

8.1

Autobuz 8.1

Tramvai 8.1

Metrou 8.0

Contactează utilizatorul

ID: 4157998

Parcul Carol - Tineretului - Garsoniera cu 30mp curte

32 m² | Bucuresti-Ilfov / Bucuresti

101.401 €