BLITZ Romania

Consultant imobiliar

Vânzare

4 camere | 129 m²

Penthouse 4 camere ,129,9 mp, Ansamblu Rezidential, Zorilor

Cluj / Cluj-Napoca
448.905 €

Rată estimată

9.835 Lei/lună

Avans (15%)

334.659 lei

Perioada împrumutului

30 ani

Specificații

Număr camere 4

Suprafața utilă 129 m²

Compartimentare Decomandat

Niveluri imobil 15

Număr Băi 2

Numărul de locuri de parcare 2

Etaj 13 sau mai mare

Mobilat și Utilat Nemobilat

Tip imobil Bloc apartamente

Stare proprietate Bună

Confort 1

Tip tranzacție Vânzare

Tip vânzător Companie

An finalizare construcție 2021

Penthouse spectaculos pe 3 niveluri, 254 mp, Zorilor, ansamblu nou


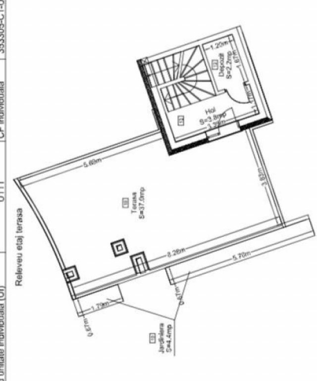
Vă propunem spre vânzare un penthouse spectaculos, dispus pe 3 niveluri, situat într-un ansamblu rezidențial modern din cartierul Zorilor. O locuință exclusivistă, cu o suprafață totală de 254,6 mp, ideală pentru cei care caută spațiu, confort și priveliști panoramice asupra orașului.

???? Suprafață utilă interioară: 120,9 mp
???? Balcoane: 83,3 mp
???? Terasă panoramică: 37 mp
???? Jardinieră: 4,4 mp
???? Etaj: 14 + etaj retras + terasă circulabilă deasupra
???? Stadiu: Semifinisat – posibilitate de amenajare personalizată


???? Compartimentare inteligentă pe 3 niveluri:

Etaj 14:
	•	Living și dining generos cu acces la balcon
	•	Bucătărie separată
	•	Baie
	•	Hol
	•	2 balcoane

Etaj retras:
	•	2 dormitoare
	•	2 băi
	•	2 balcoane

Etaj superior (terasă):
	•	Terasă panoramică de 37 mp
	•	Spațiu de hol + depozitare

✅ Avantaje:
	•	Ansamblu rezidențial nou, cu lift și finisaje moderne
	•	Posibilitate de compartimentare și design personalizat
	•	Priveliște panoramică asupra orașului
	•	Ideal pentru locuință de lux sau investiție cu randament ridicat

???? Locație excelentă – Zorilor, zonă cu acces facil către centrul orașului, spitale, facultăți, parcuri și magazine.

???? Contactează-ne pentru mai multe detalii sau programarea unei vizionări!
Cod ofertă / ID BLITZ: P146381
Id intern: P146381

Solicită vizionarea proprietății

Alege o zi disponibilă

28 Decembrie
29 Decembrie
30 Decembrie
31 Decembrie

Alege un interval orar

8:00 - 12:00
12:00 - 15:00
15:00 - 18:00
18:00 - 21:00

Următoarele date de contact oferite de tine vor fi accesibile proprietarului:

Locație

Despre zona "Zorilor"

păreri exprimate de 135 de utilizatori, pe o scară de la 1 la 10

Află clasamentul acestui cartier
Sănătate și Siguranță

Sănătate și Siguranță

8.0

Sănătate 8.0

Siguranță 8.6

Calitate aer 7.9

Curățenie 8.0

Zone verzi 7.5

Cultură și Educație

Cultură și Educație

6.9

Cultură 5.5

Educație 7.7

Sport 7.5

Ambianță și Lifestyle

Ambianță și Lifestyle

7.3

Nivel de trai 8.0

Magazine 7.7

Localuri 7.4

Parcări 6.0

Zgomot 7.4

Transport în comun

Transport în comun

6.9

Autobuz 8.6

Tramvai 5.2

Metrou 0.0

Contactează utilizatorul

ID: 3983140

Penthouse 4 camere ,129,9 mp, Ansamblu Rezidential, Zorilor

4 camere | 129 m² | Cluj / Cluj-Napoca

448.905 €


Vezi și alte anunțuri imobiliare
Apartamente vânzare Cluj-napoca-cj - Aeroport Case-vile vânzare Cluj-napoca-cj - Aeroport Garsoniere vânzare Cluj-napoca-cj - Aeroport Terenuri vânzare Cluj-napoca-cj - Aeroport Apartamente vânzare Cluj-napoca-cj - Andrei Muresanu Case-vile vânzare Cluj-napoca-cj - Andrei Muresanu Garsoniere vânzare Cluj-napoca-cj - Andrei Muresanu Terenuri vânzare Cluj-napoca-cj - Andrei Muresanu Apartamente vânzare Cluj-napoca-cj - Apahida Case-vile vânzare Cluj-napoca-cj - Apahida Garsoniere vânzare Cluj-napoca-cj - Apahida Terenuri vânzare Cluj-napoca-cj - Apahida