Ciprian Coman

Consultant imobiliar

Vânzare

401 m²

Pozitionare Centrala

Brasov / Sacele
400.000 €

Specificații

Preț negociabil Da

Tip imobil Casă / Vilă

Suprafața utilă 401 m²

Suprafață totală 270 m

An finalizare construcție 2005

Număr încăperi 14

Posibilitate parcare Nu

Stadiu construcție Finalizat

Tip tranzacție Vânzare

Tip vânzător Companie

Ati accesat un imobil situat in Sacele.

LOCALIZARE:
Proprietatea propusa este reconstruita in anul 2005, cu destinatie exclusiv birouri / comercial  , call center, sediu firma,acest spatiu se remarca prin amplasamentul sau strategic, avand acces facil spre Brasov.

LAYOUT:
Acesta este dispus pe  14  incaperi, avand urmatoarea compartimentare:

Subsol:
- 2 camere arhivare;

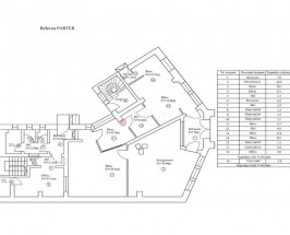
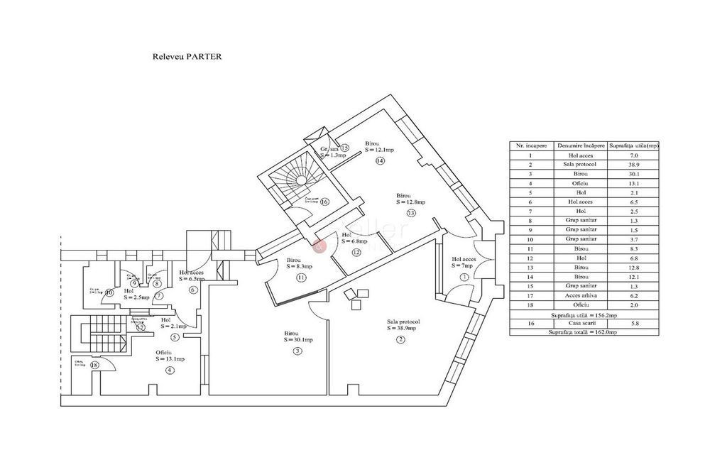
Parter:
- Hol acces;
- Sala protocol;
- 4 birouri;
- Oficiu;
- Grup sanitar dublu;

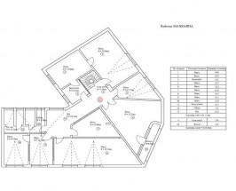
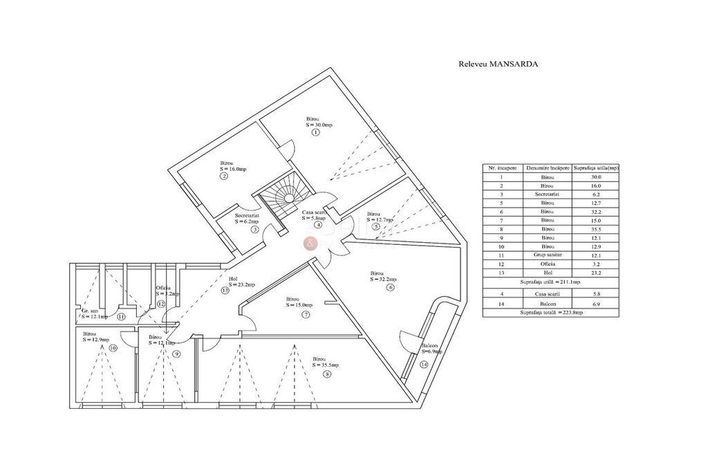
Mansarda:
- 8 birouri;
- secretariat;
- chicineta;
- grup sanitar dublu;

FACILITATI SI SERVICII:
- Transport public cu statie in fata imobilului;
- Structura din beton;
- Compartimentari din caramida;
- Ferestre din PVC cu geam termopan;
- Parchet de 12 mm;
-  Centrala Termica pentru fiecare nivel;

AVANTAJE:
- Suprafata generoasa;
- Zona cu vad comercial;
- Suprafata vitrata ampla;

DESTINAȚIE COMERCIALA:
-	magazin alimentar;
-	show room;
-	sediu firmă;
-	cabinet stomatologic;
-	centru infrumusetare;


IMPREJURIMI:

Spatiul este situat intr-o zona cu vad cu acces pietonal.

DEZVOLTARE  ZONA: zona rezidentiala
FORMA ACHIZITIONARE: Se accepta plata prin accesare credit.

NOTA:
Informatiile prezentate reflecta situatia reala a proprietatii, fara a constitui o oferta contractuala. 
Aceste date au fost obtinute verbal, de la titularul de drept al imobilului.

Structura acestei prezentari nu poate fi reprodusa, fara acordul scris al The Seller and Partners.

Solicită vizionarea proprietății

Alege o zi disponibilă

27 Decembrie
28 Decembrie
29 Decembrie
30 Decembrie

Alege un interval orar

8:00 - 12:00
12:00 - 15:00
15:00 - 18:00
18:00 - 21:00

Următoarele date de contact oferite de tine vor fi accesibile proprietarului:

Locație

Contactează utilizatorul

ID: 3903475

Pozitionare Centrala

401 m² | Brasov / Sacele

400.000 €


Vezi și alte anunțuri imobiliare
Apartamente vânzare Sacele-bv - Babarunca Case-vile vânzare Sacele-bv - Babarunca Garsoniere vânzare Sacele-bv - Babarunca Terenuri vânzare Sacele-bv - Babarunca Apartamente vânzare Sacele-bv - Baciu Case-vile vânzare Sacele-bv - Baciu Garsoniere vânzare Sacele-bv - Baciu Terenuri vânzare Sacele-bv - Baciu Apartamente vânzare Sacele-bv - Bradet Case-vile vânzare Sacele-bv - Bradet Garsoniere vânzare Sacele-bv - Bradet Terenuri vânzare Sacele-bv - Bradet