Daniel Aioanei

Consultant imobiliar

Închiriere

131 m²

Pozitionare Centrala - Hub Office + Comercial

Brasov / Brasov
1.441 €

Specificații

Preț negociabil Nu

Nu include TVA Da

Tip imobil Clădire de birouri

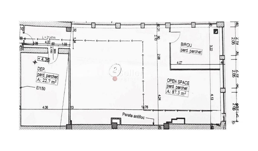
Suprafața utilă 131 m²

Suprafață totală 131 m

An finalizare construcție 1970

Clasă birouri B

Număr încăperi 3

Posibilitate parcare Nu

Stadiu construcție Finalizat

Tip tranzacție Închiriere

Tip vânzător Companie

Spatiul accesat este situat in zona CENTRU CIVIC.

LOCALIZARE:
Proprietatea este pozitionata in imediata apropiere a Mall AFI.

PARTITIONARE:

Spatiul este dispus pe  3  incaperi,

COMPARTIMENTARE:

- structura usoara : rigips;

DESTINATIE:

- Sediu firma;
- Call Center;

DOTARI:

- sistem climatizare ;
- centrala termica  Cladire;
- aer conditionat 
- grup sanitar;
- plafon casetat;
- infrastructura curenti slabi;


PARCARE PROPRIE | NUMAR LOCURI:
-	DA  - se achizitioneaza separat pentru numarul dorit de locuri direct de la administratia complexului

SERVICE CHARGE:
-  1 Euro| / mp - inclus in pretul promovat

Pentru informatii suplimentare, broker-ul care administreaza aceasta oferta, va sta la dispozitie.

NOTA:

Informatiile prezentate reflecta situatia reala a proprietatii, fara a constitui o oferta contractuala.
Aceste date au fost obtinute verbal, de la titularul de drept al imobilului.

Structura acestei prezentari nu poate fi reprodusa, fara acordul scris al The Seller and Partners.

Solicită vizionarea proprietății

Alege o zi disponibilă

27 Decembrie
28 Decembrie
29 Decembrie
30 Decembrie

Alege un interval orar

8:00 - 12:00
12:00 - 15:00
15:00 - 18:00
18:00 - 21:00

Următoarele date de contact oferite de tine vor fi accesibile proprietarului:

Locație

Despre zona "Centrul Civic"

păreri exprimate de 114 de utilizatori, pe o scară de la 1 la 10

Află clasamentul acestui cartier
Sănătate și Siguranță

Sănătate și Siguranță

7.5

Sănătate 7.2

Siguranță 8.4

Calitate aer 7.0

Curățenie 7.6

Zone verzi 7.3

Cultură și Educație

Cultură și Educație

7.3

Cultură 7.1

Educație 7.7

Sport 7.1

Ambianță și Lifestyle

Ambianță și Lifestyle

7.1

Nivel de trai 7.3

Magazine 7.3

Localuri 7.8

Parcări 6.2

Zgomot 6.7

Transport în comun

Transport în comun

8.2

Autobuz 8.2

Tramvai 0.0

Metrou 0.0

Contactează utilizatorul

ID: 4063700

Pozitionare Centrala - Hub Office + Comercial

131 m² | Brasov / Brasov

1.441 €


Vezi și alte anunțuri imobiliare
Apartamente închiriere Brasov-bv - 13 Decembrie Case-vile închiriere Brasov-bv - 13 Decembrie Garsoniere închiriere Brasov-bv - 13 Decembrie Terenuri închiriere Brasov-bv - 13 Decembrie Apartamente închiriere Brasov-bv - 15 Noiembrie Case-vile închiriere Brasov-bv - 15 Noiembrie Garsoniere închiriere Brasov-bv - 15 Noiembrie Terenuri închiriere Brasov-bv - 15 Noiembrie Apartamente închiriere Brasov-bv - Astra Case-vile închiriere Brasov-bv - Astra Garsoniere închiriere Brasov-bv - Astra Terenuri închiriere Brasov-bv - Astra